Smd-5b 44 Simona Drive, Dartmouth, Nova Scotia B2X 0C9

Listed for:
$665,900
4 beds
4 baths
Listed 17 days ago
House for rent: Smd-5b 44 Simona Drive, Dartmouth, Nova Scotia B2X 0C9

View all 49 photos

About

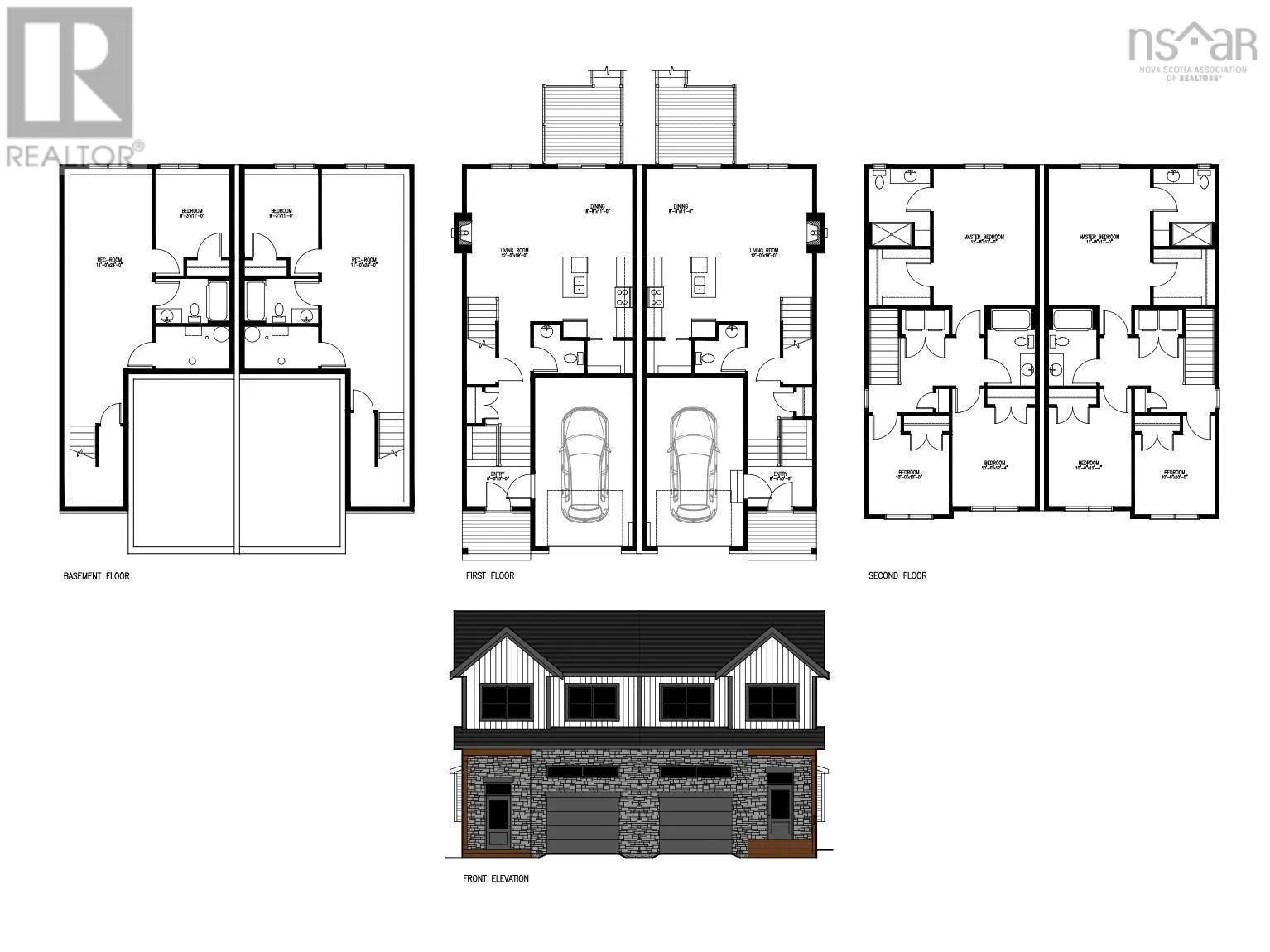
Waverly Road to Terrastone Ridge to Simona Drive Meet "Charlotte", a beautifully designed 4-bedroom, 4-bathroom semi-detached home by Rooftight Construction in The Parks of Lake Charles. This thoughtfully crafted three-level layout blends functionality with modern style, offering the perfect balance of space and comfort. The main level features a traditional two-storey home feel with an attached garage, welcoming entryway, and convenient powder room. The open-concept kitchen and living room are ideal for entertaining, highlighted by a cozy natural gas fireplace. Upstairs, youll find three bedrooms, a full main bathroom, and a laundry area. The primary suite is a private retreat with a walk-in closet and ensuite bath. The basement level offers a fourth bedroom and an additional living space, perfect for guests, a home office, or a recreation area. Buyers will appreciate the choice of high-quality standard finishes as well as a range of upgrade options to personalize their home. Situated in a prime location, this community is just minutes from Mic Mac Bar & Grill, Shubie Park, Lake Banooks paddling clubs, scenic walking trails, major amenities, including Dartmouth Crossing. Dont miss your chance to own in this exciting new neighbourhoodBook your viewing today! (id:27476)

Property Highlights

MLS® Number
202601734
Type
Single Family
Community Name
Dartmouth
Ownership Type
Freehold
Land Size
0.1779 ac

Building

Building Type
House
Storeys
2.00
Square Footage
2389 sqft
Bathrooms Total
4
Bedrooms Above Ground
3
Bedrooms Total
4
Amenities
Park, Playground, Public Transit, Shopping
Exterior Finish
Stone, Vinyl, Other
Fireplace Present
Yes
Basement Type
Full (Finished)
Basement Features
Building Heating Type
Heating Fuel
Building Cooling Type
Heat Pump

Utilities

Water
Municipal water
Utility Sewer
Municipal sewage system

Room Layout

Primary Bedroom
Second level
12.8 x 17
Ensuite (# pieces 2-6)
Second level
10.4 x 8.4
Bedroom
Second level
10 x 10
Bedroom
Second level
10 x 12.4
Bath (# pieces 1-6)
Second level
10x7
Laundry room
Second level
Closet
Recreational, Games room
Basement
11 x 24
Bedroom
Basement
9.3 x 11
Bath (# pieces 1-6)
Basement
36
Foyer
Main level
8 x 5
Living room
Main level
12 x 19
Dining room
Main level
8.8 x 11
Kitchen
Main level
Measurements not available
Bath (# pieces 1-6)
Main level
2 pc

Location

Learn more about this property
Listing provided by:
Royal LePage Atlantic
MLS® number:
202601734
Agent:
Jacqui Rostek Holder
*Indicates required field
Name is required
Email is required
Please enter a valid phone number (e.g., 416-111-1111).

Street Spotlight - For sale