Lot 38 Wild Rose Drive, East Mountain, Nova Scotia B6L 2Y4

Listed for:
$415,000
3 beds
2 baths
Listed 82 days ago
House for rent: Lot 38 Wild Rose Drive, East Mountain, Nova Scotia B6L 2Y4

View all 3 photos

About

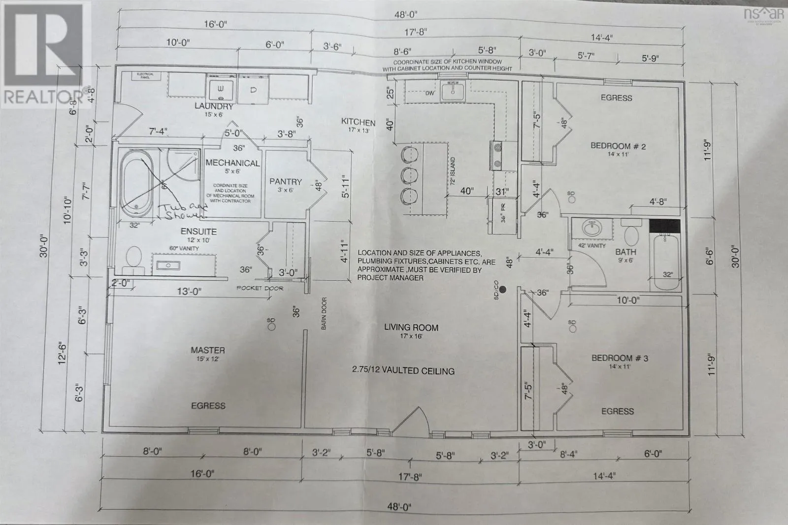
Pictou Road to East Mountain, right onto Wild Rose Drive, property on left. New construction in an up and coming development in East Mountain. This 3 bedroom 2 bath home will be constructed with attention to detail. Offering just under 1,500 square feet and vaulted ceilings in the living space gives it a more spacious feel. Kitchen with an island and a 3x6 pantry for all your kitchen appliances and more. Mudroom/ Laundry room are tucked off the side door for convenience. The primary bedroom is located on one side of the home for privacy and includes a 4pc ensuite. Dreaming of a garage? Seller is willing to build you one! (id:27476)

Property Highlights

MLS® Number
202603319
Type
Single Family
Community Name
East Mountain
Ownership Type
Freehold
Land Size
0.2875 ac

Building

Building Type
House
Storeys
1.00
Square Footage
1440 sqft
Bathrooms Total
2
Bedrooms Above Ground
3
Bedrooms Total
3
Amenities
Golf Course
Exterior Finish
Vinyl
Fireplace Present
No
Basement Type
None
Basement Features
Building Heating Type
Heating Fuel
Building Cooling Type
Heat Pump

Utilities

Water
Drilled Well
Utility Sewer
Municipal sewage system

Room Layout

Mud room
Main level
6.8x16
Kitchen
Main level
13x17
Living room
Main level
16x17
Other
Main level
Pantry 3x6
Bath (# pieces 1-6)
Main level
6.6x10
Primary Bedroom
Main level
12x15
Ensuite (# pieces 2-6)
Main level
12x10
Bedroom
Main level
11x14
Bedroom
Main level
11x14

Location

Learn more about this property
Listing provided by:
Keller Williams Select Realty (Truro)
MLS® number:
202603319
Agent:
Mary Brown
*Indicates required field
Name is required
Email is required
Please enter a valid phone number (e.g., 416-111-1111).

Street Spotlight - For sale