145 Cow Bay Road, Eastern Passage, Nova Scotia B3G 1C2

Listed for:
$849,000
0 beds
0 baths
Listed 5 days ago
145 Cow Bay Road, Eastern Passage, Nova Scotia B3G 1C2

View all 20 photos

Learn more about this property
Listing provided by:
Keller Williams Select Realty (Branch)
MLS® number:
202526450
Agent:
Philip Bolhuis
*Indicates required field
Name is required
Email is required
Please enter a valid phone number (e.g., 416-111-1111).

About

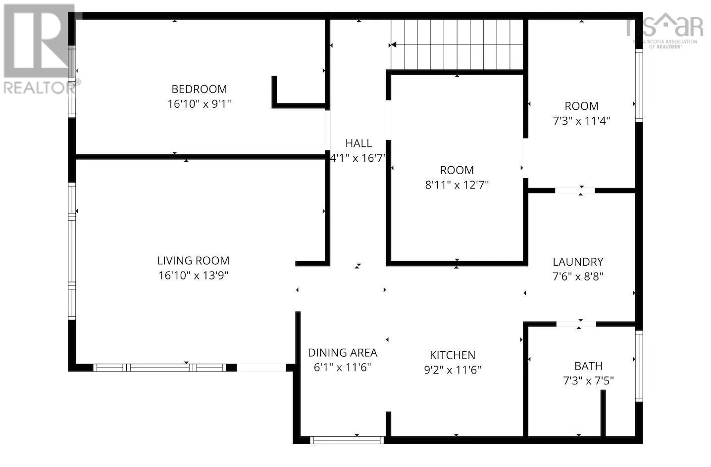
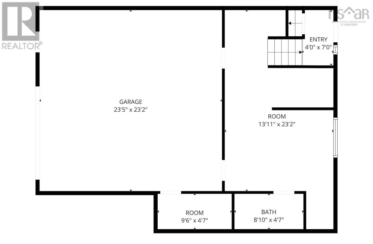
Highway 111, left on pleasant street, cont. to main rd, left to Cow Bay rd. Commercially Zoned Property Ideal for Automotive Repair &/or Automotive Sales. Existing 23.5' X 23' Garage has 12' 10" wide X 10' High grade loading door, 12'8" ceiling height with reinforced footings suitable for heavy hoists. Ground floor shop can be expanded as 2nd floor is supported by Heavy Steel Beam & steel joists on 2" X 10" Wood stud exterior walls. In floor Heat from Wood fired & Electric back up boiler. 2nd floor Residential ideal for parts overflow, owner occupied operator or staff. (id:27476)

Property Highlights

MLS® Number
202526450
Type
Industrial
Community Name
Eastern Passage
Ownership Type
Freehold
Land Size
0.5555 ac

Building

Fireplace Present
No
Basement Type
Basement Features
Building Heating Type
Heating Fuel
Building Cooling Type

Utilities

Water
Municipal water

Location