124 Parish Street, Fall River, Nova Scotia B2T 0W9

Listed for:
$809,900
3 beds
3 baths
Listed 125 days ago
House for rent: 124 Parish Street, Fall River, Nova Scotia B2T 0W9

View all 14 photos

About

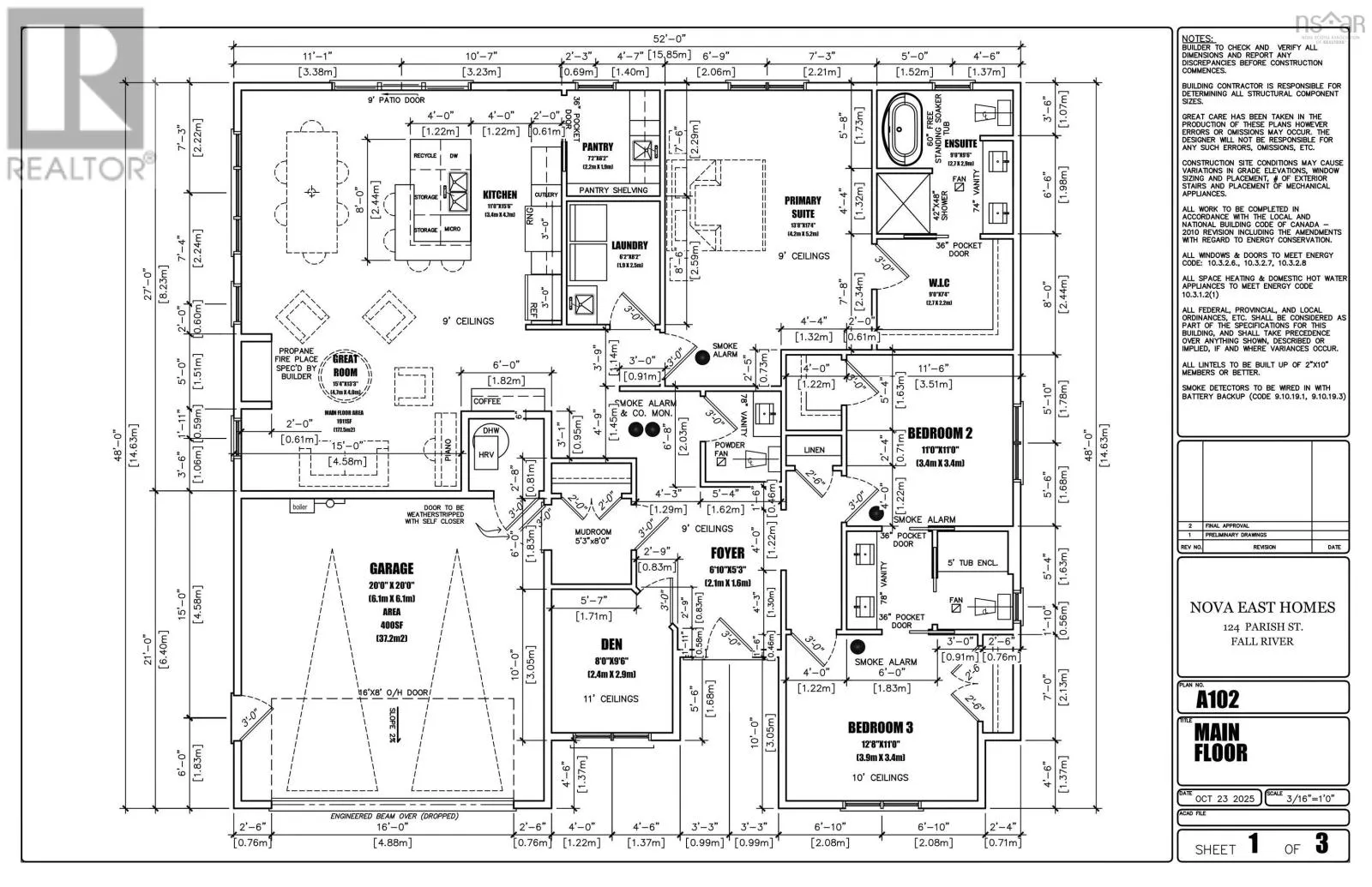
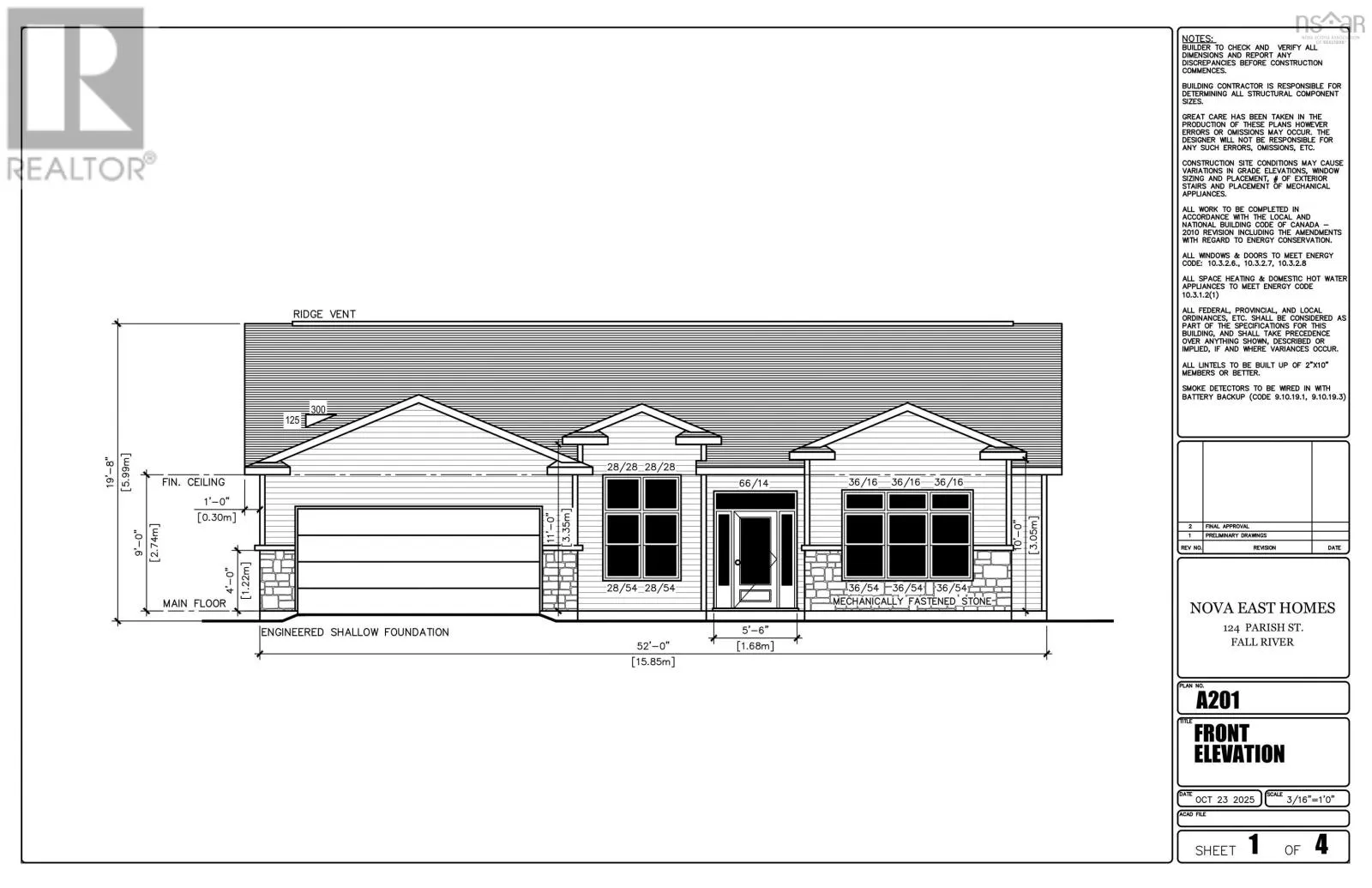
Highway 102 to Exit 5. North on Highway 2 to Fall River Rd. Right onto Lockview Rd. Left onto Klinclaven Dr. Left on High Rd. Right on St. Andrews Dr. Right on Greenock Dr. Second left on Confederation Ave. Left onto Parish St. Welcome to this stunning new construction from Nova East Homes nestled in beautiful Kinloch Estates in Fall River, where modern comfort meets natural tranquility. This thoughtfully designed home offers 1,911 square feet of meticulously crafted living space, perfectly balancing functionality with contemporary elegance. Step inside to discover three generously sized bedrooms, including a primary bedroom with ensuite and a Jack & Jill ensuite for the other two bedrooms. Nine foot ceilings throughout lend to the spacious feeling. Enjoy the convenience of one-level living with in-floor radiant heat throughout the living space. The surrounding area boasts a blend of natural beauty and convenient amenities. Built with attention to detail and quality craftsmanship, this home showcases superior construction materials and modern finishes throughout. Don't miss the chance to be the first owner of this remarkable home. (id:27476)

Property Highlights

MLS® Number
202528683
Type
Single Family
Community Name
Fall River
Ownership Type
Freehold
Land Size
1.6525 ac

Building

Building Type
House
Storeys
1.00
Square Footage
1911 sqft
Bathrooms Total
3
Bedrooms Above Ground
3
Bedrooms Total
3
Amenities
Golf Course, Park, Playground, Shopping, Place of Worship
Exterior Finish
Stone, Vinyl
Fireplace Present
Yes
Basement Type
None
Basement Features
Building Heating Type
Heating Fuel
Building Cooling Type
Wall unit, Heat Pump

Utilities

Water
Drilled Well
Utility Sewer
Septic System

Room Layout

Great room
Main level
15.4 x 13.3
Kitchen
Main level
15.6 x 11
Primary Bedroom
Main level
17.4 x 13.8
Bedroom
Main level
11 x 11
Bedroom
Main level
12.8 x 11
Den
Main level
9.6 x 8
Laundry room
Main level
8.2 x 6.2
Mud room
Main level
8 x 5.3
Other
Main level
7.2 x 6.2
Ensuite (# pieces 2-6)
Main level
9.6 x 9
Ensuite (# pieces 2-6)
Main level
11 x 6.6
Bath (# pieces 1-6)
Main level
6 x 5
Foyer
Main level
6.10 x 5.3

Location

Learn more about this property
Listing provided by:
Keller Williams Select Realty
MLS® number:
202528683
Agent:
Steven Giffin
*Indicates required field
Name is required
Email is required
Please enter a valid phone number (e.g., 416-111-1111).

Street Spotlight - For sale