4038 Highway 2, Fletchers Lake, Nova Scotia B2T 1A3

Listed for:
$699,900
5 beds
3 baths
Listed 6 days ago
House for rent: 4038 Highway 2, Fletchers Lake, Nova Scotia B2T 1A3

View all 50 photos

About

5 minutes past the Sobeys in Fall River, on the right. Purpose-built to accommodate multi-generational living with sound-proofed levels, this unique property is equally ideal for a single family seeking lots of space. Large, vaulted windows frame stunning year-round lake viewsfrom sunny summer days to vibrant autumn leaves to the serene, snow-covered lake. Warm days are perfect for enjoying the view from the large front deck. Located a 5-minute drive from the heart of desirable Fall River, you can enjoy easy access to local swimming, boating, hiking, and golf, along with convenient nearby shops and eateries. With major hubs like Bedford and Dartmouth Crossing just a short drive away, this is a prime commuter locationonly 9 minutes to the Halifax Stanfield International Airport and 25 minutes to downtown Halifaxthis home truly offers the perfect balance of peaceful country living and urban accessibility with the space to accommodate all of your family members and guests. Discover the perfect blend of flexibility and tranquility in this light-filled home overlooking Fletchers Lake. (id:27476)

Property Highlights

MLS® Number
202605484
Type
Single Family
Community Name
Fletchers Lake
Ownership Type
Freehold
Land Size
0.3295 ac

Building

Building Type
House
Storeys
1.00
Square Footage
3024 sqft
Bathrooms Total
3
Bedrooms Above Ground
3
Bedrooms Total
5
Amenities
Golf Course, Park, Playground, Shopping, Place of Worship, Beach
Exterior Finish
Wood siding
Fireplace Present
No
Basement Type
Full (Finished)
Basement Features
Walk out
Building Heating Type
Heating Fuel
Building Cooling Type
Heat Pump

Utilities

Water
Drilled Well
Utility Sewer
Septic System

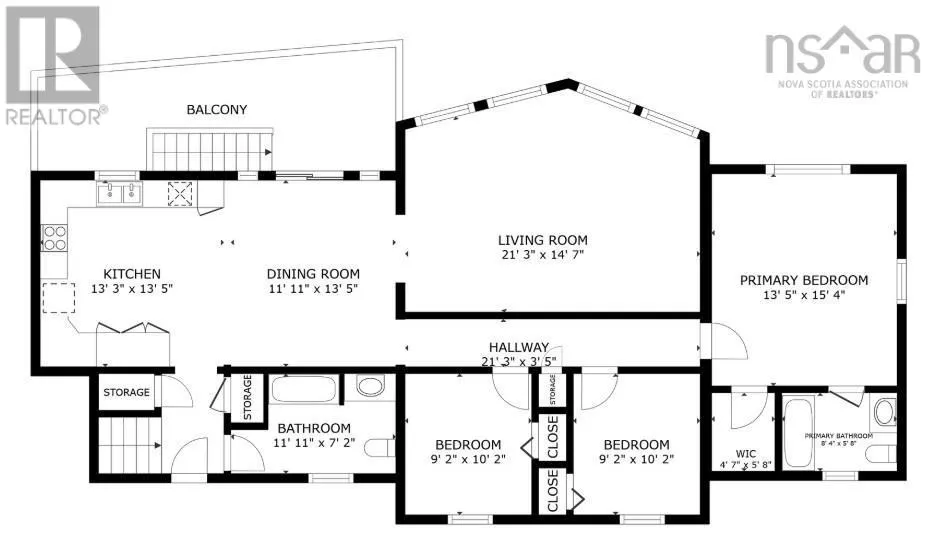
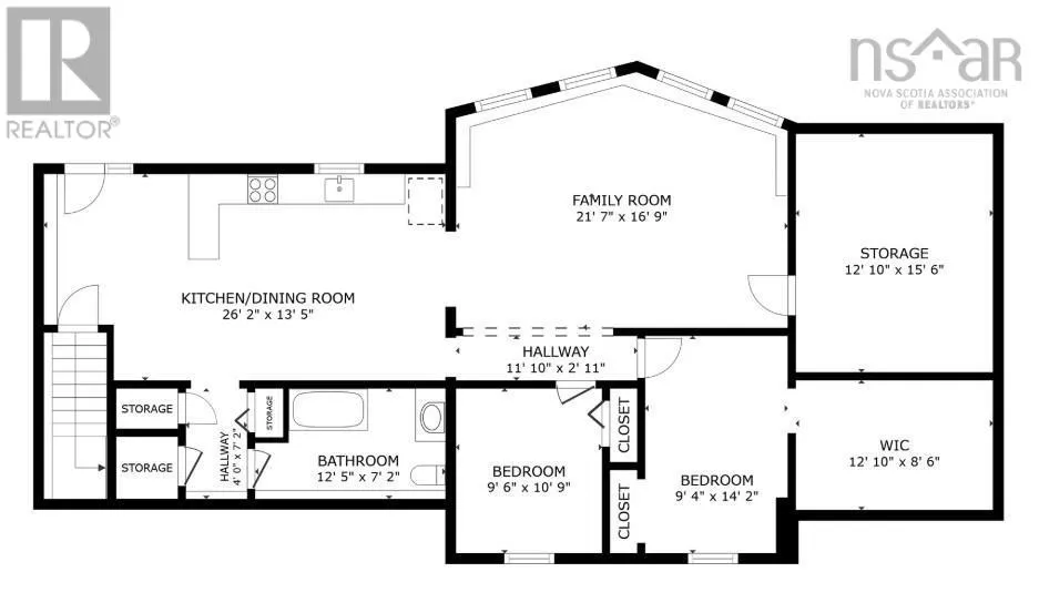
Room Layout

Eat in kitchen
Lower level
25.5x13.-jog
Living room
Lower level
21. x 12.9 + jog
Laundry room
Lower level
4.4 x 3.1
Storage
Lower level
8.2 x 3.3
Bath (# pieces 1-6)
Lower level
9.9 x 6.8 + jog
Utility room
Lower level
13.4 x 11.6
Bedroom
Lower level
13.4 x 9
Bedroom
Lower level
9.8 x 9.2
Storage
Lower level
12.8 x 8.2
Foyer
Main level
6.8 x 4.1
Bath (# pieces 1-6)
Main level
9.3x7.3 + jog
Laundry room
Main level
4.5x3.1
Eat in kitchen
Main level
25.5 x 13.1
Living room
Main level
21. x 13.5+ jog
Primary Bedroom
Main level
15.1 x 13.4
Ensuite (# pieces 2-6)
Main level
8.3x5.4 - jog
Bedroom
Main level
10.4 x 9.1
Bedroom
Main level
10.4 x 9.1

Location

Learn more about this property
Listing provided by:
Century 21 Trident Realty Ltd.
MLS® number:
202605484
Agent:
Susan Eldridge
*Indicates required field
Name is required
Email is required
Please enter a valid phone number (e.g., 416-111-1111).