7600 Highway 7 Highway, Goldenville, Nova Scotia B0J 3C0

Listed for:
$599,000
3 beds
2 baths
Listed 97 days ago
House for rent: 7600 Highway 7 Highway, Goldenville, Nova Scotia B0J 3C0

View all 50 photos

About

Just outside of Sherbrooke on water side towards Goldenville. Sign on This beautifully maintained three-bedroom, two-bathroom "Dow and Duggan" log home sits on a private, well-manicured 2.83-acre property just outside Sherbrooke, Nova Scotia. With 230 feet of waterfront on the St. Mary's River, this property is perfect as a vacation home or year-round residence. The open-concept great room includes a large living/dining space and kitchen with generous ceramic counter space and cupboards. Enjoy stunning views from the many floor-to-ceiling windows and three separate walkouts to the large wrap-around deck. The deck is ideal for enjoying breathtaking sunrises and river views with your morning coffee or evening barbecues. All rooms on the main level feature post-and-beam style vaulted ceilings, providing an elegant setting for family memories. This level also includes a convenient laundry area and a breakfast nook. A walkout lower level boasts two large bedrooms, one full bathroom, and a recreation room anchored by a warm wood-burning stove for cozy evenings. Outdoor & Location The property features direct river access for swimming, boating, and fishing. The grounds include outdoor fire pits, ample parking spaces, and landscaped areas designed for relaxation and play. 5 Minutes: Sherbrooke shops, schools, recreation center, and medical services. 15 Minutes: Atlantic Ocean beaches. 40 Minutes: Antigonish. (id:27476)

Property Highlights

MLS® Number
202600530
Type
Single Family
Community Name
Goldenville
Ownership Type
Freehold
Land Size
2.83 ac

Building

Building Type
House
Storeys
1.00
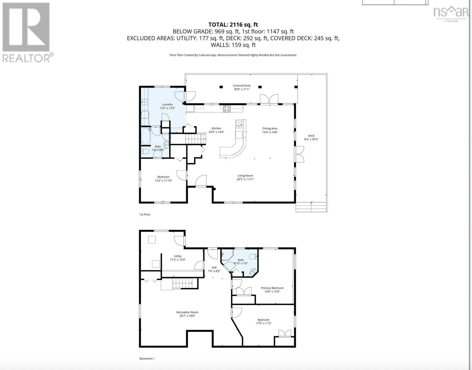
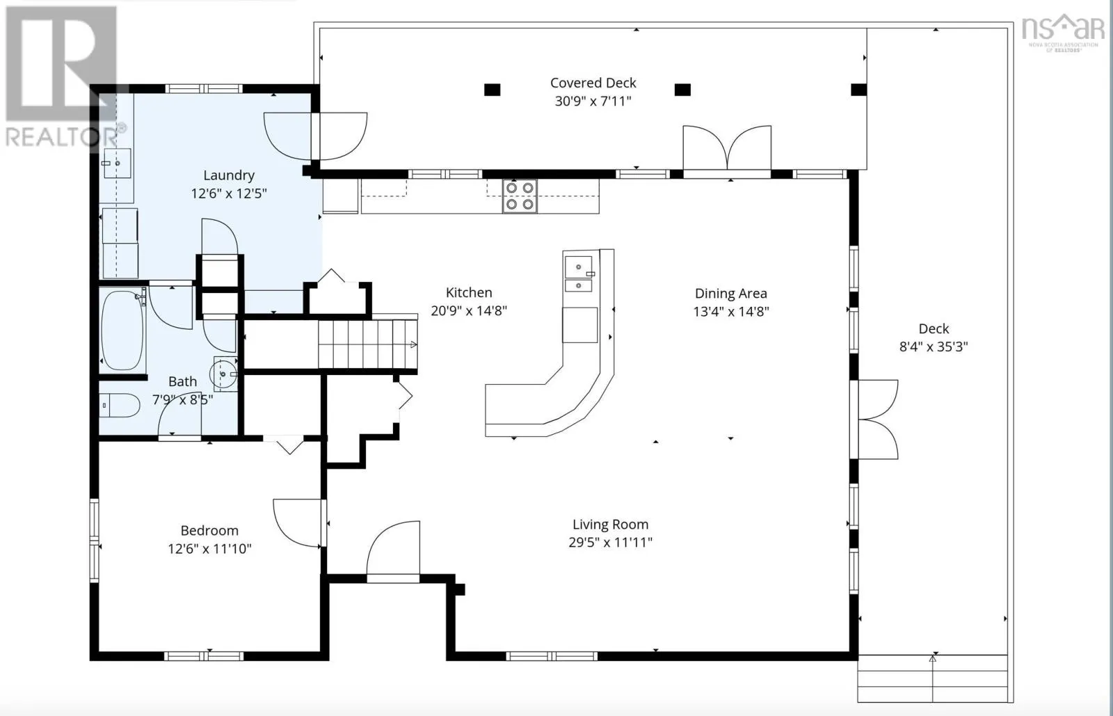
Square Footage
2116 sqft
Bathrooms Total
2
Bedrooms Above Ground
1
Bedrooms Total
3
Amenities
Playground, Shopping, Place of Worship, Beach
Exterior Finish
Log
Fireplace Present
No
Basement Type
Full (Finished)
Basement Features
Walk out
Building Heating Type
Heating Fuel
Building Cooling Type

Utilities

Water
Dug Well
Utility Sewer
Septic System

Room Layout

Recreational, Games room
Lower level
26.7 x 18.8
Bath (# pieces 1-6)
Lower level
9.10 x 7.6
Bedroom
Lower level
17.0 x 11.3
Bedroom
Lower level
16.8 x 15.0
Utility room
Lower level
17.2 x 12.4
Living room
Main level
29.5 x 11.1
Dining room
Main level
13.4 x 14.8
Kitchen
Main level
20.9 x 14.8
Laundry / Bath
Main level
12.6 x 12.5
Bath (# pieces 1-6)
Main level
7.9 x 8.5
Primary Bedroom
Main level
12.6 x 11.10

Location

Learn more about this property
Listing provided by:
Re/Max Park Place Inc. (Antigonish)
MLS® number:
202600530
Agent:
Nancy Henning
*Indicates required field
Name is required
Email is required
Please enter a valid phone number (e.g., 416-111-1111).