396 Station Road, Great Village, Nova Scotia B0M 1L0

Listed for:
$2,495,000
0 beds
0 baths
Listed 150 days ago
396 Station Road, Great Village, Nova Scotia B0M 1L0

View all 31 photos

About

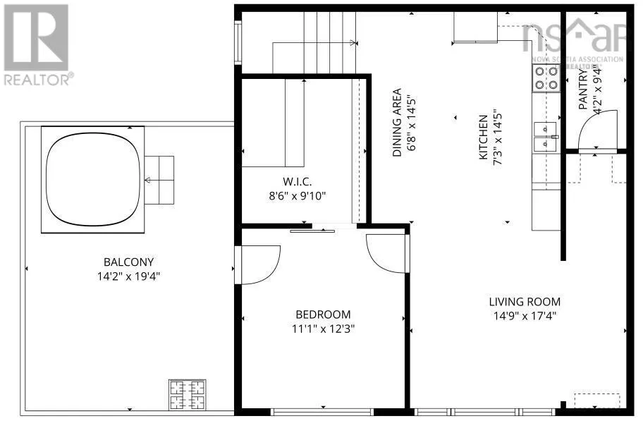
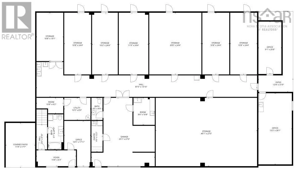
If coming from Truro direction , take Highway 104, take Exit 11 Turn Left onto Station Road, Stay Left on Station Road # 396. If coming from Cobequid toll Pass, Take Exit 10 Turn right onto Station Road, Stay Left on Station Road # 396. 15,014 SF (810 SF 2nd floor) in 3 Pre-Eng. Steel buildings built between 2016-2021, situated on 1.99 Acres of Land, 1.2 KM from the Trans Canada HWY 104 via Exit 10 just past Debert/Truro. BLDG 1: 7,110 SF, BLDG 2: 1,681 SF BLDG 3: 6,223 SF. 12-22.5' Clear ceilings, Four large Grade Loading doors (14'x14', 12'x12' Two 14'x12'). Food grade washable freezer panel interior walls. 120/240 Volt 800 Amp Single Phase Power, 60 KW Solar Panels Generate +- $12,000/ year in electricity, 2 X Generac Propane Generator totaling 22 KW. 2nd floor 810 SF 1 bedroom, kitchen, Laundry, deck & hot tub, which works well for an owner occupier, or staff needing accommodations. (id:27476)

Property Highlights

MLS® Number
202519382
Type
Industrial
Community Name
Great Village
Ownership Type
Freehold
Land Size
1.9877 ac

Building

Fireplace Present
No
Basement Type
Basement Features
Building Heating Type
Heating Fuel
Building Cooling Type

Utilities

Water
Drilled Well

Location

Learn more about this property
Listing provided by:
Keller Williams Select Realty (Branch)
MLS® number:
202519382
Agent:
Philip Bolhuis
*Indicates required field
Name is required
Email is required
Please enter a valid phone number (e.g., 416-111-1111).