22 Joy Drive, Greenfield, Nova Scotia B6L 3S9

Listed for:
$399,900
2 beds
1 baths
Listed 257 days ago
House for rent: 22 Joy Drive, Greenfield, Nova Scotia B6L 3S9

View all 2 photos

Learn more about this property
Listing provided by:
Hants Realty Ltd.
MLS® number:
202504223
Agent:
Matthew Ward
*Indicates required field
Name is required
Email is required
Please enter a valid phone number (e.g., 416-111-1111).

About

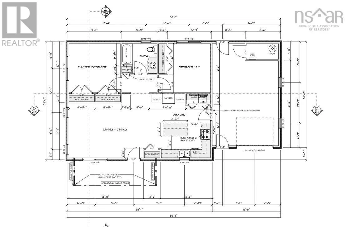
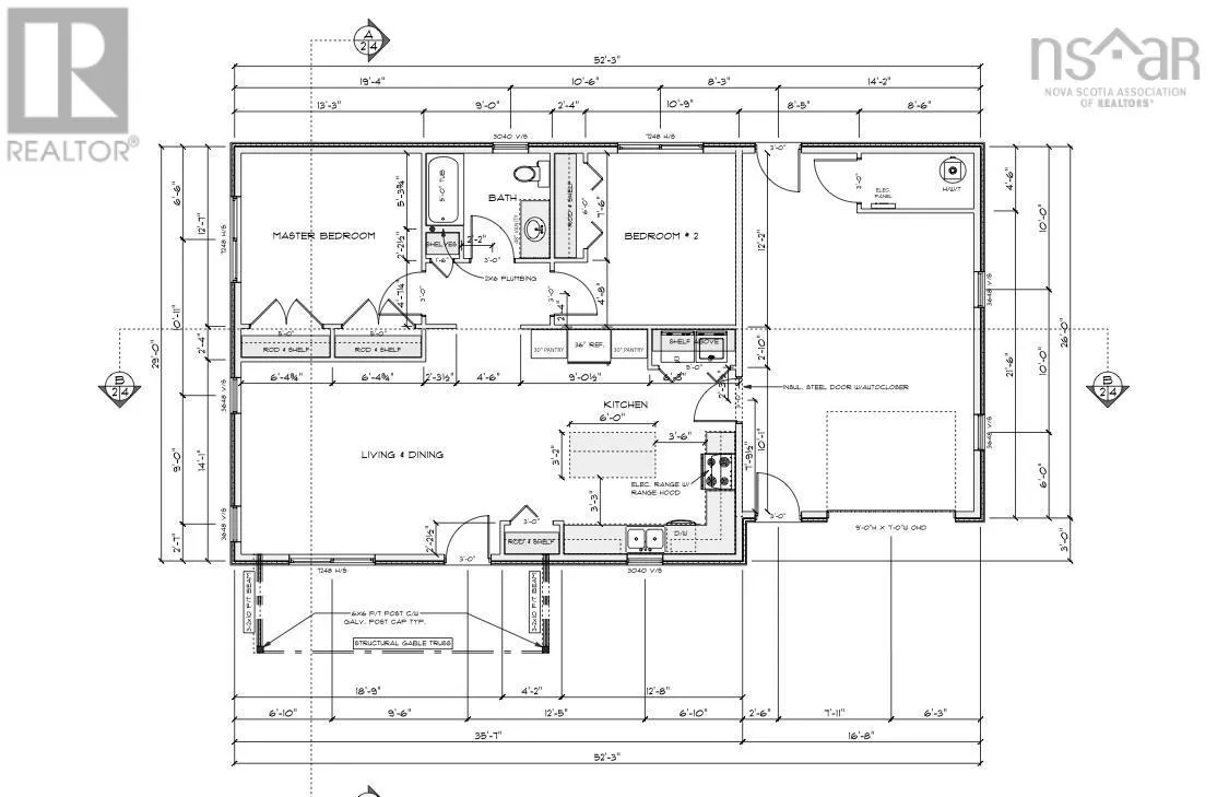
Take Queen Street East Truro, to Salmon River Road East, turns to Greenfield Rd, turn left onto Greg Rd, turn right onto Joy Dr. Looking for a new home that has 2 bedrooms on a heated in-floor slab with attached garage in Colchester? Look no further than this new home located on Joy Dr, Greenfield. This 1.3 acre property will be impressive. This new construction on slab will be mobility friendly with 36" door openings and lowered controls throughout. The kitchen features stainless steel appliances, plenty of cabinetry (soft close), two pantries and a gorgeous quartz countertop island peninsula with sink and breakfast bar. Perfect for a small family this home has 2 large bedrooms and a four piece bathroom that includes quartz countertops and ceramic floor. The main floor bedrooms, living room and kitchen has laminate flooring throughout. The heating systems are in-floor heat, and ductless heat pump that offers A/C in the summer and heating in the winter. Energy efficiency is key with this home so your energy bills should be minimal. There is additional room for storage in the single attached garage. Light is LED throughout the home with pot lights in the kitchen. In the utility room located in the garage you'll find a 200 amp electrical breaker panel with pressure tank, electric hot water heater and HRV unit for air exchange in the home. The home has vinyl siding, asphalt roof and vinyl windows. On the exterior of the home you will have a new single gravel driveway, seeded lot (weather dependent) and a covered porch area on the front of the home with pot lights. Don't miss out on this new build with 8 year LUX home warranty in Greenfield for summer of 2025 possession. The purchase price includes HST. All HST rebates back to the builder. (id:27476)

Property Highlights

MLS® Number
202504223
Type
Single Family
Community Name
Greenfield
Ownership Type
Freehold
Land Size
1.3096 ac

Building

Building Type
House
Storeys
1.00
Square Footage
1049 sqft
Bathrooms Total
1
Bedrooms Above Ground
2
Bedrooms Total
2
Amenities
Place of Worship
Exterior Finish
Vinyl
Fireplace Present
No
Basement Type
None
Basement Features
Building Heating Type
Heating Fuel
Building Cooling Type
Heat Pump

Utilities

Water
Drilled Well
Utility Sewer
Septic System

Room Layout

Living room
Main level
14.1x18.9
Kitchen
Main level
16.5x15. 3 1/2
Primary Bedroom
Main level
13.3 x 12.7
Bedroom
Main level
10.9 x 12.2
Bath (# pieces 1-6)
Main level
9. x 7.6 - jog

Location

Community Spotlight: Homes For sale in Your Neighborhood