3836 Memorial Drive, Halifax, Nova Scotia B3K 6R6

Listed for:
$587,000
4 beds
4 baths
Listed 194 days ago
Row / Townhouse for rent: 3836 Memorial Drive, Halifax, Nova Scotia B3K 6R6

View all 38 photos

About

Lady Hammond to Memorial Drive Location, location, location! Welcome to 3836 Memorial Drive! Located on one of the most convenient, quiet and desirable streets in the sought after North End of Halifaxs peninsula; this carpet free townhome has so much to offer. This home is just in walking distance to NSCC, schools, restaurants, playgrounds and bus stops. Groceries stores, shopping malls, universities and other amenities are just few minutes driving away. Travelling to Halifax downtown, Dartmouth, and other areas in HRM is never easier with this prime location. The home offers 4 bedrooms and 3.5 baths, including a master bedroom with ensuite and walk in closet. All hardwood throughout main and second floor. A spacious fully developed high ceiling basement provides much more space for family gathering and entertaining. This beautiful home has been kept and maintained with loves and cares for years. Key features and upgrades include: front yard landscape and artificial turf installed (2022), hot water heater (2022), roof (2020), new range (2020), new dishwasher (2021), and much more. Don't miss your chance to live in this lovely home. Book now for a showing. (id:27476)

Property Highlights

MLS® Number
202512304
Type
Single Family
Community Name
Halifax
Ownership Type
Freehold
Land Size
0.045 ac

Building

Building Type
Row / Townhouse
Storeys
2.00
Square Footage
2009 sqft
Bathrooms Total
4
Bedrooms Above Ground
3
Bedrooms Total
4
Amenities
Park, Playground, Public Transit, Shopping
Exterior Finish
Brick, Vinyl
Fireplace Present
No
Basement Type
Full (Finished)
Basement Features
Walk out
Building Heating Type
Heating Fuel
Building Cooling Type
Heat Pump

Utilities

Water
Municipal water
Utility Sewer
Municipal sewage system

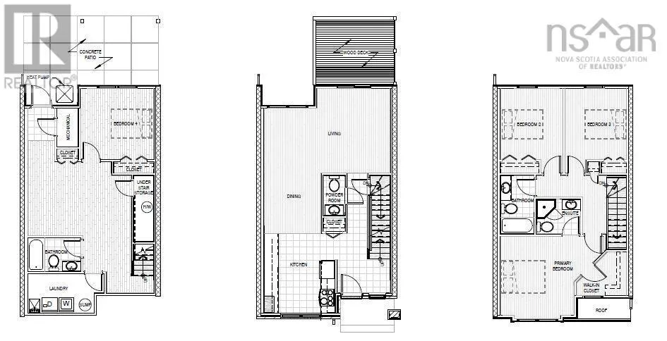
Room Layout

Bath (# pieces 1-6)
Second level
4.9x8.3
Ensuite (# pieces 2-6)
Second level
5.2x6
Primary Bedroom
Second level
11.8 x 11 + JOG
Bedroom
Second level
9.3 x 12.7
Bedroom
Second level
9.1 x 12.7
Bath (# pieces 1-6)
Basement
5x8.3
Recreational, Games room
Basement
7.2x14.4+8.3x9.4
Bedroom
Basement
10.6 x 10.9 + JOG
Laundry room
Basement
9.9 x 5.9 + JOG
Kitchen
Main level
11.9 x 7.9 + JOG
Dining room
Main level
8.6 x 9.1
Living room
Main level
18.8x9.7+3x10.9
Bath (# pieces 1-6)
Main level
3x6.1

Location

Learn more about this property
Listing provided by:
RE/MAX Nova (Halifax)
MLS® number:
202512304
Agent:
Bryan Nguyen
*Indicates required field
Name is required
Email is required
Please enter a valid phone number (e.g., 416-111-1111).

Community Spotlight: Homes For sale in Your Neighborhood