6519 Chester Avenue, Halifax, Nova Scotia B3L 2P5

Listed for:
$415,000
2 beds
1 baths
Listed 103 days ago
House for rent: 6519 Chester Avenue, Halifax, Nova Scotia B3L 2P5

View all 15 photos

Learn more about this property
Listing provided by:
Engel & Volkers
MLS® number:
202517663
Agent:
Cynthia Hollohan
*Indicates required field
Name is required
Email is required
Please enter a valid phone number (e.g., 416-111-1111).

About

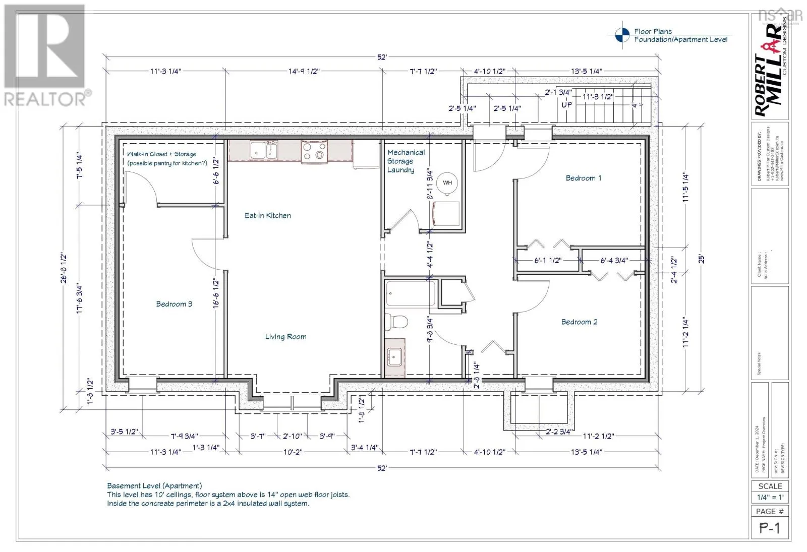
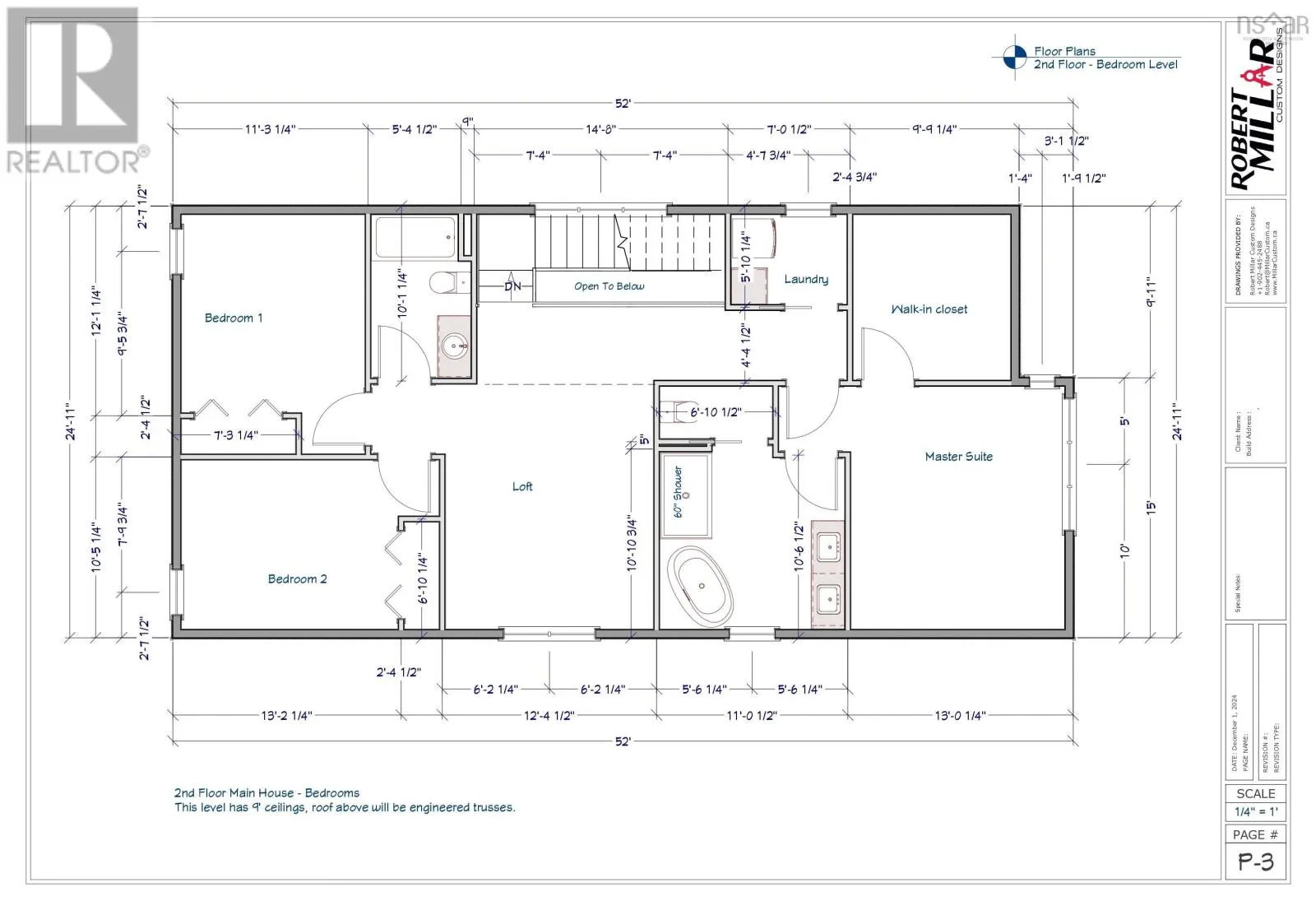
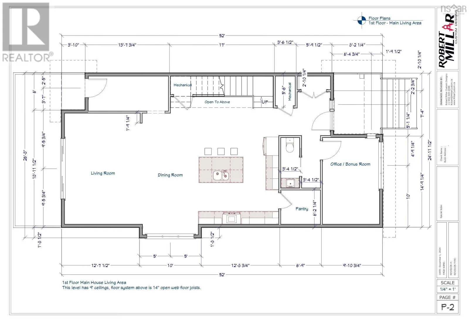
Windsor - Connolly - Chester Opportunity for development on the Peninsula! Highly sought-after West End location with walking distance to St. Catherines Elementary School and Halifax Independent School. This home will likely need to be taken back to the studs or torn down completely. The property is being sold as is, where is. See plans for ideas about your new dream home!!! (id:27476)

Property Highlights

MLS® Number
202517663
Type
Single Family
Community Name
Halifax
Ownership Type
Freehold
Land Size
0.0918 ac

Building

Building Type
House
Storeys
1.00
Square Footage
816 sqft
Bathrooms Total
1
Bedrooms Above Ground
2
Bedrooms Total
2
Exterior Finish
Vinyl
Fireplace Present
No
Basement Type
Full
Basement Features
Building Heating Type
Heating Fuel
Building Cooling Type

Utilities

Water
Municipal water
Utility Sewer
Municipal sewage system

Room Layout

Location

Community Spotlight: Homes For sale in Your Neighborhood