31 Seafarers Lane, Halifax, Nova Scotia B3P 1P5

Listed for:
$775,000
3 beds
2 baths
Listed 75 days ago
House for rent: 31 Seafarers Lane, Halifax, Nova Scotia B3P 1P5

View all 36 photos

Learn more about this property
Listing provided by:
Red Door Realty
MLS® number:
202522478
Agent:
Christine Morrison Grace
*Indicates required field
Name is required
Email is required
Please enter a valid phone number (e.g., 416-111-1111).

About

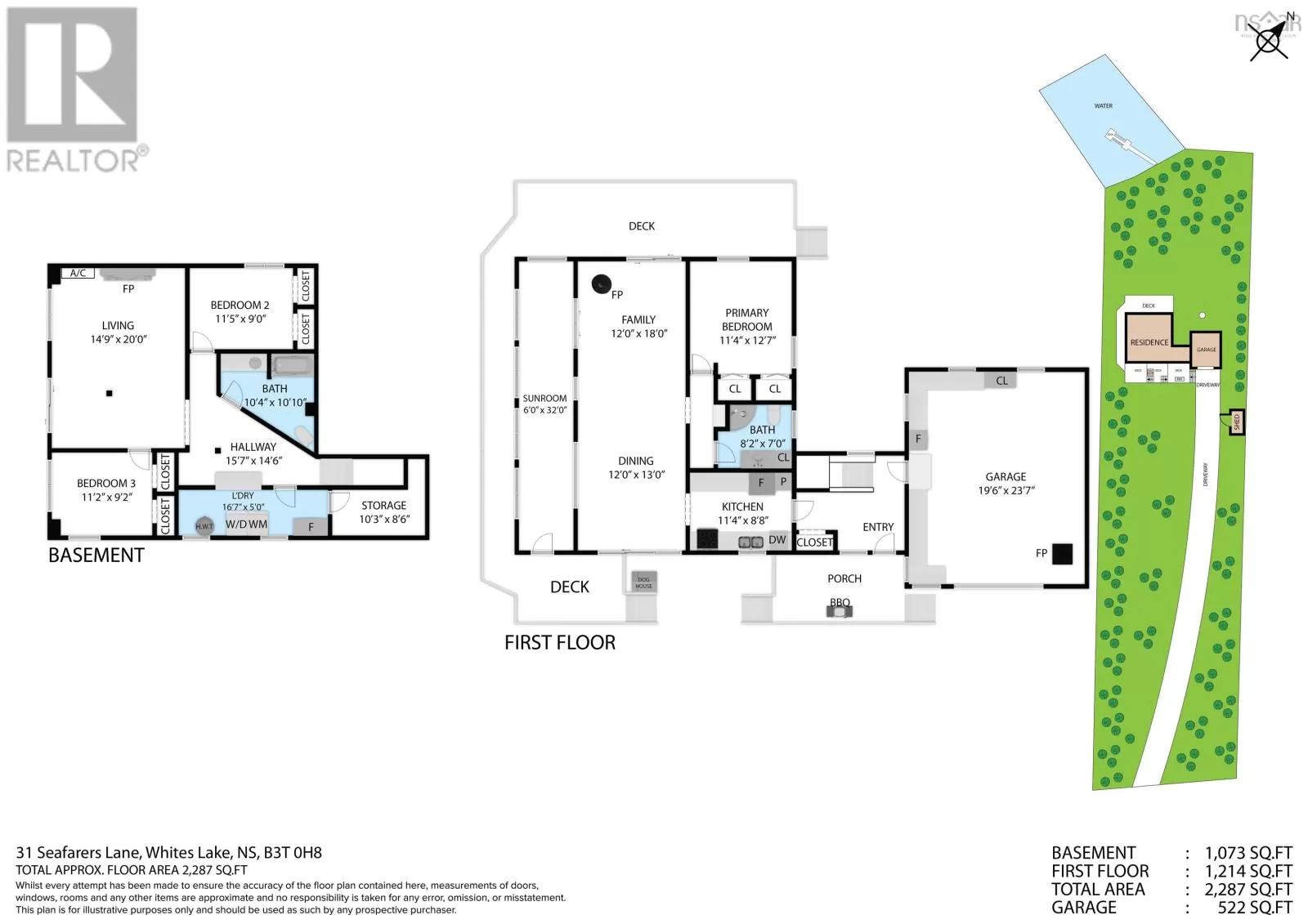
Prospect Road to Terrance Bay Road, to Powers Road, right on Pioneer Hill, turn right on Seafarer's Lane If you are lucky enough to live by the sea, you are lucky enough goes the adage, but this property on the sea makes you very lucky! Landscaped to take advantage of the parklike property, a home to indigenous plants and fauna, the path to the waterfront beach lends truth to the journey being the joy. From the waterfront look straight up the Bay, past Rogues Roost and on to the open sea...it is magical in all seasons and weather. But this beautiful setting does not overshadow this wonderful home, situated overlooking the bay and taking advantage of the natural light. All windows are designed to capture the art of nature and allow the outdoor ambiance in. A beautiful deck allows you enjoy this paradise, from a quiet seat. In cooler seasons enjoy the peace of the sunroom, the warmth of the fire in the living room, gather with family and friends in the dining area or dine al fresco on the deck. A primary bedroom and full bath are tucked off to one side of the main floor, a well appointed kitchen at the heart of the home has access through a foyer to the entrance, storage, the double garage with plenty of workspace and the lower level. Two bedrooms, a large family room, full bath, laundry room and curated storage and wine cellar compose the lower level. The same attention to outdoor access and flow of natural light is at play here. If you are lucky enough to own this property... you are lucky! (id:27476)

Property Highlights

MLS® Number
202522478
Type
Single Family
Community Name
Halifax
Ownership Type
Freehold
Land Size
0.9653 ac

Building

Building Type
House
Storeys
1.00
Square Footage
2183 sqft
Bathrooms Total
2
Bedrooms Above Ground
1
Bedrooms Total
3
Amenities
Park, Playground, Place of Worship, Beach
Exterior Finish
Other
Fireplace Present
No
Basement Type
Basement Features
Building Heating Type
Heating Fuel
Building Cooling Type

Utilities

Water
Dug Well
Utility Sewer
Septic System

Room Layout

Recreational, Games room
Lower level
20. x 14.9
Bedroom
Lower level
11.2 x 9.2
Bedroom
Lower level
11.5 x 9
Bath (# pieces 1-6)
Lower level
10.4 x 10.10
Laundry room
Lower level
16.7 x 5
Storage
Lower level
10.3 x 8.6
Foyer
Main level
11.9 x 10.4
Kitchen
Main level
11.4 x 8.8
Dining room
Main level
12 x 13
Living room
Main level
12 x 18
Sunroom
Main level
6. x 32
Bedroom
Main level
12.7 x 11.4
Bath (# pieces 1-6)
Main level
8.2 x 7

Location

Community Spotlight: Homes For sale in Your Neighborhood