4 2093 Creighton Street, Halifax, Nova Scotia B3K 3R5

Listed for:
$459,900
2 beds
1 baths
Listed 56 days ago
Apartment for rent: 4 2093 Creighton Street, Halifax, Nova Scotia B3K 3R5

View all 29 photos

Learn more about this property
Listing provided by:
RE/MAX Nova (Halifax)
MLS® number:
202527345
Agent:
Stacey Devoe
*Indicates required field
Name is required
Email is required
Please enter a valid phone number (e.g., 416-111-1111).

About

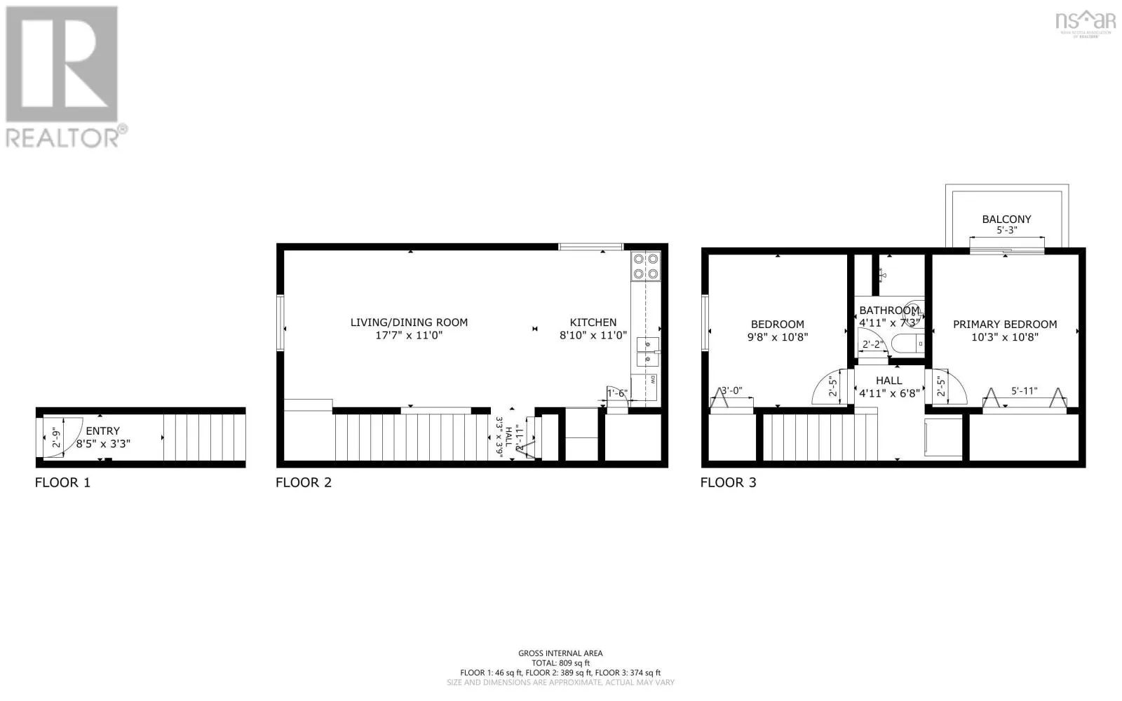
Nora Bernard St to Creighton St This two level, two bedroom corner condo delivers character, natural light and a warm sense of place. The location is fantastic and places you within walking distance to cafés, restaurants, local shops, public transit and the Halifax Commons. You can even hear the Noon Gun which is part of the authentic Peninsula experience. The main living level offers a bright and functional layout with generous windows and an easy flow for everyday living and relaxed hosting. Upstairs you will find two bedrooms, a full bathroom and the laundry. This upper level is a standout with vaulted ceilings, skylights that bring in beautiful natural light and exposed beams that add architectural interest. The primary bedroom opens onto a private deck with lovely views and the second bedroom includes a Murphy bed, making the space flexible for guests or a hybrid office. Parking is included, though this walkable location truly supports a car light lifestyle. Grab your coffee nearby, take a short walk to the Commons or head downtown with ease. This is a well kept building with a friendly feel and only a handful of units. If you have been searching for a bright condo with character and the ability to live close to everything the Peninsula offers, this is one to see. Book your private viewing today. (id:27476)

Property Highlights

MLS® Number
202527345
Type
Single Family
Community Name
Halifax
Maintenance Fee
400.00
Ownership Type
Condominium/Strata
Land Size
0.0202 ac

Building

Building Type
Apartment
Storeys
2.00
Square Footage
880 sqft
Bathrooms Total
1
Bedrooms Above Ground
2
Bedrooms Total
2
Amenities
Park, Shopping, Place of Worship
Exterior Finish
Vinyl
Fireplace Present
No
Basement Type
None
Basement Features
Building Heating Type
Heating Fuel
Building Cooling Type

Utilities

Water
Municipal water
Utility Sewer
Municipal sewage system

Room Layout

Primary Bedroom
Second level
10.8 x 10.3
Bedroom
Second level
10.8 x 9.8
Bath (# pieces 1-6)
Second level
7.3 x 4.11
Living room
Main level
17.7 x 11.0
Kitchen
Main level
11.0 x 8.10

Location

Community Spotlight: Homes For sale in Your Neighborhood