5 Kirk Road, Halifax, Nova Scotia B3P 1A5

Listed for:
$550,000
2 beds
1 baths
Listed 7 days ago
House for rent: 5 Kirk Road, Halifax, Nova Scotia B3P 1A5

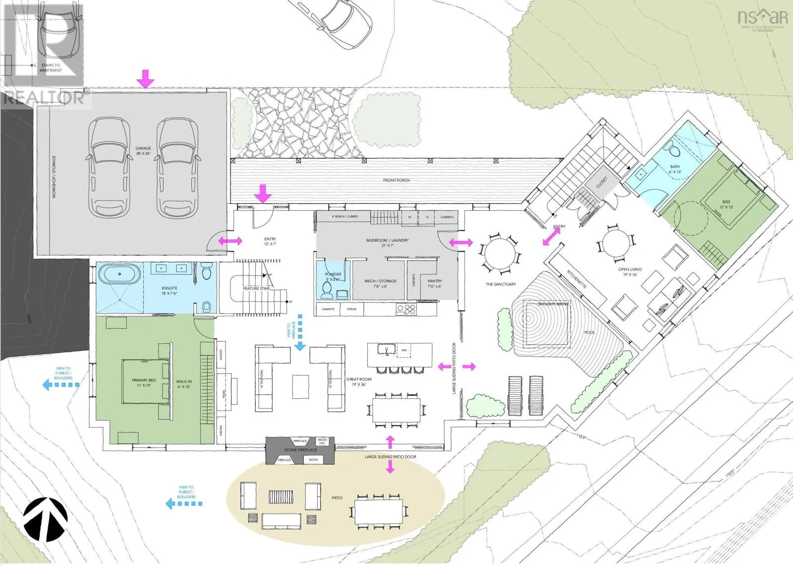
View all 31 photos

About

Starting from the Armadale Roundabout take the Purcells Cove Road and turn left on Parkhill Road. Take Parkhill Road to Kirk Road. Development Opportunity Near Sir Sanford Flemming Park at the Dingle Welcome to a development opportunity in one of Halifaxs most desirable neighbourhoods nestled in this charming seaside enclave just off the Northwest Arm, Sir Sanford Flemming Park, and the Dingle! 5 Kirk Road presents potential for conversion, renovation, redevelopment, or your custom residential forever home. Site and building plans available. Set on a spacious R-1 zoned 15,069 square foot corner lot, this former church consists of one beautifully treed and landscaped lot. 5 Kirk Road offers the tranquility of cottage country with the convenience of city living just 12 minutes from downtown Halifax. Buyers will appreciate the property's proximity to top local amenities including beaches, The Armdale Yacht Club, The Royal Nova Scotia Yacht Squadron, Frog Pond Park, Williams Lake Beach, and scenic walking trails. Whether youre looking to develop, repurpose, or create a one-of-a-kind property, 5 Kirk Road offers a rare blend of size, location, and flexibility in a neighbourhood celebrated for its community charm and seaside beauty. Interior site preparation has been completed down to the framing and subflooring and all demolition debris removed in preparation for the new owner to make 5 Kirk Road their own. Book your private showing today and explore the incredible potential this property holds. (id:27476)

Property Highlights

MLS® Number
202605465
Type
Single Family
Community Name
Halifax
Ownership Type
Freehold
Land Size
0.3459 ac

Building

Building Type
House
Storeys
1.00
Square Footage
2443 sqft
Bathrooms Total
1
Bedrooms Above Ground
1
Bedrooms Total
2
Amenities
Park, Playground, Public Transit, Shopping, Place of Worship, Beach
Exterior Finish
Vinyl
Fireplace Present
No
Basement Type
Basement Features
Building Heating Type
Heating Fuel
Building Cooling Type

Utilities

Water
Municipal water
Utility Sewer
Municipal sewage system

Room Layout

Kitchen
Basement
9. /9.6
Recreational, Games room
Basement
17. /31
Foyer
Main level
20. /5.6
Great room
Main level
19.6 /39
Bath (# pieces 1-6)
Main level
2 pc
Den
Main level
8. /13
Den
Main level
7.6 /11

Location

Learn more about this property
Listing provided by:
RE/MAX Nova (Halifax)
MLS® number:
202605465
Agent:
Chris Musial
*Indicates required field
Name is required
Email is required
Please enter a valid phone number (e.g., 416-111-1111).

Community Spotlight: Homes For sale in Your Neighborhood