173 St Margaret's Bay Road, Halifax, Nova Scotia B3N 1K8

Listed for:
$2,899,900
0 beds
0 baths
Listed 27 days ago
Other for rent: 173 St Margaret's Bay Road, Halifax, Nova Scotia B3N 1K8

View all 17 photos

About

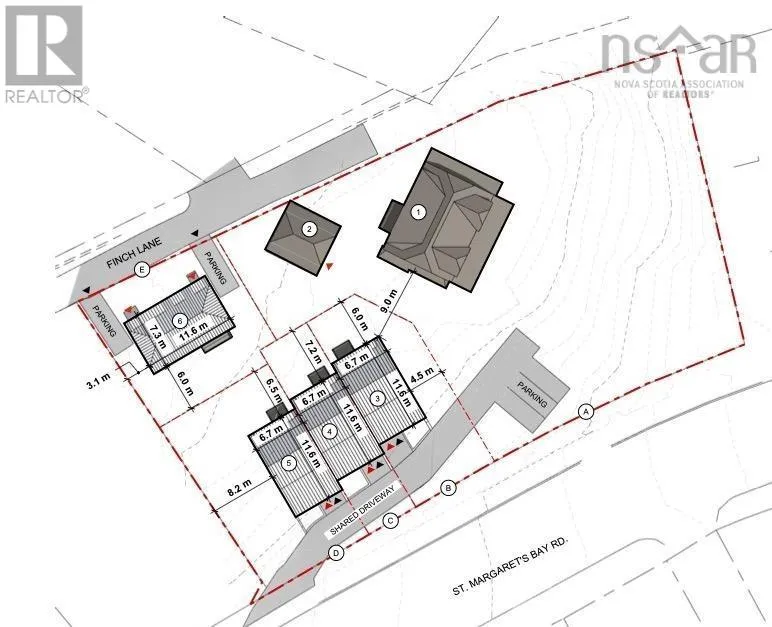
From Quinpool Rd - take roundabout, 3rd exit: St Margaret's Bay Rd, then an immediate right onto #175. From Hwy 102 - take Joe Howe to roundabout, take first exit: St Margaret's Bay Rd, then an immediate right onto #175. You can also take Finch Lane to access additional parking on parking pad at rear of property. Positioned on a generous parcel along sought-after St. Margarets Bay Road, this rare offering presents a compelling blend of immediate income, approved development potential, and long-term upside. The historic residence known as Craigmore sits on a property now supported by an approved Development Agreement, enabling subdivision into five distinct lots and the construction of a luxury duplex, a substantial three-unit townhome, plus the opportunity to add an additional unit by converting the existing detached garage. Importantly, the Development Agreement predates the Housing Accelerator zoning changes, offering prospective purchasers the potential to explore enhanced density options as planning policies evolve. The existing structure is a legal over-under duplex with established tenants, providing stable holding income while future plans are realized. Steeped in local history, Craigmore was originally built in 1908 and reflects classic Arts & Crafts / Cottage architectural influences. Mature landscaped grounds, stone walls, and winding garden pathways contribute to the propertys timeless character and enduring curb appeal. A bronze plaque at the entrance commemorates its Gaelic name, meaning solid rock, a fitting tribute to both its heritage and its enduring presence within the North West Arm community. This is a rare opportunity to secure a strategically located development site with approved entitlements, current revenue, and meaningful future potential. Ideal for investors, builders, or developers seeking to create a signature residential enclave in one of Halifaxs most desirable corridors. (id:27476)

Property Highlights

MLS® Number
202605686
Type
Other
Community Name
Halifax
Ownership Type
Freehold
Land Size
0.7494 ac

Building

Building Type
Other
Amenities
Fireplace(s) Golf Course, Park, Playground, Public Transit, Shopping, Place of Worship
Exterior Finish
Wood shingles
Fireplace Present
No
Basement Type
Basement Features
Building Heating Type
Heating Fuel
Building Cooling Type
Air Conditioned, Heat Pump

Utilities

Water
Municipal water
Utility Sewer
Municipal sewage system

Location

Learn more about this property
Listing provided by:
Engel & Volkers
MLS® number:
202605686
Agent:
Christopher(chris) Harding
*Indicates required field
Name is required
Email is required
Please enter a valid phone number (e.g., 416-111-1111).

Community Spotlight: Homes For sale in Your Neighborhood