107 Alabaster Way, Halifax, Nova Scotia B3P 0C5

Listed for:
$593,900
3 beds
3 baths
Listed 47 days ago
House for rent: 107 Alabaster Way, Halifax, Nova Scotia B3P 0C5

View all 10 photos

About

Herring Cove to Drysdale to Alabaster Welcome to 107 Alabaster Way, a charming and affordably priced new construction home in the sought-after Governors Brook subdivision in Spryfield, NS. This vibrant yet peaceful community is perfect for families seeking connection, convenience, and outdoor amenities.Step inside to discover a bright, open-concept main floor, thoughtfully designed for modern living. The comfortable living and dining areas flow seamlessly together, creating an inviting space for entertaining or keeping an eye on little ones. The kitchen features stylish finishes and ample counter space, making it both functional and beautiful. Upstairs, youll find three generously sized bedrooms, offering plenty of room for a growing family. The primary bedroom provides a peaceful retreat with ample closet space,while the additional bedrooms are perfect for children, guests, or a home office. One of the standout features of this home is the attached garage, providing convenience and extra storageideal for keeping your vehicle sheltered during the winter months or storing outdoor gear. Governors Brook is known for its family-friendly atmosphere, with parks, walking trails, and easy access to schools and recreational facilities. Plus, with shopping, dining, and essential services just minutes away, everything you need is within reach. This home offers the perfect blend of affordability, comfort, and community, making it an excellent opportunity for first-time buyers or families looking to settle in a welcoming neighborhood. Currently under construction, this homealong with several other modelswill be move-in ready in June 2026. Don't miss your chance to be part of this thriving community! (id:27476)

Property Highlights

MLS® Number
202606032
Type
Single Family
Community Name
Halifax
Ownership Type
Freehold
Land Size
0.1377 ac

Building

Building Type
House
Storeys
2.00
Square Footage
1319 sqft
Bathrooms Total
3
Bedrooms Above Ground
3
Bedrooms Total
3
Amenities
Park, Playground, Public Transit, Shopping
Exterior Finish
Vinyl
Fireplace Present
No
Basement Type
Full (Unfinished)
Basement Features
Building Heating Type
Heating Fuel
Building Cooling Type
Heat Pump

Utilities

Water
Municipal water
Utility Sewer
Municipal sewage system

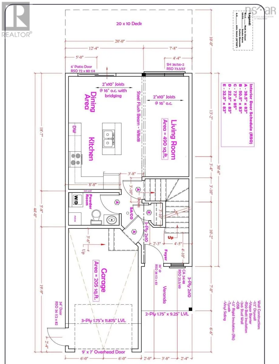
Room Layout

Primary Bedroom
Second level
19.0 x 11.6
Ensuite (# pieces 2-6)
Second level
8.0 x 4.0
Bedroom
Second level
13.4 x 9.4 / +jog
Bedroom
Second level
10.0 x 9.4
Bath (# pieces 1-6)
Second level
8.0 x 5.6
Foyer
Main level
7.6 x 4.1 / +jog
Eat in kitchen
Main level
17.11 x 9.6
Living room
Main level
15.1 x 9.6
Bath (# pieces 1-6)
Main level
8.0 x 5.4

Location

Learn more about this property
Listing provided by:
RE/MAX Nova
MLS® number:
202606032
Agent:
Rob Corey
*Indicates required field
Name is required
Email is required
Please enter a valid phone number (e.g., 416-111-1111).

Street Spotlight - For sale