32 Brianna Drive, Lantz, Nova Scotia B2S 0K4

Listed for:
$749,900
4 beds
4 baths
Listed 49 days ago
House for rent: 32 Brianna Drive, Lantz, Nova Scotia B2S 0K4

View all 10 photos

Learn more about this property
Listing provided by:
RE/MAX Nova (Halifax)
MLS® number:
202525241
Agent:
Melissa Berry
*Indicates required field
Name is required
Email is required
Please enter a valid phone number (e.g., 416-111-1111).

About

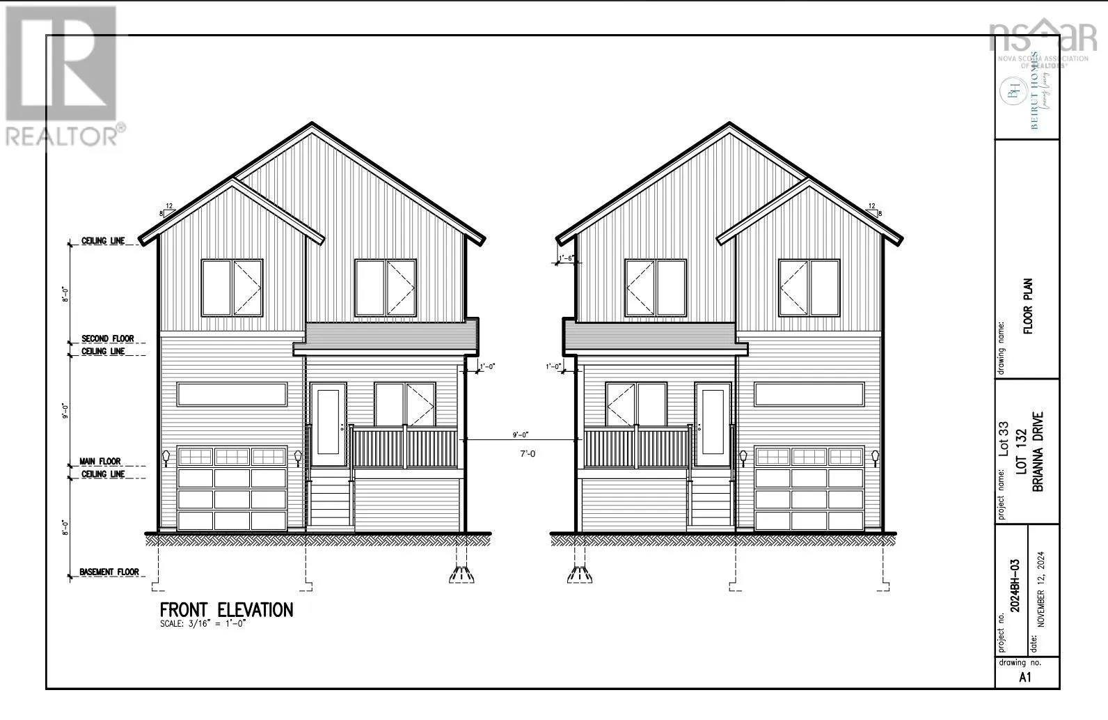
Highway 102 to Poplar Drive. Turn right onto Mariah Drive, then right on Brianna Drive Move in ready late Fall 2025! Why settle for anything less, when you can have top-quality new construction, with enough space for the entire family, in the beautiful and mega-popular community of Lantz? Introducing this stunning NEW PLAN on Brianna Drive, brought to you by Beirut Homes. This contemporary build features four bedrooms, three and a half baths, including a fully finished basement With hard surface countertops, two covered decks with privacy fences, and a paved double driveway, this home serves up all the features youve been craving, in a stylish package, conveniently located in Osprey Landing in the heart of Lantz. This community is just moments from Maple Ridge Elementary, the East Hants Sportsplex, parks, shopping, dining and entertainment options and Highway 102. Only ten minutes from the airport and under 30 minutes from both Halifax and Truro, youll love the family-friendly vibe in this growing community. (id:27476)

Property Highlights

MLS® Number
202525241
Type
Single Family
Community Name
Lantz
Ownership Type
Freehold
Land Size
0.13 ac

Building

Building Type
House
Storeys
2.00
Square Footage
2756 sqft
Bathrooms Total
4
Bedrooms Above Ground
3
Bedrooms Total
4
Amenities
Park, Playground, Shopping, Place of Worship
Exterior Finish
Vinyl
Fireplace Present
No
Basement Type
Basement Features
Building Heating Type
Heating Fuel
Building Cooling Type
Heat Pump

Utilities

Water
Municipal water
Utility Sewer
Municipal sewage system

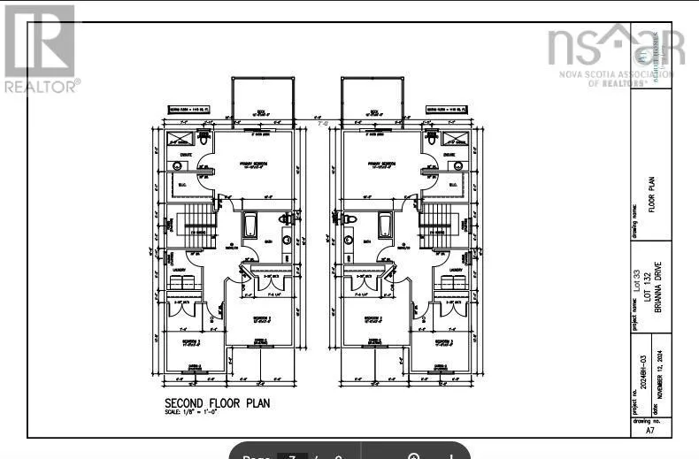
Room Layout

Primary Bedroom
Second level
14.1 x 15
Ensuite (# pieces 2-6)
Second level
3pc
Bedroom
Second level
12.8 x 13
Bedroom
Second level
11 x 13
Bath (# pieces 1-6)
Second level
3pc
Bedroom
Second level
13 x 15.5
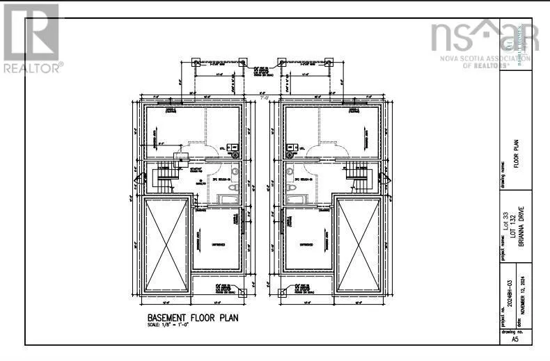
Recreational, Games room
Basement
14 x 24
Bath (# pieces 1-6)
Basement
11 x 8.5
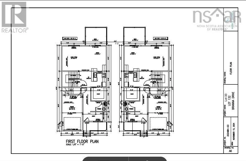
Kitchen
Main level
8 x 12
Dining room
Main level
8 x 10.3
Living room
Main level
16 x 13.7
Other
Main level
Pantry|8 x 10
Bath (# pieces 1-6)
Main level
2pc

Location

Street Spotlight - For sale