25 Jan Marie Drive, Lawrencetown, Nova Scotia B2Z 1E2

Listed for:
$549,000
4 beds
2 baths
Listed 42 days ago
House for rent: 25 Jan Marie Drive, Lawrencetown, Nova Scotia B2Z 1E2

View all 28 photos

About

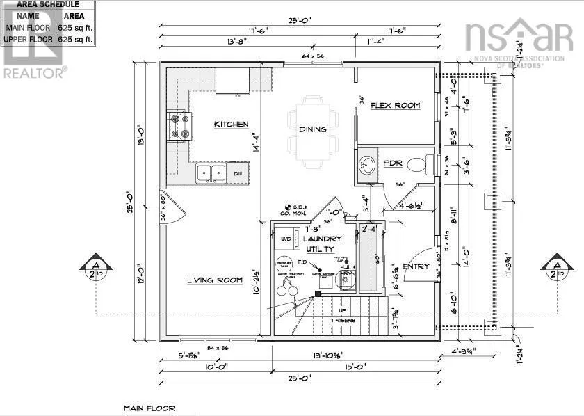
Lawrencetown Road left on Gammon Lake left on Lillian right on Jan Marie When viewing this property on Realtor.ca MLS # 202602903 Please click on Realtor's website link to the right for further information. This brand new house offers 4 bedrooms, 1.5 baths, an open-concept kitchen-dining-living area, and a private property surrounded by tall mature trees. Ideally located in a quiet family oriented subdivision, with a quaint front covered patio. Two heat pumps; in the living room and primary bedroom, supply cool AC in the summer and affordable heating in the winter. This home boasts porcelain tiles, elegant light fixtures, lots of natural daylight, and a beautiful kitchen with stainless steel appliances. Just 10 minutes to the heart of Cole Harbour, 10 minutes to Lawrencetown beach, and 25 minutes to the Halifax bridges. Also, the Salt Marsh trail is nearby for outdoor enthusiasts. (id:27476)

Property Highlights

MLS® Number
202602903
Type
Single Family
Community Name
Lawrencetown
Ownership Type
Freehold
Land Size
0.779 ac

Building

Building Type
House
Storeys
2.00
Square Footage
1250 sqft
Bathrooms Total
2
Bedrooms Above Ground
4
Bedrooms Total
4
Amenities
Park, Playground, Beach
Exterior Finish
Vinyl
Fireplace Present
No
Basement Type
None
Basement Features
Building Heating Type
Heating Fuel
Building Cooling Type
Wall unit, Heat Pump

Utilities

Water
Drilled Well
Utility Sewer
Septic System

Room Layout

Primary Bedroom
Second level
16x11
Bedroom
Second level
10x10.8
Bedroom
Second level
10x9.8
Bath (# pieces 1-6)
Second level
8x9
Foyer
Main level
14x4.6
Kitchen
Main level
11.6x10
Dining nook
Main level
14.4x7.6
Living room
Main level
13.6x10
Bath (# pieces 1-6)
Main level
7.6x3.6
Laundry room
Main level
7.8x6.7
Bedroom
Main level
7.6x7.6
Foyer
Main level
Measurements not available

Location

Learn more about this property
Listing provided by:
FLAT RATE REALTY CANADA LTD - 15099
MLS® number:
202602903
Agent:
Linda Clarke
*Indicates required field
Name is required
Email is required
Please enter a valid phone number (e.g., 416-111-1111).

Community Spotlight: Homes For sale in Your Neighborhood