243 Pelham Street, Lunenburg, Nova Scotia B0J 2C0

Listed for:
$998,000
3 beds
3 baths
Listed 16 days ago
Duplex for rent: 243 Pelham Street, Lunenburg, Nova Scotia B0J 2C0

View all 49 photos

Learn more about this property
Listing provided by:
Engel & Volkers (Lunenburg)
MLS® number:
202529467
Agent:
Michael Wilson
*Indicates required field
Name is required
Email is required
Please enter a valid phone number (e.g., 416-111-1111).

About

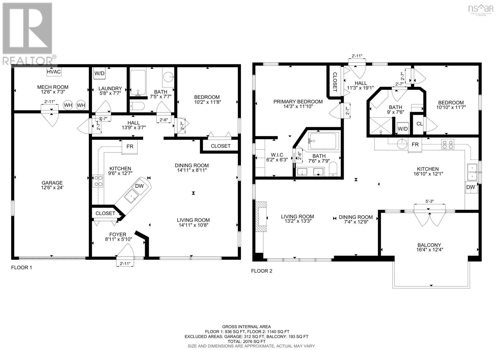
Exit 11 from Highway 103. Proceed south to Lunenburg. Take Lincoln Street to where it terminated on Blockhouse Hill Road. Right to Sawpit Rd. and right onto Pelham Street. Property on your right. Constructed in 2010, this "upper and lower", traditional-contemporary design, is full of sun, set against Lunenburg's Blockhouse Hill facing the historic front harbour. The vintage architectural and nautical views to the working waterfront, make this 'nearly new' offering of premium ICF construction, a rarity within the historic fabric of Old Town. This architecturally sensitive design consists of two independent units each with its own, private, stairless front entry. The lower, one-bedroom suite is adjacent a heated, attached garage, with tandem parking for two cars. The main living area is open concept and features radiant, hot-water, in-floor heating. There are harbour views from the living room and an outdoor seating area to one side. The primary suite is accessed from a paved driveway which curls round the building to the rear with a gentle rise. Upon entering one is greeted with a spacious foyer-"L" with a bathroom, with shower and laundry, adjacent the guest bedroom. This rear foyer separates the guest bedroom from the primary bedroom which features an ensuite bath off a dressing area with closets. The cathedral ceilings of the second level lend for a light and airy feel in the primary suite and the open-concept, main living area and kitchen which span the entire front of the building. The second floor also features hardwood flooring, a gas fireplace, and a covered verandah (16'4 X 12'4) overlooking the bay. There is a sidewalk across the road in front of the house and this property is located minutes walk to the ocean at front harbour, or a few minutes drive to the public marina and park at back harbour. An old fashioned grocery store is a short walk away. Apart from all the comforts of a newer, low-maintenance home this offering is foremost a "lifestyle property". Its architecture references old-world design and offers a unique configuration for extended family or loved ones beneath one roof, at the beautiful heart of Lunenburg. (id:27476)

Property Highlights

MLS® Number
202529467
Type
Single Family
Community Name
Lunenburg
Ownership Type
Freehold
Land Size
0.2135 ac

Building

Building Type
Duplex
Storeys
2.00
Square Footage
2100 sqft
Bathrooms Total
3
Bedrooms Above Ground
3
Bedrooms Total
3
Amenities
Golf Course, Park, Playground, Shopping, Place of Worship
Exterior Finish
Wood shingles, Concrete
Fireplace Present
Yes
Basement Type
Full (Finished)
Basement Features
Walk out
Building Heating Type
Heating Fuel
Building Cooling Type

Utilities

Water
Municipal water
Utility Sewer
Municipal sewage system

Room Layout

Foyer
Second level
11.3x19.1x4. irreg
Kitchen
Second level
12.1x16.10
Dining room
Second level
7.4x12.9
Living room
Second level
13.2x13.3
Primary Bedroom
Second level
14.3x11.10
Storage
Second level
6.2x6.3
Bath (# pieces 1-6)
Second level
7.6x7.9
Bedroom
Second level
10.10x11.7
Bath (# pieces 1-6)
Second level
7.6x9. laund
Foyer
Main level
8.11x5.10
Living room
Main level
14.11x10.8
Dining room
Main level
14.11x8.11
Kitchen
Main level
9.6x12.7
Foyer
Main level
3.7x13.9
Bedroom
Main level
10.2x11.8
Bath (# pieces 1-6)
Main level
7.5x7.7
Laundry room
Main level
5.8x7.7
Utility room
Main level
12.6x7.3

Location

Community Spotlight: Homes For sale in Your Neighborhood