31 Pleasant Street, Melvern Square, Nova Scotia B0P 1R0

Listed for:
$549,900
2 beds
1 baths
Listed 16 days ago
House for rent: 31 Pleasant Street, Melvern Square, Nova Scotia B0P 1R0

View all 44 photos

About

From Highway 1 in Wilmot, North on Stronach Mountain Road then East on Pleasant Street to civic # on North side A rare opportunity to own a property that offers both serious shop workspace and comfortable living. The impressive 2,000 sq.ft. detached garage immediately sets this property apart, offering a 15'9" ceiling height, a 12' x 12' overhead door, a dedicated office space within the garage, and a wheelchair-accessible 2-piece washroom. Ideal for mechanics, tradespeople, contractors, hobbyists, or anyone needing serious workspace at home, this is a unique setup for projects, equipment, vehicles, or business use. And the value doesnt stop there the well maintained two-bedroom, one-bath bungalow sits on just over half an acre and has been thoughtfully updated with a steel roof, windows, siding, hot tub and generator panel. The walkout basement adds future potential for a rental or in-law suite, additional living space, storage, or workshop use. Located just minutes from 14 Wing Greenwood and close to amenities, this versatile property offers an exceptional combination of home, workspace, and future potential. Buyer to verify zoning, approvals, and permitted uses. (id:27476)

Property Highlights

MLS® Number
202604864
Type
Single Family
Community Name
Melvern Square
Ownership Type
Freehold
Land Size
0.6573 ac

Building

Building Type
House
Storeys
1.00
Square Footage
796 sqft
Bathrooms Total
1
Bedrooms Above Ground
2
Bedrooms Total
2
Exterior Finish
Wood siding
Fireplace Present
No
Basement Type
Crawl space
Basement Features
Building Heating Type
Heating Fuel
Building Cooling Type
Wall unit, Heat Pump

Utilities

Water
Drilled Well
Utility Sewer
Septic System

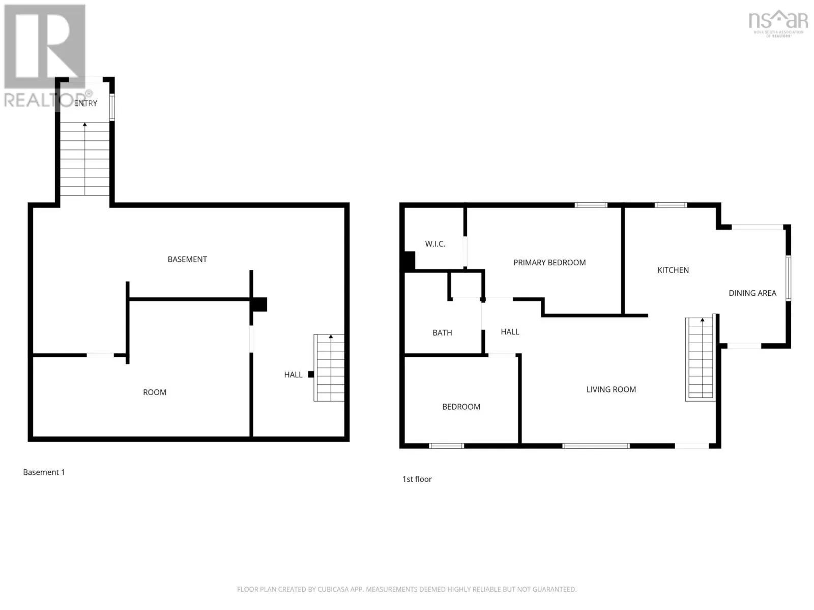
Room Layout

Family room
Lower level
20.8x7.4
Eat in kitchen
Main level
15.5x7.8+2.3x9.3
Living room
Main level
16.4x12
Primary Bedroom
Main level
15.3x8.5+7.6x1.8
Bath (# pieces 1-6)
Main level
7.4x7.5
Bedroom
Main level
11x8.6
Foyer
Main level
5.5x3.4

Location

Learn more about this property
Listing provided by:
RE/MAX Banner Real Estate(Greenwood)
MLS® number:
202604864
Agent:
Lisa Barteaux
*Indicates required field
Name is required
Email is required
Please enter a valid phone number (e.g., 416-111-1111).