Lot 5128 246 Orchid Court, Middle Sackville, Nova Scotia B4E 3C3

Listed for:
$729,900
4 beds
3 baths
Listed 77 days ago
House for rent: Lot 5128 246 Orchid Court, Middle Sackville, Nova Scotia B4E 3C3

View all 33 photos

About

NS-102, take exit 4B, then exit 2A, stay on Margeson Dr, right onto Midnight Run, left on Gaspereau, right onto Bondi Dr, right onto Zaffre Dr Join us every Saturday and Sunday from 2-4 pm at our Model Home at 451 Zaffre Drive to view our beautiful selections and to discuss a potential new build for you. Amara Developments is thrilled to introduce The Cortina" in the newest phase of Indigo Shores in Middle Sackville, Nova Scotia. Discover "The Cortina" - the epitome of modern living in this stunning newly constructed modern craftsman split-entry home ideally located a short commute from the city yet nestled in a serene country setting, offering 3+1 bedrooms, 3 full baths, and an array of premium features and "zen-factor". This brand-new design is an improvement in size from our popular Aspen plan and features a variety of compelling new qualities. A high-end kitchen awaits with stone counters, full-height cabinets, and soft-close drawers, while the bright living room invites relaxation with wide plank flooring. Luxurious touches abound, including a primary bedroom with a walk-in closet and an ensuite featuring a double floating vanity and custom shower. Contemporary finishes such as custom hardwood stairs, modern lighting, and designer tiles enhance the aesthetic, complemented by an energy-efficient heat pump. Additional highlights include an enhanced kitchen, a double-car garage, and a fourth bedroom in the basement with a full bath. Escape the ordinary and embrace modern comfort in the burbs' discover all the details and features of this stunning home and private oasis. More house plans and lots to come! (id:27476)

Property Highlights

MLS® Number
202600730
Type
Single Family
Community Name
Middle Sackville
Ownership Type
Freehold
Land Size
1.4666 ac

Building

Building Type
House
Storeys
1.00
Square Footage
1951 sqft
Bathrooms Total
3
Bedrooms Above Ground
3
Bedrooms Total
4
Exterior Finish
Vinyl
Fireplace Present
No
Basement Type
Basement Features
Building Heating Type
Heating Fuel
Building Cooling Type
Wall unit, Heat Pump

Utilities

Water
Drilled Well
Utility Sewer
Septic System

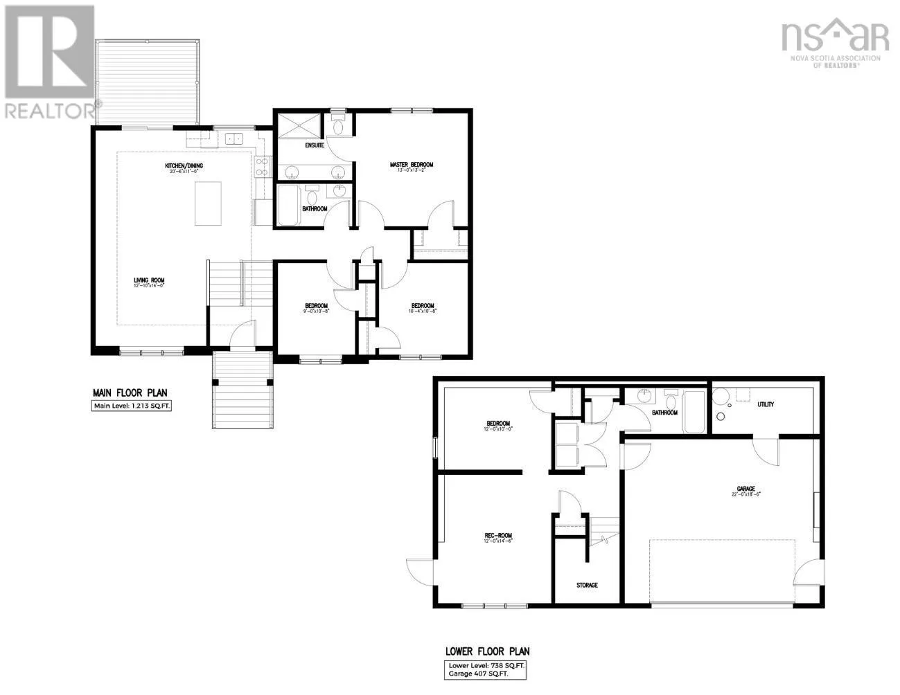
Room Layout

Recreational, Games room
Lower level
12. x 14.6
Bedroom
Lower level
12. x 10
Bedroom
Lower level
9. x 5.6
Utility room
Lower level
N/A
Other
Lower level
22. x 18.6 - GARAGE
Bath (# pieces 1-6)
Lower level
N/A
Living room
Main level
12.10 x 14
Eat in kitchen
Main level
20.6 x 11
Bath (# pieces 1-6)
Main level
N/A
Primary Bedroom
Main level
13. x 13.2
Ensuite (# pieces 2-6)
Main level
N/A
Bedroom
Main level
9. x 10.8
Bedroom
Main level
10.4 x 10.8

Location

Learn more about this property
Listing provided by:
Royal LePage Atlantic
MLS® number:
202600730
Agent:
Scott Moulton
*Indicates required field
Name is required
Email is required
Please enter a valid phone number (e.g., 416-111-1111).

Street Spotlight - For sale