5093 374 Bondi Drive, Middle Sackville, Nova Scotia B4E 0W2

Listed for:
$849,900
4 beds
4 baths
Listed Today
House for rent: 5093 374 Bondi Drive, Middle Sackville, Nova Scotia B4E 0W2

View all 4 photos

About

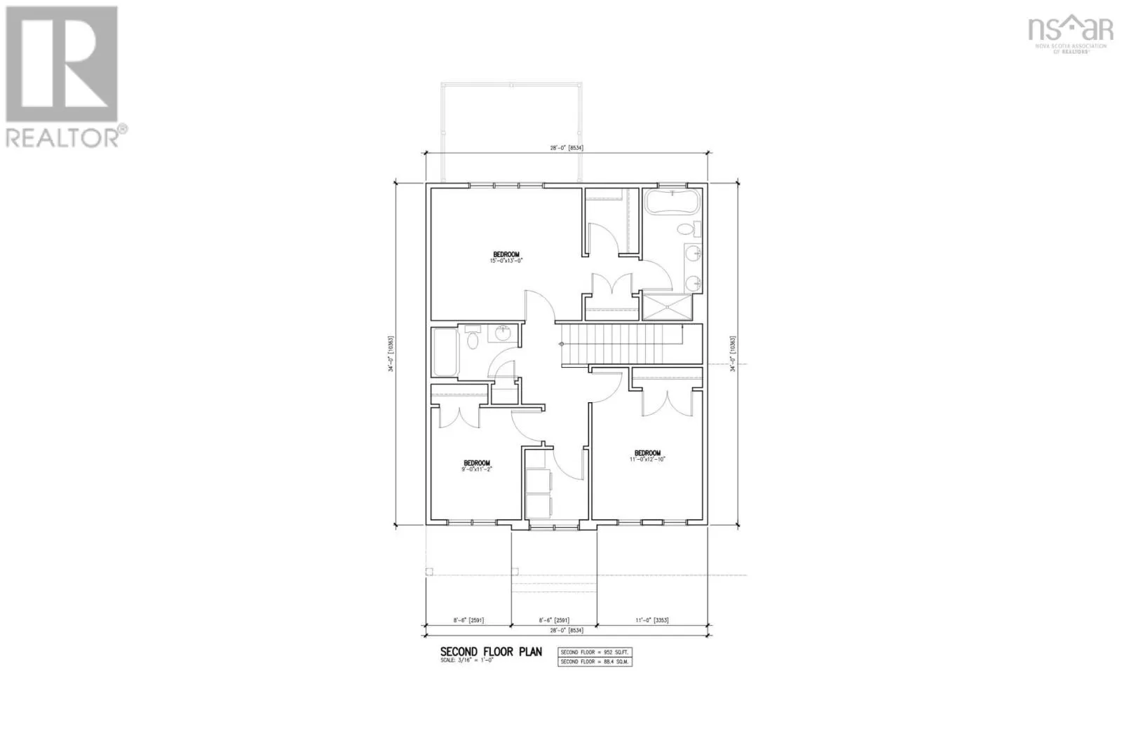
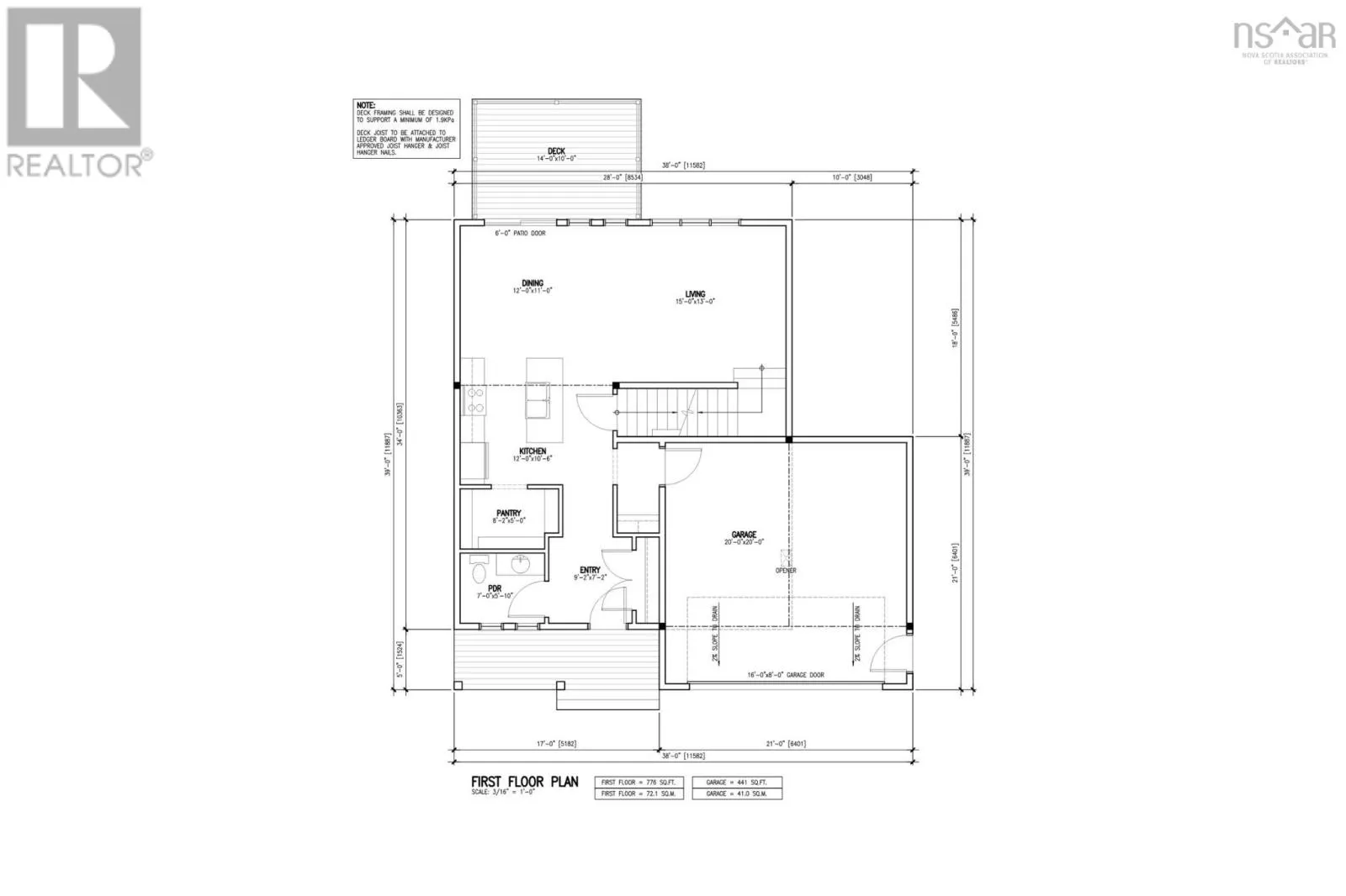
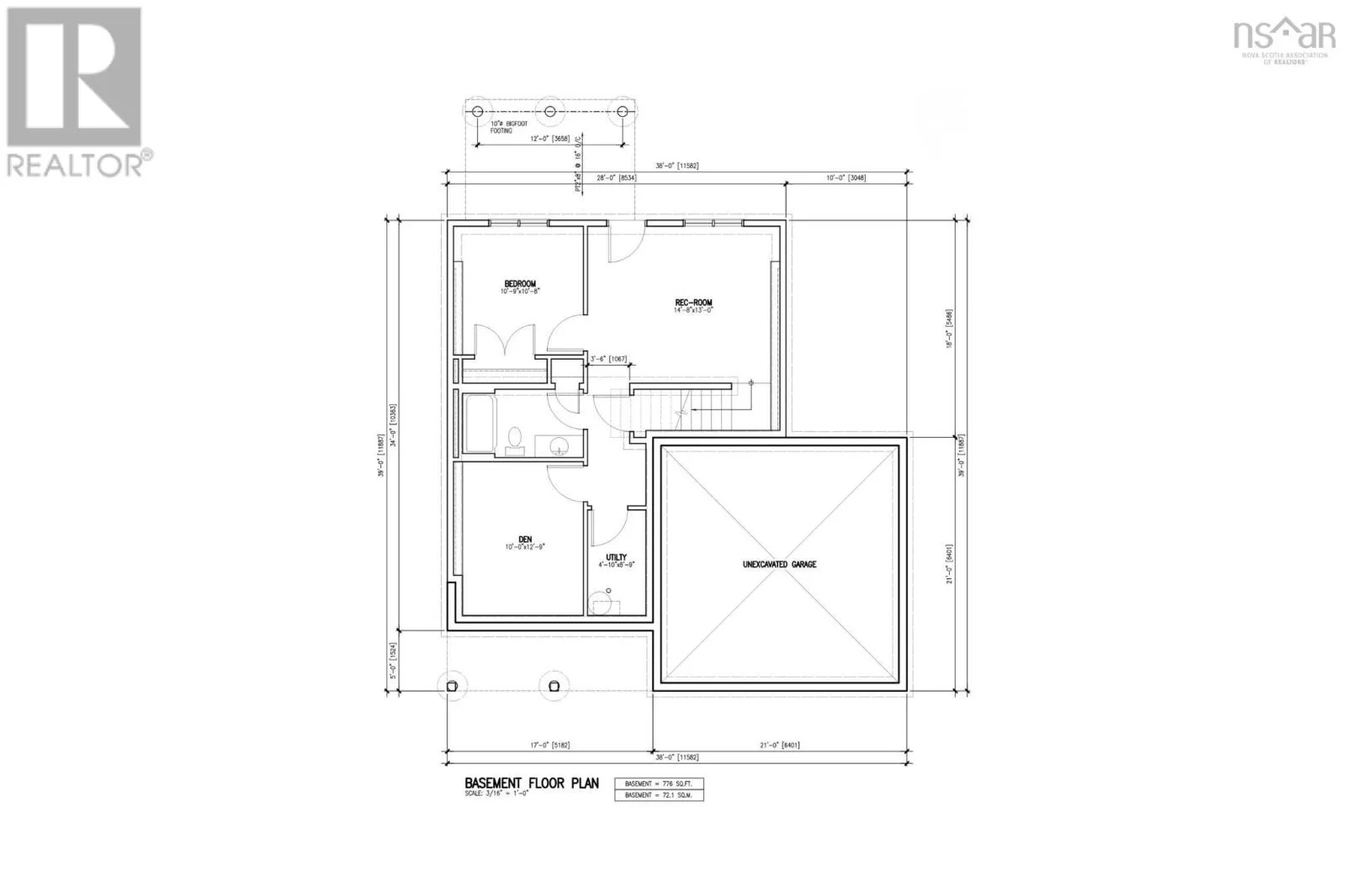
Margeson Drive to Midnight Run to Gaspereau Run to Bondi Drive Join us every Saturday and Sunday from 2-4 pm at our Model Home at 451 Zaffre Drive to view our beautiful selections and to discuss a potential new build for you. You've been asking for it, and here it is! Amara Developments is proud to introduce "The Ponderosa" - a spacious 3+1 bedroom, 3.5 bathroom 2-STORY HOME to its repertoire of exceptional new construction homes in majestic Indigo Shores, Middle Sackville. This exciting and modern design offers a perfect blend of contemporary style and function in an exciting new phase of the community. With a bright and airy layout and over 2,500 square feet of finished living space, this home is designed for those seeking open-concept, three-level living and a thoughtful floor plan for a growing family. Step inside and experience contemporary living, featuring clean lines, abundant natural light, and luxurious fixtures characteristic of the Builder. The main level features a large living room and dedicated dining space that flow seamlessly into the chefs kitchen with its abundance of full-height cabinetry, sit-up island, and full walk-in pantryideal for both everyday living and entertaining. A kindly tucked away powder room and 20x20 attached double garage complete this compelling floor. The upper level hosts a glorious primary bedroom with TWO large closets and a spa-like 5PC ensuite that will be the delight of its parents. Two more large bedrooms, an additional full bath, and a dedicated laundry room complete this level. Downstairs, won't feel so "down" with its robust recreation room for the kiddos, 4th bedroom, full bath, and ...what's this?! A bonus den/games or storage room that can serve a multitude of purposes. The oversized garage provides enough space for parking, tools, seasonal gear, or recreational equipment. (id:27476)

Property Highlights

MLS® Number
202606040
Type
Single Family
Community Name
Middle Sackville
Ownership Type
Freehold
Land Size
1.8994 ac

Building

Building Type
House
Storeys
2.00
Square Footage
2504 sqft
Bathrooms Total
4
Bedrooms Above Ground
3
Bedrooms Total
4
Exterior Finish
Aluminum siding, Steel, Stone, Vinyl
Fireplace Present
No
Basement Type
Full (Finished)
Basement Features
Building Heating Type
Heating Fuel
Building Cooling Type
Heat Pump

Utilities

Water
Drilled Well
Utility Sewer
Septic System

Room Layout

Bedroom
Second level
11. x 12.10
Bedroom
Second level
9. x 11.2
Primary Bedroom
Second level
15. x 13
Ensuite (# pieces 2-6)
Second level
N/A
Bath (# pieces 1-6)
Second level
N/A
Recreational, Games room
Lower level
14.8 x 13
Bath (# pieces 1-6)
Lower level
N/A
Bedroom
Lower level
10.9 x 10.8
Den
Lower level
10. x 12.9
Utility room
Lower level
4.10 x 8.9
Foyer
Main level
9.2 x 7.2
Bath (# pieces 1-6)
Main level
7. x 5.10
Kitchen
Main level
12. x 10.6
Other
Main level
Pantry- 8.2 x 5
Dining room
Main level
12. x 11
Living room
Main level
15. x 13

Location

Learn more about this property
Listing provided by:
Royal LePage Atlantic
MLS® number:
202606040
Agent:
Scott Moulton
*Indicates required field
Name is required
Email is required
Please enter a valid phone number (e.g., 416-111-1111).

Street Spotlight - For sale