18 James Boyle Drive, Mount Uniacke, Nova Scotia B0N 1Z0

Listed for:
$1,875,000
0 beds
0 baths
Listed 36 days ago
18 James Boyle Drive, Mount Uniacke, Nova Scotia B0N 1Z0

View all 10 photos

Learn more about this property
Listing provided by:
Keller Williams Select Realty (Branch)
MLS® number:
202502364
Agent:
Paul Pettipas
*Indicates required field
Name is required
Email is required
Please enter a valid phone number (e.g., 416-111-1111).

About

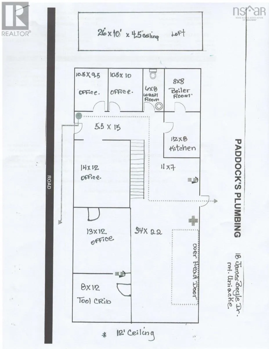
Take the Mount UniackeExit off highway 101, at the Irving station make a left turn and follow Route 1 to Business Park Property is located at the entrance to Mount Uniacke Business Park and consists of 6 buildings totalling 4224 sq/ft. Main building is 2016 sq/ft and includes office space, storage and work area with a 10x12 overhead door. The other 5 buildings are unheated storage areas. Large 2.6 acre lot allows room for expansion and BP Business Park Zone allows for a wide variety of permitted uses including office, retail, and light industrial. (id:27476)

Property Highlights

MLS® Number
202502364
Type
Industrial
Community Name
Mount Uniacke
Ownership Type
Freehold
Land Size
2.5995 ac

Building

Amenities
Air Conditioning Highway, Shopping
Fireplace Present
No
Basement Type
Basement Features
Building Heating Type
Heating Fuel
Building Cooling Type

Utilities

Water
Drilled Well

Location