323 Frederick Street, New Glasgow, Nova Scotia B2H 3N9

Listed for:
$1,233,333
0 beds
0 baths
Listed 141 days ago
323 Frederick Street, New Glasgow, Nova Scotia B2H 3N9

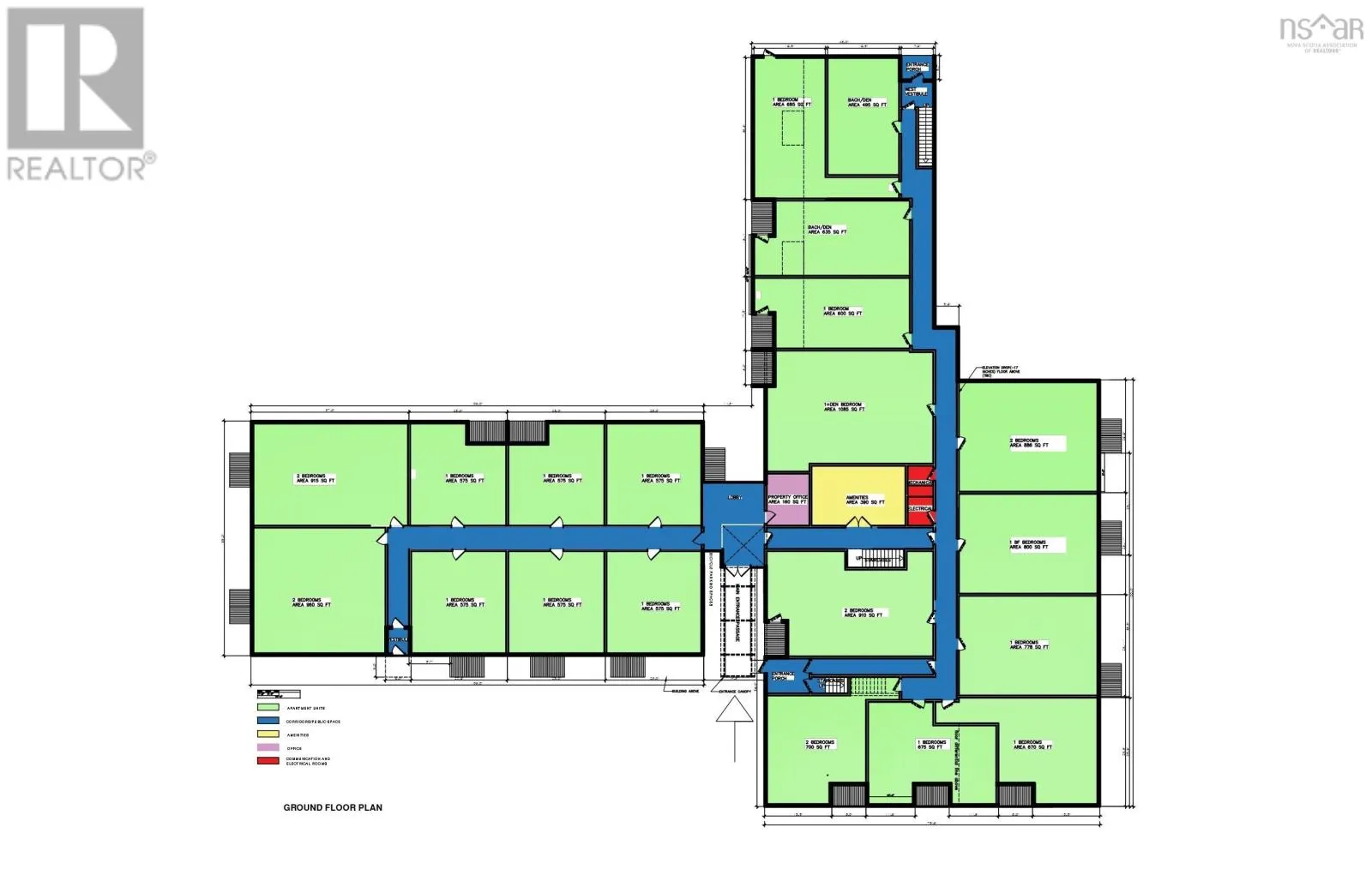
View all 17 photos

About

From Marsh St, Turn onto Frederick St. Property on the right An application for Development Agreement(DA) for a 3140 unit project has already received verbal approval in the town of New Glasgowan area currently in need of both affordable and market-rate housing. This property could be the perfect opportunity youve been waiting for!Whether you're looking for move-in-ready office space, potential residential units, or secure dry storage, this versatile property has endless possibilities. The existing building, while requiring some updates, offers ample parking, off-road access, loading dock doors, and dual street frontage on both Frederick and Washington Streetsensuring maximum convenience. Currently, the interior includes a few offices and a meeting room, while the warehouse section is easily accessible and well-suited for storage or rental use. To simplify the purchasing process, the property comes with an Application Package that will be formally approved before the buyer's final transaction.Dont miss this exceptional investment opportunityperfect for a multi-unit development with strong potential for government-backed financing assistance! (id:27476)

Property Highlights

MLS® Number
202520299
Type
Industrial
Community Name
New Glasgow
Ownership Type
Freehold
Land Size
0.7323 ac

Building

Fireplace Present
No
Basement Type
Basement Features
Building Heating Type
Heating Fuel
Building Cooling Type

Utilities

Water
Municipal water

Location

Learn more about this property
Listing provided by:
House Maestro Realty Inc.
MLS® number:
202520299
Agent:
Arun Nag Anupindi
*Indicates required field
Name is required
Email is required
Please enter a valid phone number (e.g., 416-111-1111).