32 River Avenue, Oxford, Nova Scotia B0M 1P0

Listed for:
$299,000
4 beds
2 baths
Listed 15 days ago
House for rent: 32 River Avenue, Oxford, Nova Scotia B0M 1P0

View all 42 photos

About

Main Street to Duke Street to Waverley Street to River Avenue to civic 32 Welcome to 32 River Avenue...Step into your own slice of blueberry countrywhere charm, space, and opportunity come together in one irresistible package. This inviting 4-bedroom, 1.5-bath country home offers room for the whole family, with bright and spacious living, dining, and kitchen areas that are designed for both comfort and connection. Upstairs, you will find four bedrooms, the main bath and a fully developed attic creating a versatile bonus spaceperfect as an artisans studio, cozy retreat, or the ultimate hobby haven. The back porch doubles as a garden prep room and practical cold storage area, adding even more flexibility to this already functional home. Peace of mind comes easy here, with major updates already taken care of: a well-maintained roof (2023), durable vinyl siding, and energy-efficient PVC windows. Stay cool in the summer with a newer mini split and enjoy reliable warmth all winter long thanks to a new, efficient propane furnace. Outside, youll find a fully insulated and wired detached garageideal for parking, projects, or your dream workshop. Apple trees, raspberry bushes and high bush blueberries dot the landscaped yard. Tucked away on a quiet dead-end street, this property offers tranquility and easy access to River Philip, perfect for peaceful walks, kayaking and canoeing, or a day of fishing. Add your personal touches and this home is made for family memories. And the real bonus? This property includes three parcels of land, featuring an additional building lotopening the door to future development or investment potential. Oxford's exciting new community center opens in 2026. Just 20 mins to Amherst and 45 mins to Truro. Move in ready and motivated seller. Call your realtor and book your viewing today. (id:27476)

Property Highlights

MLS® Number
202606259
Type
Single Family
Community Name
Oxford
Ownership Type
Freehold
Land Size
0.3657 ac

Building

Building Type
House
Storeys
2.50
Square Footage
1869 sqft
Bathrooms Total
2
Bedrooms Above Ground
4
Bedrooms Total
4
Amenities
Golf Course, Park, Playground, Shopping, Place of Worship
Exterior Finish
Vinyl
Fireplace Present
No
Basement Type
Full (Unfinished)
Basement Features
Building Heating Type
Heating Fuel
Building Cooling Type
Wall unit, Heat Pump

Utilities

Water
Municipal water
Utility Sewer
Municipal sewage system

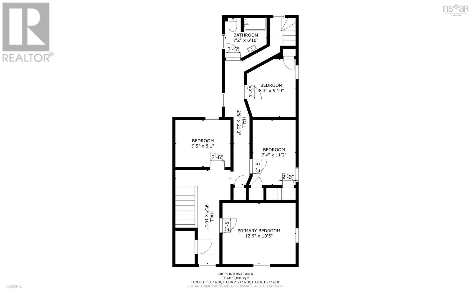
Room Layout

Bath (# pieces 1-6)
Second level
7.7 x 7
Primary Bedroom
Second level
12.7 x 12
Bedroom
Second level
9.4x7.6
Bedroom
Second level
10.5x8.4
Bedroom
Second level
9.5x9.7
Other
Second level
9.5x11.5 Landing
Other
Third level
14x25Attic
Foyer
Main level
12.0x8
Eat in kitchen
Main level
16.6x12.4+J
Dining room
Main level
12.10x8
Living room
Main level
12x12.10
Den
Main level
12.8x9.8+J
Other
Main level
9.5x4Pantry
Bath (# pieces 1-6)
Main level
7.7x3.9
Porch
Main level
16x9+J

Location

Learn more about this property
Listing provided by:
RE/MAX Nova
MLS® number:
202606259
Agent:
Karen Sheffer
*Indicates required field
Name is required
Email is required
Please enter a valid phone number (e.g., 416-111-1111).