8499 3 Highway, Port Mouton, Nova Scotia B0T 1T0

Listed for:
$499,000
5 beds
2 baths
Listed 84 days ago
House for rent: 8499 3 Highway, Port Mouton, Nova Scotia B0T 1T0

View all 50 photos

Learn more about this property
Listing provided by:
Engel & Volkers (Lunenburg)
MLS® number:
202521456
Agent:
Michael Wilson
*Indicates required field
Name is required
Email is required
Please enter a valid phone number (e.g., 416-111-1111).

About

Exit 21 left from Highway 103 and right onto the old Number 3 Highway into the village. Property on the water side before the turn off for Carter's Beach. Large Victorian or Edwardian houses built directly on the ocean in Nova Scotia are "few and far between". The Isaiah Leslie house, constructed in 1902, is a time capsule for a by-gone era, located in the quiet, seaside village of Port Mouton and known as the most beautiful house ever built in the village. "Sheep overboard!" was the cry when Champlain moored off the coast in 1604, legend has it, as a frenzied creature, so overwhelmed at the sight of land after its long journey, leapt and swam to shore. Isaiah was descended from United Empire Loyalists and was likely the most successful merchant in the village to have built such an impressive, full two and half story, five bedroom home with its gingerbread and fine wrap-around verandah. The house sits on an original stone foundation overlooking the ocean on a quiet, secondary road which winds its way along the coast just 15 minutes drive from the heritage town of Liverpool. The main floor features a welcoming large front entry and large double parlour to greet guests. A generous sized formal dining room is at the rear of the hall with a main floor, senior bedroom tucked away to the side. Continuing through the dining room one enters what was once a large kitchen with pantries at the rear. There is a spacious side entry from the front verandah and at the rear of the house is a family room with a view of the ocean. The second floor features a broad hall at the top of the stairs which lends access to three bedrooms and in addition, a long hall leads to the former servant's quarters, family bath and staircase an undeveloped, immense attic. The property also features one of the best preserved barns in the county. The house has remarkably well preserved, lighter toned woodwork with most of the interior architectural detail in tact. This home's landscape gently slopes to over 100 feet fronting on a bay. Located a short walk to a convenience store, close to Carter's Beach, Summerville Beach and White Point Resort. (id:27476)

Property Highlights

MLS® Number
202521456
Type
Single Family
Community Name
Port Mouton
Ownership Type
Freehold
Land Size
0.5969 ac

Building

Building Type
House
Storeys
2.50
Square Footage
2692 sqft
Bathrooms Total
2
Bedrooms Above Ground
5
Bedrooms Total
5
Amenities
Shopping
Exterior Finish
Wood shingles
Fireplace Present
No
Basement Type
Full (Unfinished)
Basement Features
Building Heating Type
Heating Fuel
Building Cooling Type

Utilities

Water
Dug Well, Well
Utility Sewer
Septic System

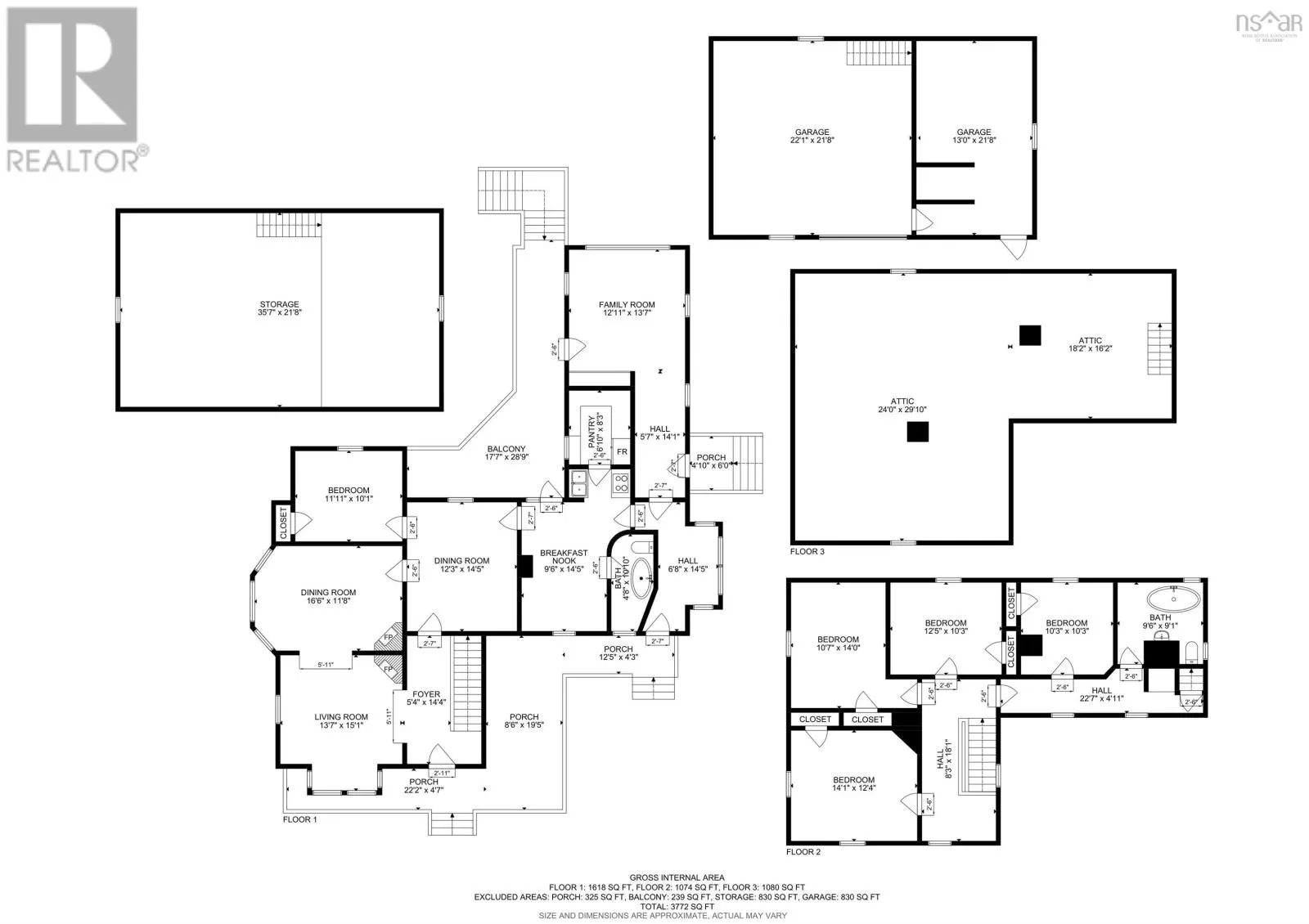
Room Layout

Foyer
Second level
8.3x18.1
Bedroom
Second level
14.1x12.4
Bedroom
Second level
10.7x14
Bedroom
Second level
12.5x10.3
Foyer
Second level
4.11x22.7
Bedroom
Second level
10.3x10.3
Bath (# pieces 1-6)
Second level
9.6x9.1
Other
Third level
24x29.10+18.2x16.2 attic
Foyer
Main level
5.4x14.4
Living room
Main level
13.7x15.1
Living room
Main level
16.6x11.8
Dining room
Main level
12.3x14.5
Bedroom
Main level
11.11x10.1
Dining room
Main level
9.6x14.5
Kitchen
Main level
6.10x8.3
Bath (# pieces 1-6)
Main level
4.8x10.10
Foyer
Main level
6.8x14.5
Foyer
Main level
5.7x14.1
Family room
Main level
12.11x13.7

Location