107 Westchester Road, Sutherland Lake, Nova Scotia B0M 1G0

Listed for:
$274,900
2 beds
2 baths
Listed 194 days ago
House for rent: 107 Westchester Road, Sutherland Lake, Nova Scotia B0M 1G0

View all 33 photos

About

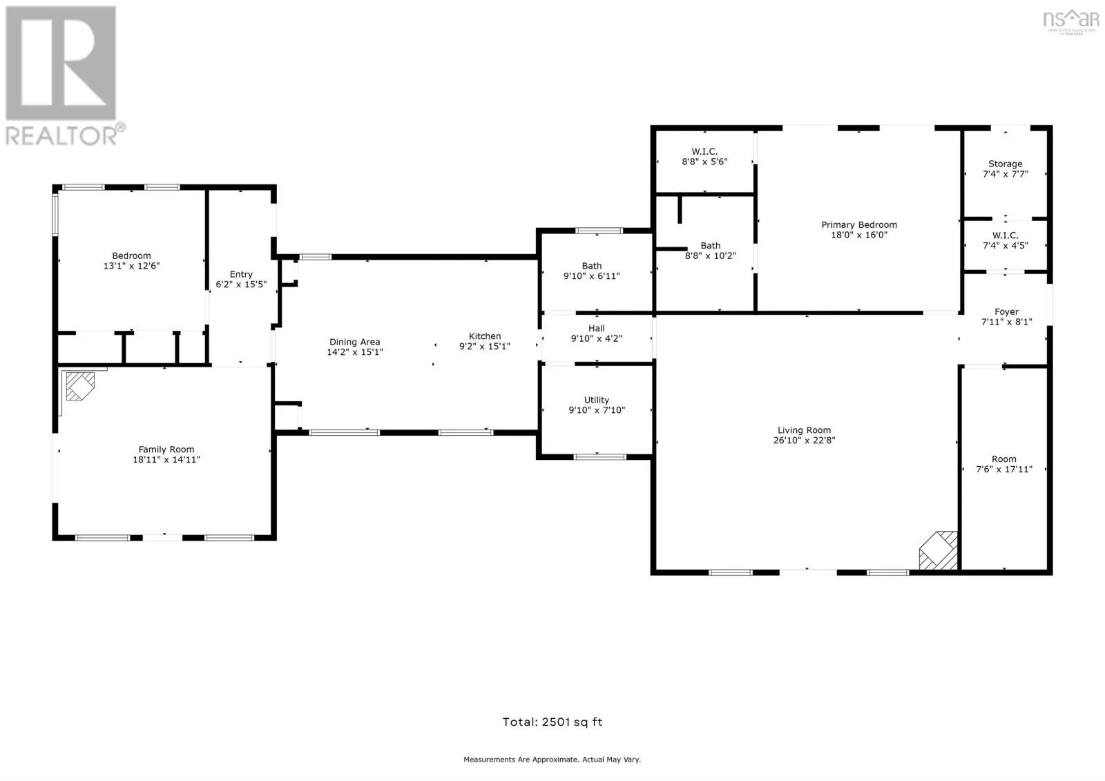
From Truro - Take Highway 104 to Exit # 10. Turn right after 400 yards and take first left to Londonderry. Travel 6.2 km and you will go down a hill with a ball field on the left and a white church on the right. Road sign Sutherlands Lake. Turn right and travel another 8.7 kms to civic 107. Wonderful opportunity to own a home / cottage in the Sutherland Lake area. The home offers 2 large bedrooms & 2 full bathrooms and is complete with a spacious kitchen & two rec rooms. The dwelling overlooks Sutherland Lake and is approximately 90 feet long by 40 feet wide measuring about 2500 sqft of living space. The home has been added on over the years utilizing various types of construction materials & methods. The property has 150 feet of road frontage x 340 feet deep that totals 1.1 acres. The property is serviced by a drilled well and onsite septic system. The home has 3 large outbuildings, some with power for sled or four wheeler storage options. Zoning allows for a secondary suite and with the large lot there is plenty of room for everyone. Don't let this opportunity pass you by as this area is located in a prime location well known for snowmobiling and four wheeling. (id:27476)

Property Highlights

MLS® Number
202523432
Type
Single Family
Community Name
Sutherland Lake
Ownership Type
Freehold
Land Size
1.0956 ac

Building

Building Type
House
Storeys
1.00
Square Footage
2501 sqft
Bathrooms Total
2
Bedrooms Above Ground
2
Bedrooms Total
2
Amenities
Park, Beach
Exterior Finish
Wood siding
Fireplace Present
No
Basement Type
Crawl space
Basement Features
Building Heating Type
Heating Fuel
Building Cooling Type
Wall unit, Heat Pump

Utilities

Water
Drilled Well
Utility Sewer
Septic System

Room Layout

Foyer
Main level
7.11x8.1
Den
Main level
7.6x17.11
Living room
Main level
26.10x22.8
Primary Bedroom
Main level
18.0x16.0
Ensuite (# pieces 2-6)
Main level
8.8x10.2
Utility room
Main level
9.10x7.10
Bath (# pieces 1-6)
Main level
9.10x6.11
Kitchen
Main level
9.2x15.1
Dining room
Main level
14.2x15.1
Family room
Main level
18.11x14.11
Bedroom
Main level
13.1x12.6
Foyer
Main level
6.2x15.5

Location

Learn more about this property
Listing provided by:
Exit Realty Metro
MLS® number:
202523432
Agent:
Jeremy Cowan
*Indicates required field
Name is required
Email is required
Please enter a valid phone number (e.g., 416-111-1111).