155 Rocky Ridge Road, Truro Heights, Nova Scotia B6L 1S6

Listed for:
$599,900
0 beds
0 baths
Listed 58 days ago
Duplex for rent: 155 Rocky Ridge Road, Truro Heights, Nova Scotia B6L 1S6

View all 5 photos

Learn more about this property
Listing provided by:
RE/MAX Nova (Halifax)
MLS® number:
202512267
Agent:
Mary Rabahi
*Indicates required field
Name is required
Email is required
Please enter a valid phone number (e.g., 416-111-1111).

About

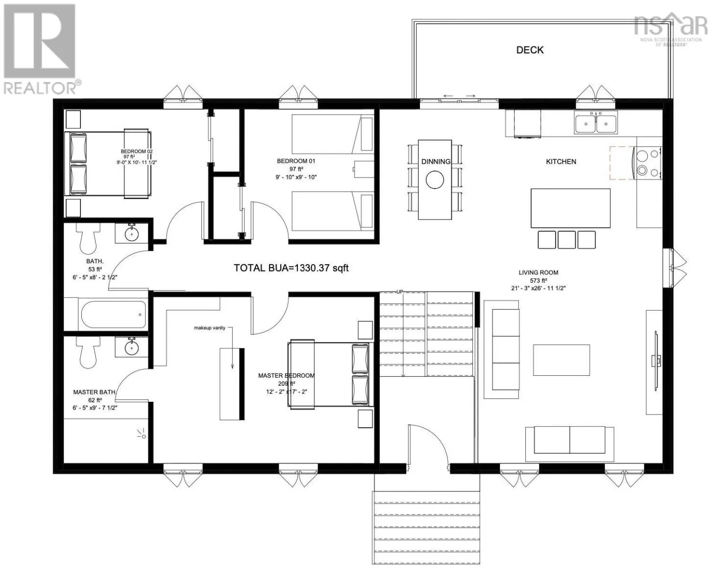
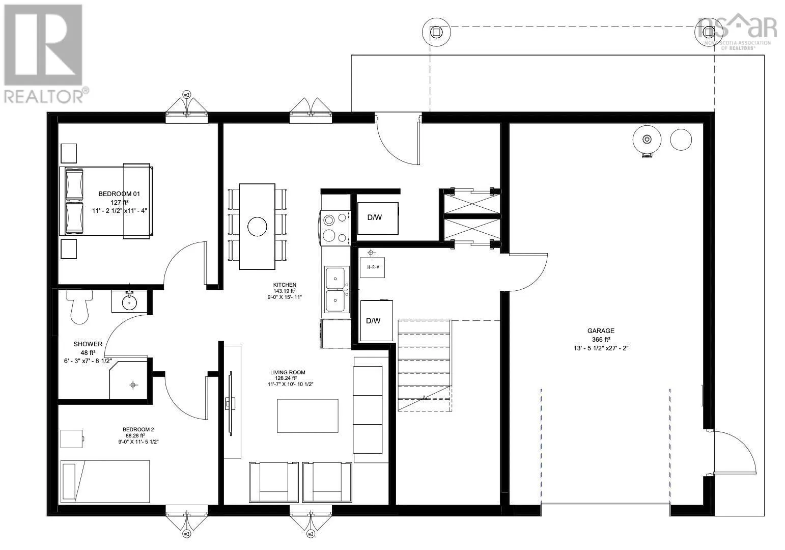
From Truro Heights Road, to Morley Ave, to Urduhart Drive, to Rocky Ridge Road, civic 155 on left hand side INVESTMENT OPPORTUNITY with a minimum possible rental income of $4500/month! This stunning new construction legal duplex is just minutes away from everything Truro has to offer. Start or add to your investment portfolio this low maintenance, well built, 5 bedroom, 3 bathroom duplex. The main level features premium steel framing for superior durability and peace of mind. The lower level featuring two bedrooms and one bathroom perfect for generating income or accommodating extended family. Additional highlights include 9 foot ceilings, a concrete walkway, exquisite kitchen design, two electrical panels, two hot water tanks, two HRV systems and many more! Bonus: the lower level has just been issued its own civic as 157 Rocky Ridge Road. Book your private showing today! (id:27476)

Property Highlights

MLS® Number
202512267
Type
Multi-family
Community Name
Truro Heights
Ownership Type
Freehold
Land Size
0.379 ac

Building

Building Type
Duplex
Amenities
Park, Shopping
Exterior Finish
Vinyl
Fireplace Present
No
Basement Type
Basement Features
Building Heating Type
Heating Fuel
Building Cooling Type
Heat Pump

Utilities

Water
Ground-level well
Utility Sewer
Municipal sewage system

Location