2943 Nova Scotia 311, Upper North River, Nova Scotia B6L 6J8

Listed for:
$349,900
2 beds
2 baths
Listed 4 days ago
Mobile Home for rent: 2943 Nova Scotia 311, Upper North River, Nova Scotia B6L 6J8

View all 27 photos

Learn more about this property
Listing provided by:
Keller Williams Select Realty
MLS® number:
202527284
Agent:
Grant Sprague
*Indicates required field
Name is required
Email is required
Please enter a valid phone number (e.g., 416-111-1111).

About

From Main Street, Bible hill, highway 311 north 15 minutes house on left Welcome Home! 2943 Highway 311 is a charming home full of character, nestled on just under 3 acres of beautiful land. The property features a stunning garden and an array of in-season trees and bushes strawberries, raspberries, apples, and blueberries await you! Step inside to find a warm, welcoming atmosphere and that perfect home-sweet-home feel. Large windows fill each room with natural light, while the spacious, thoughtfully designed kitchen might just inspire your inner chef. Unwind on the back deck and soak in the peaceful, picturesque surroundings. Come see it for yourself youll fall in love! (id:27476)

Property Highlights

MLS® Number
202527284
Type
Single Family
Community Name
Upper North River
Ownership Type
Freehold
Land Size
2.98 ac

Building

Building Type
Mobile Home
Storeys
1.00
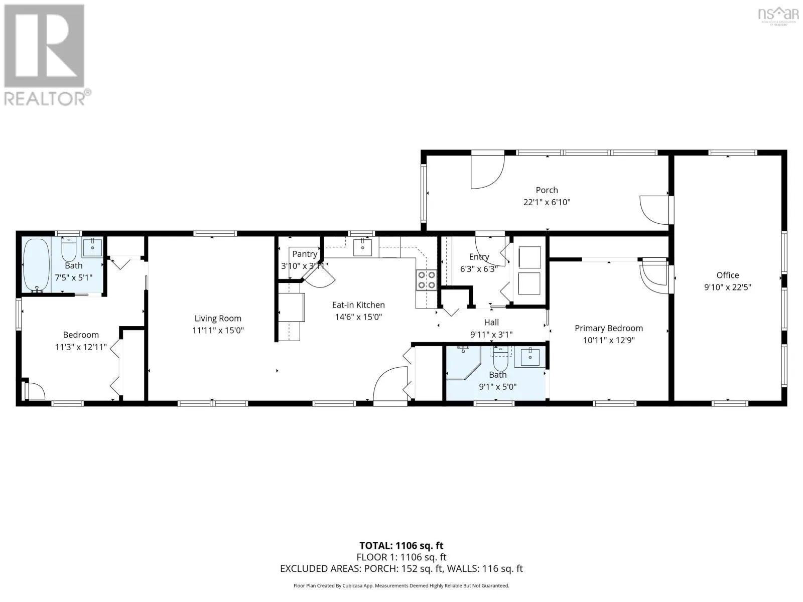
Square Footage
1106 sqft
Bathrooms Total
2
Bedrooms Above Ground
2
Bedrooms Total
2
Exterior Finish
Vinyl
Fireplace Present
No
Basement Type
None
Basement Features
Building Heating Type
Heating Fuel
Building Cooling Type
Heat Pump

Utilities

Water
Drilled Well
Utility Sewer
Septic System

Room Layout

Porch
Main level
22.1 x 6.10
Foyer
Main level
6.3 x 6.3
Kitchen
Main level
14.6 x 15.0
Living room
Main level
11.11 x 15.0
Bedroom
Main level
11.3 x 12.11
Bath (# pieces 1-6)
Main level
7.5 x 5.1
Primary Bedroom
Main level
10.11 x 12.9
Workshop
Main level
9.10 x 22.5
Bath (# pieces 1-6)
Main level
9.1 x 5.0

Location

Community Spotlight: Homes For sale in Your Neighborhood