6 Shadebush Walk, Upper Sackville, Nova Scotia B4E 0X8

Listed for:
$539,900
2 beds
2 baths
Listed 186 days ago
House for rent: 6 Shadebush Walk, Upper Sackville, Nova Scotia B4E 0X8

View all 7 photos

About

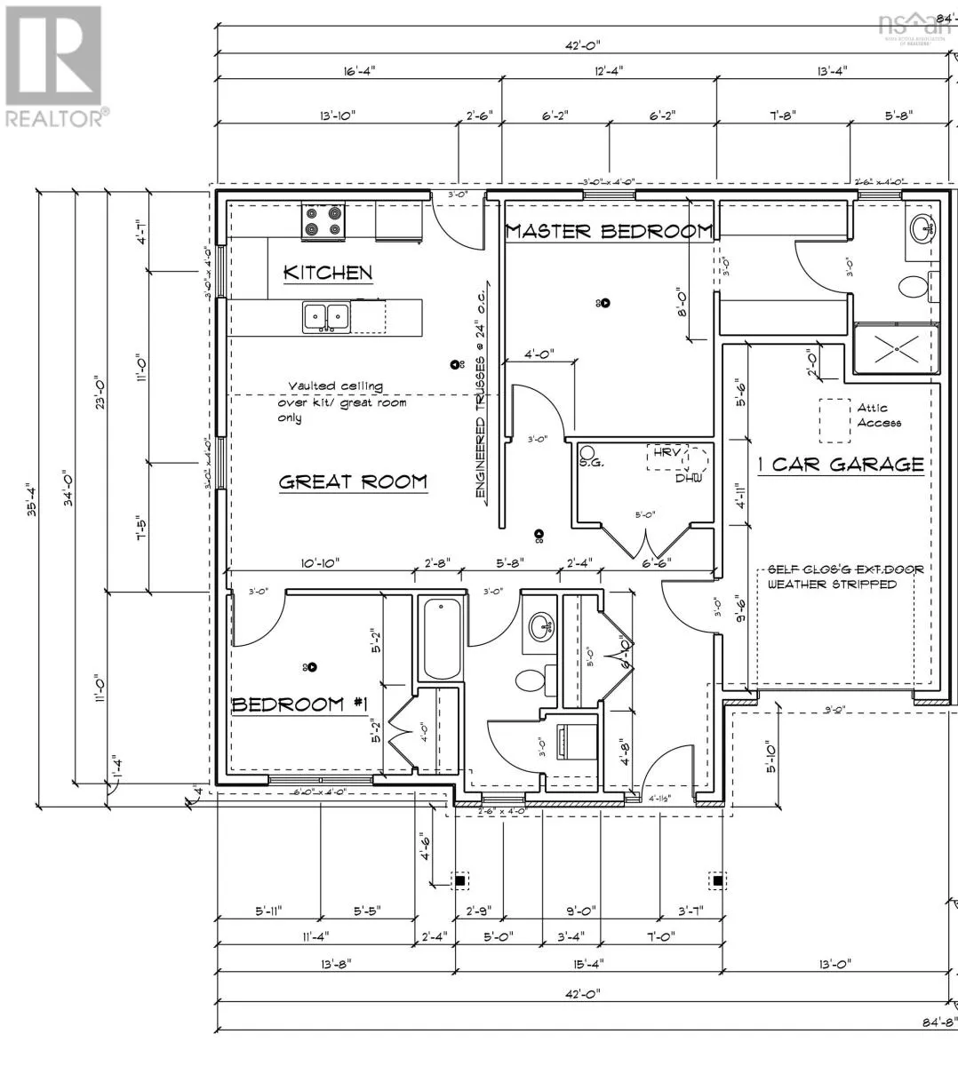
Sackville Drive to Buttercup Grove to Wineberry Way, right onto Shadebush Walk Welcome to Meadow Ridge Estates modern bungalow living at its finest!Just 20 minutes from downtown Halifax and 15 minutes from the airport, this thoughtfully designed homeoffers both convenience and comfort close to all essential amenities. Step inside to find a bright, openconcept main living area with vaulted ceilings and a spacious kitchen featuring abundant cabinetry. Theprimary suite includes a generous walk-through closet leading to a private ensuite with a 5 foot shower.A second full bathroom, guest bedroom, main floor laundry, and a large entryway add to the homespracticality. Enjoy outdoor living with a stamped concrete front porch and rear deck, perfect forrelaxing or entertaining. Additional highlights include a single-car garage and an energy-efficientductless heat pump. This home comes complete with HST included in the price and peace of mind provided byan 8-Year LUX Home Warranty. (id:27476)

Property Highlights

MLS® Number
202521201
Type
Single Family
Community Name
Upper Sackville
Maintenance Fee
100.00
Ownership Type
Condominium/Strata
Land Size
0.8108 ac

Building

Building Type
House
Storeys
1.00
Square Footage
1118 sqft
Bathrooms Total
2
Bedrooms Above Ground
2
Bedrooms Total
2
Amenities
Park, Shopping
Exterior Finish
Stone, Vinyl
Fireplace Present
No
Basement Type
None
Basement Features
Building Heating Type
Heating Fuel
Building Cooling Type
Heat Pump

Utilities

Water
Community Water System, Dug Well, Shared Well
Utility Sewer
Unknown

Room Layout

Kitchen
Main level
15.5x8
Great room
Main level
15.5x15
Primary Bedroom
Main level
12.4x13.2
Bedroom
Main level
10.10x11
Laundry room
Main level
4x3.4
Utility room
Main level
4.11x7
Foyer
Main level
6.6x10.9
Other
Main level
garage 13x20-jog

Location

Learn more about this property
Listing provided by:
Keller Williams Select Realty
MLS® number:
202521201
Agent:
Kurt Repchull
*Indicates required field
Name is required
Email is required
Please enter a valid phone number (e.g., 416-111-1111).