Sp03a 135 Stephs Street, West Bedford, Nova Scotia B4B 0L1

Listed for:
$744,900
3 beds
4 baths
Listed 17 days ago
Row / Townhouse for rent: Sp03a 135 Stephs Street, West Bedford, Nova Scotia B4B 0L1

View all 7 photos

About

Larry Uteck Blvd to Stephs St Discover The Bellhaven, a 3-bed, 3.5-bath corner unit townhome by Shaughnessy Homes in the desirable Belle Rose Park in West Bedford. Spanning 2,243 sq. ft. across three finished levels, this home blends modern comfort with stylish design. The main floor features a home office, a sleek kitchen with premium finishes, and an open-concept living and dining area perfect for entertaining. Upstairs, three spacious bedrooms include a luxurious primary suite. Engineered hardwood graces the main and second levels, while the walk-out basement offers a wet bar, and a bright bonus space for guests or recreation. Stay comfortable with ducted heating/cooling with a natural gas backup, plus rough-ins for a gas range, dryer, BBQ, water heater, and a 50 AMP EV charger. Nestled off Larry Uteck Blvd, Belle Rose Park offers easy access to schools, shops, and parks in a quiet, master-planned community. Built with Shaughnessy Homes signature quality, The Bellhaven is a rare opportunity to own in one of Halifaxs most sought-after neighborhoods. (id:27476)

Property Highlights

MLS® Number
202519895
Type
Single Family
Community Name
West Bedford
Ownership Type
Freehold
Land Size
0.5497 ac

Building

Building Type
Row / Townhouse
Storeys
3.00
Square Footage
2243 sqft
Bathrooms Total
4
Bedrooms Above Ground
3
Bedrooms Total
3
Exterior Finish
Vinyl, Other
Fireplace Present
No
Basement Type
Basement Features
Building Heating Type
Heating Fuel
Building Cooling Type
Heat Pump

Utilities

Water
Municipal water
Utility Sewer
Municipal sewage system

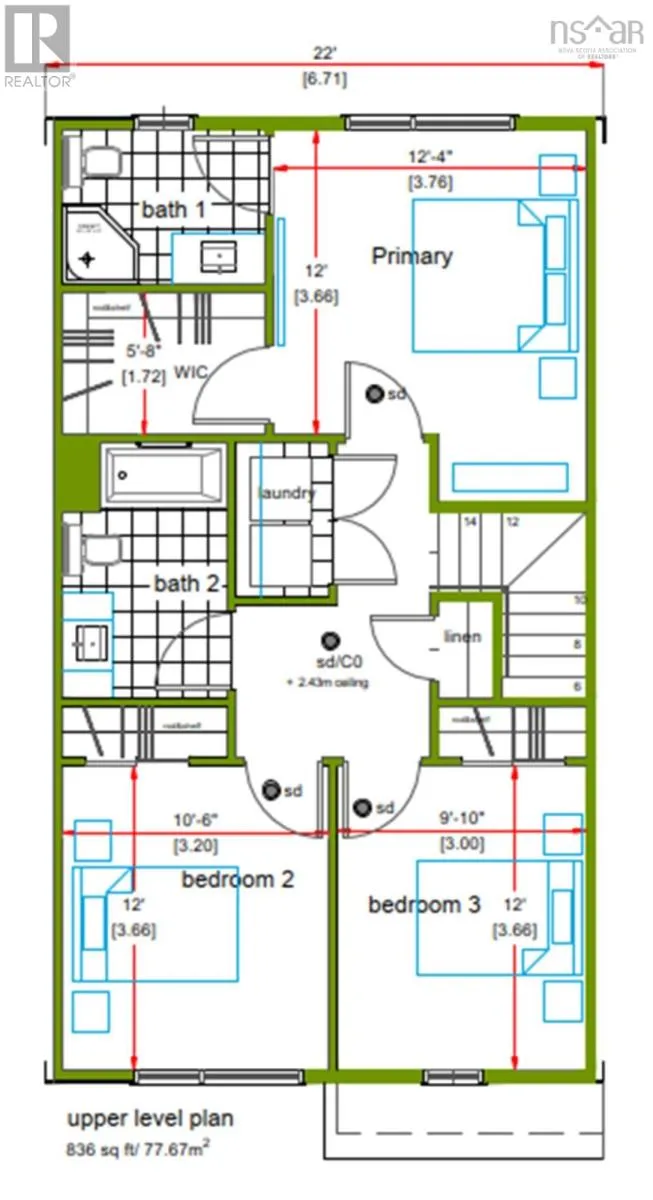
Room Layout

Living room
Second level
20.8 x 14.6
Kitchen
Second level
11.4 x 10.4
Dining room
Second level
10.4 x 11
Bath (# pieces 1-6)
Second level
2 Piece
Den
Second level
7.8 x 9.4
Primary Bedroom
Third level
12.4 x 12
Ensuite (# pieces 2-6)
Third level
3 Piece
Bedroom
Third level
9.1 x 12
Bedroom
Third level
10.6 x 12
Bath (# pieces 1-6)
Third level
4 Piece
Laundry room
Third level
2
Recreational, Games room
Lower level
14.6 x 10.6
Bath (# pieces 1-6)
Lower level
4 Piece

Location

Learn more about this property
Listing provided by:
Royal LePage Atlantic
MLS® number:
202519895
Agent:
Lorenzo Gallardo
*Indicates required field
Name is required
Email is required
Please enter a valid phone number (e.g., 416-111-1111).