Lot 2 Larry Seldon Lane, Western Head, Nova Scotia B0T 1K0

Listed for:
$70,000
0 beds
0 baths
Listed 99 days ago
Lot 2 Larry Seldon Lane, Western Head, Nova Scotia B0T 1K0

View all 5 photos

About

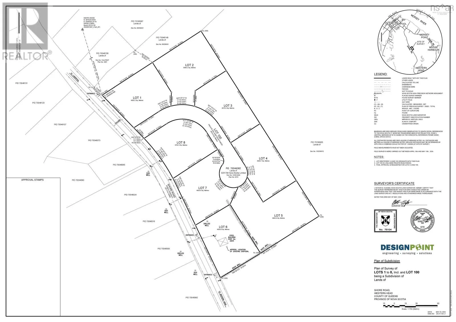
Take Shore Road past Queens hospital, go right at split and go to 2204 Shore Road. Introducing: Western Head Woods Sub-Division. Discover the perfect place to build your home only minutes from downtown Liverpool NS. Nestled in a peaceful private setting, these premium lots offer a unique opportunity to be part of a growing vibrant community with easy access to schools, beaches, dining experiences, and shopping nearby. These spacious level lots averaging approximately 1.2 acres with private road, offer space for lawns, gardens and custom home designs. Great investment opportunity since very few building lots of this quality available in Liverpool area for development. (id:27476)

Property Highlights

MLS® Number
202427657
Type
Vacant Land
Community Name
Western Head
Ownership Type
Freehold
Land Size
1.3804 ac

Building

Fireplace Present
No
Basement Type
Basement Features
Building Heating Type
Heating Fuel
Building Cooling Type

Utilities

Water
None
Utility Sewer
No sewage system

Location

Learn more about this property
Listing provided by:
RE/MAX Banner Real Estate (Bridgewater)
MLS® number:
202427657
Agent:
Laurence Cochrane
*Indicates required field
Name is required
Email is required
Please enter a valid phone number (e.g., 416-111-1111).

Community Spotlight: Homes For sale in Your Neighborhood