2455 2457 Old Sambro Road, Williamswood, Nova Scotia B3V 1C9

Listed for:
$1,199,900
6 beds
6 baths
Listed 67 days ago
Duplex for rent: 2455 2457 Old Sambro Road, Williamswood, Nova Scotia B3V 1C9

View all 48 photos

About

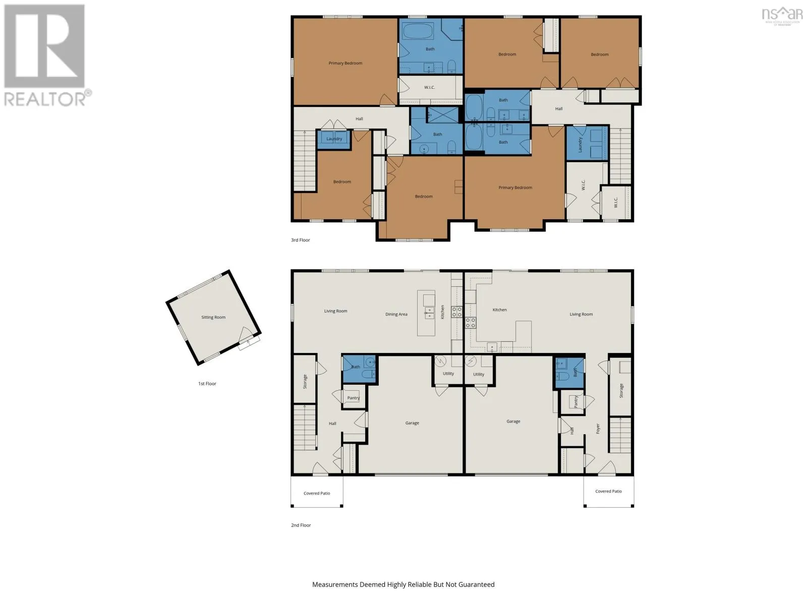
2455/ 2457 Old Sambro Road Built in 2022, this ICF-constructed duplex sits on 6.19 acres of land and offers exceptional privacy with its thoughtful setback from the road, all while backing onto crown land for a peaceful, natural setting. Each side features three large bedrooms, two and a half stylish bathrooms (including ensuites), large walk-in closets, 200-amp electrical panels, two mini-split heat pumps, a 1.5 car built-in garage and a metal roof. A separate retreat at the back of the property provides a flexible space ideal for a home office, gym, studio, or a quiet place to unwind. Whether youre looking for an investment property, a home where you can rent out one side, or a spacious family compound, this modern and efficient duplex offers versatility, comfort, and room to grow in a beautiful natural environment. In Williamswood, you are minutes to beaches, lakes, hiking trails, schools, parks, and amenities. (id:27476)

Property Highlights

MLS® Number
202604252
Type
Single Family
Community Name
Williamswood
Ownership Type
Freehold
Land Size
6.19 ac

Building

Building Type
Duplex
Storeys
2.00
Square Footage
3712 sqft
Bathrooms Total
6
Bedrooms Above Ground
6
Bedrooms Total
6
Amenities
Park, Playground, Beach
Exterior Finish
Wood shingles, Stone, Vinyl
Fireplace Present
No
Basement Type
None
Basement Features
Building Heating Type
Heating Fuel
Building Cooling Type
Heat Pump

Utilities

Water
Drilled Well
Utility Sewer
Septic System

Room Layout

Laundry room
Second level
5.05x2.11
Bedroom
Second level
12.01x9.02 + jog
Bedroom
Second level
12.05x13.08-jog
Bath (# pieces 1-6)
Second level
8.03x7.10
Primary Bedroom
Second level
17.08x14
Ensuite (# pieces 2-6)
Second level
8.07x10.03
Laundry / Bath
Second level
7.01x5.11
Bedroom
Second level
11.08x12.09
Bedroom
Second level
11.0815.02-jog
Bath (# pieces 1-6)
Second level
5.05x10.06
Primary Bedroom
Second level
12.02x16.08 +-jogs
Ensuite (# pieces 2-6)
Second level
10.07x5.05
Other
Second level
5.09x9.02
Kitchen
Main level
14.01x15.01
Living room
Main level
14.01x13.03
Bath (# pieces 1-6)
Main level
5.02x4.10
Kitchen
Main level
14.01x 15.01
Living room
Main level
14.01x13.01
Bath (# pieces 1-6)
Main level
5.01x5.02

Location

Learn more about this property
Listing provided by:
Engel & Volkers
MLS® number:
202604252
Agent:
Emma Metlej
*Indicates required field
Name is required
Email is required
Please enter a valid phone number (e.g., 416-111-1111).