Lot 5 Wine Harbour Village Road, Wine Harbour, Nova Scotia B0J 3C0

Listed for:
$564,576
3 beds
2 baths
Listed 356 days ago
House for rent: Lot 5 Wine Harbour Village Road, Wine Harbour, Nova Scotia B0J 3C0

View all 28 photos

About

Trunk 7 East to Sherbrooke, right on Sonora Road right, right on Frank Fleming Road, veer left at end, and follow the road to the end Imagine spending the summer months relaxing in your hammock overlooking the calming ocean sipping your coffee. This could be you after building your coastal getaway in Wine Harbour. This 6.18 acre lot is ready for development. The Nook, a turn-key brand new 3 bedroom 2 bathroom home sits perfectly on this lot. Need a garage? more space? No problem. This lot has several turn-key new build home options all for one mortgage payment. This price includes the land, lot development, drilled well, septic system, driveway, deck, heat pump, all electrical & plumbing, and more. Accessed from the public road, all 243 ft of oceanfrontage is ready to be enjoyed with your new cottage, home or park an RV. The area is quickly being recognized for its amazing views, friendly locals, and potential whale sanctuary project. Who knows, you may even just spot a fin or whale tail in the future in the bay nearby. For more potential homes, details and access instructions, reach out to a REALTOR® today. (id:27476)

Property Highlights

MLS® Number
202507438
Type
Single Family
Community Name
Wine Harbour
Ownership Type
Freehold
Land Size
6.1778 ac

Building

Building Type
House
Storeys
1.00
Square Footage
1248 sqft
Bathrooms Total
2
Bedrooms Above Ground
3
Bedrooms Total
3
Amenities
Place of Worship, Beach
Exterior Finish
Vinyl
Fireplace Present
No
Basement Type
Crawl space
Basement Features
Building Heating Type
Heating Fuel
Building Cooling Type
Heat Pump

Utilities

Water
Drilled Well
Utility Sewer
Septic System

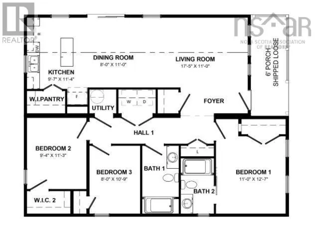
Room Layout

Kitchen
Main level
9.7X11.4
Dining room
Main level
8x11
Living room
Main level
175x11
Primary Bedroom
Main level
11x12.7
Bath (# pieces 1-6)
Main level
5.9 x 10.8
Bath (# pieces 1-6)
Main level
5.2 x 8.8
Bedroom
Main level
8x10.9
Bedroom
Main level
9.4x11.3

Location

Learn more about this property
Listing provided by:
Exit Real Estate Professionals
MLS® number:
202507438
Agent:
Vanessa Pareek
*Indicates required field
Name is required
Email is required
Please enter a valid phone number (e.g., 416-111-1111).