110 Gaspereau Avenue, Wolfville, Nova Scotia B4P 2E1

Listed for:
$106,000
0 beds
0 baths
Listed 63 days ago
110 Gaspereau Avenue, Wolfville, Nova Scotia B4P 2E1

View all 3 photos

Learn more about this property
Listing provided by:
Air Realty Limited
MLS® number:
202506974
Agent:
Joshua Svec
*Indicates required field
Name is required
Email is required
Please enter a valid phone number (e.g., 416-111-1111).

About

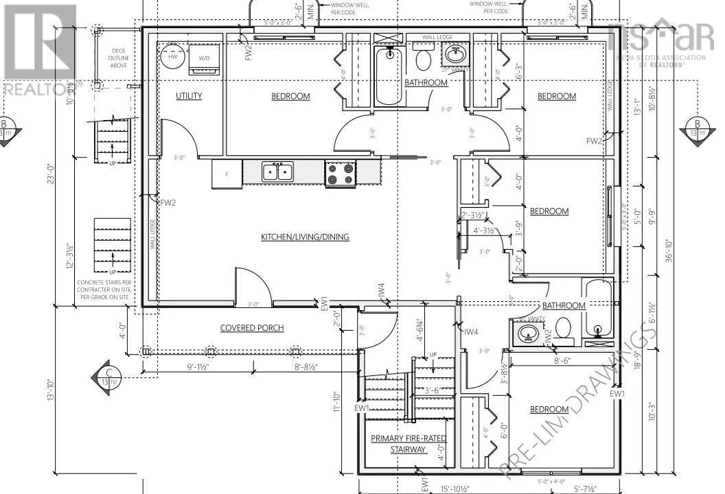
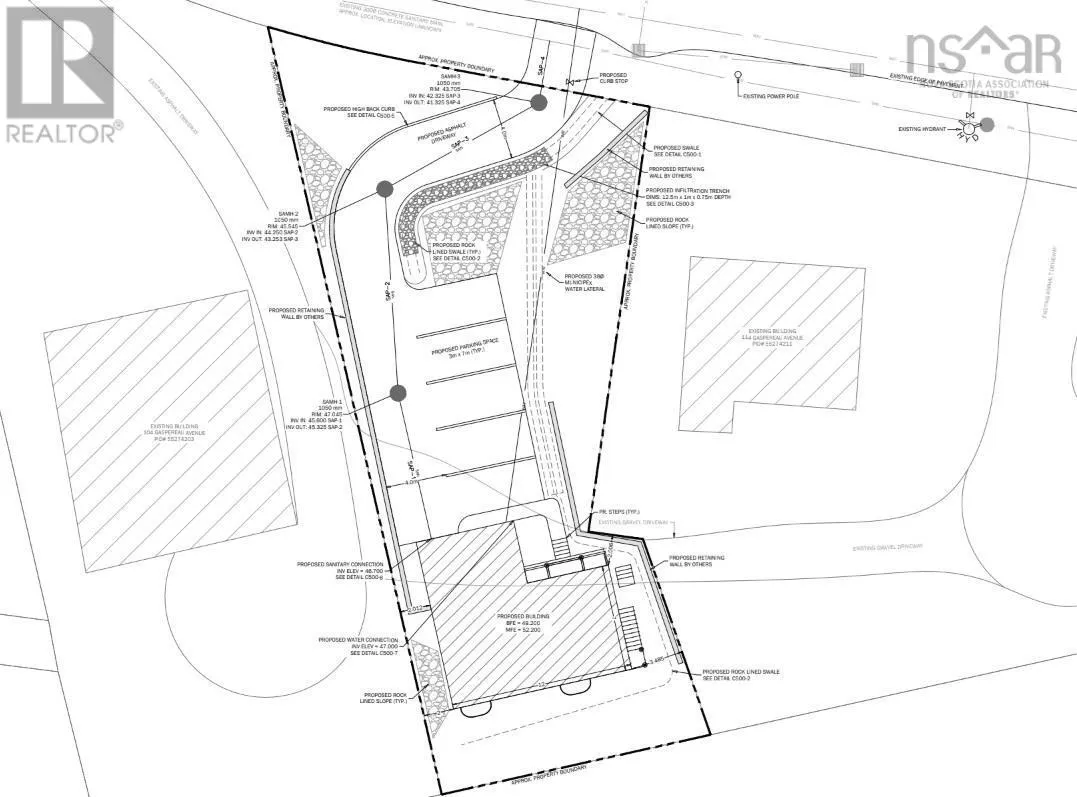
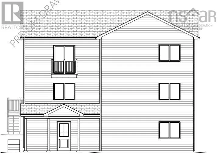
110 Gaspeareau Ave Wolfville Turnkey Wolfville Development Opportunity R3 Zoned Lot with Approved Site Plan SITE PLAN APPROVED by the Town of Wolfville. Buyer can proceed with the sellers concept design (3 x 4-bed / 2-bath student rental units, 12 beds total) or explore their own custom design within the approved house dimensions. +All major planning work complete building plans, site plan, landscape plan, and Phase 1 Environmental included and ready to transfer. +Zoned R3 flexible use options including triplex, multi-unit, or townhouse +Prime location minutes from Acadia University and downtown Wolfville. +Shovel-ready start building once the building permit is issued. Seller is divesting to focus on larger projects. An excellent opportunity for investors seeking a ready-to-build project in a high-demand rental market. Listing agent is licensed with NSREC and owner of the selling company. (id:27476)

Property Highlights

MLS® Number
202506974
Type
Vacant Land
Community Name
Wolfville
Ownership Type
Freehold
Land Size
0.211 ac

Building

Fireplace Present
No
Basement Type
Basement Features
Building Heating Type
Heating Fuel
Building Cooling Type

Utilities

Water
None
Utility Sewer
No sewage system

Location