N/a Westney Road S, Ajax, Ontario L1S 3R2

Listed for:
$4,380,000
0 beds
0 baths
Listed 85 days ago
N/a Westney Road S, Ajax, Ontario L1S 3R2

View all 5 photos

About

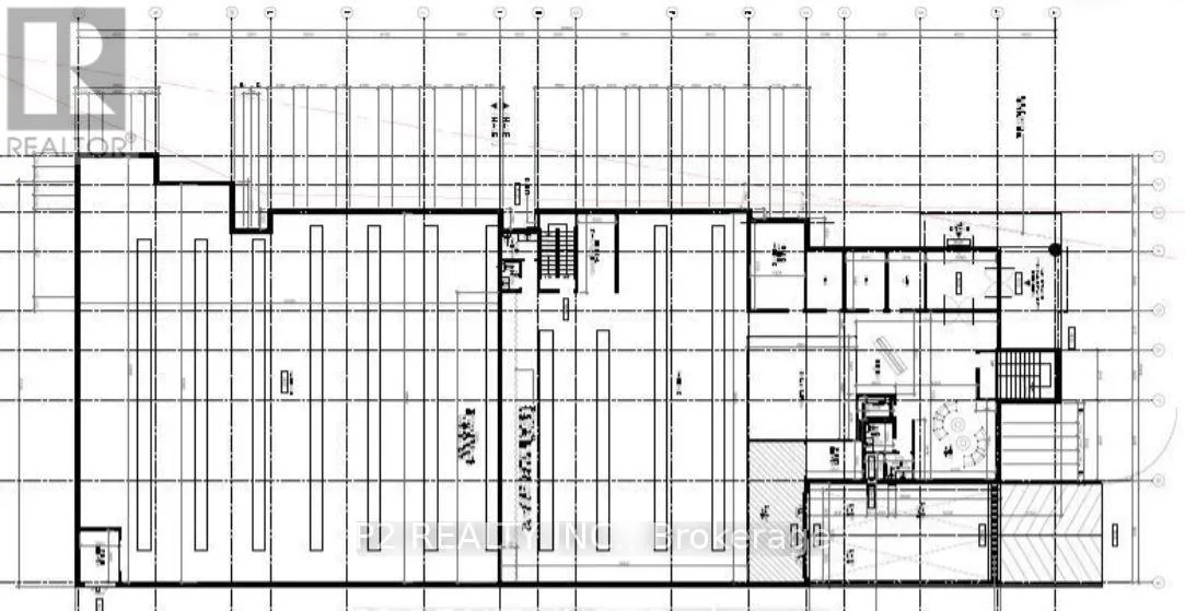
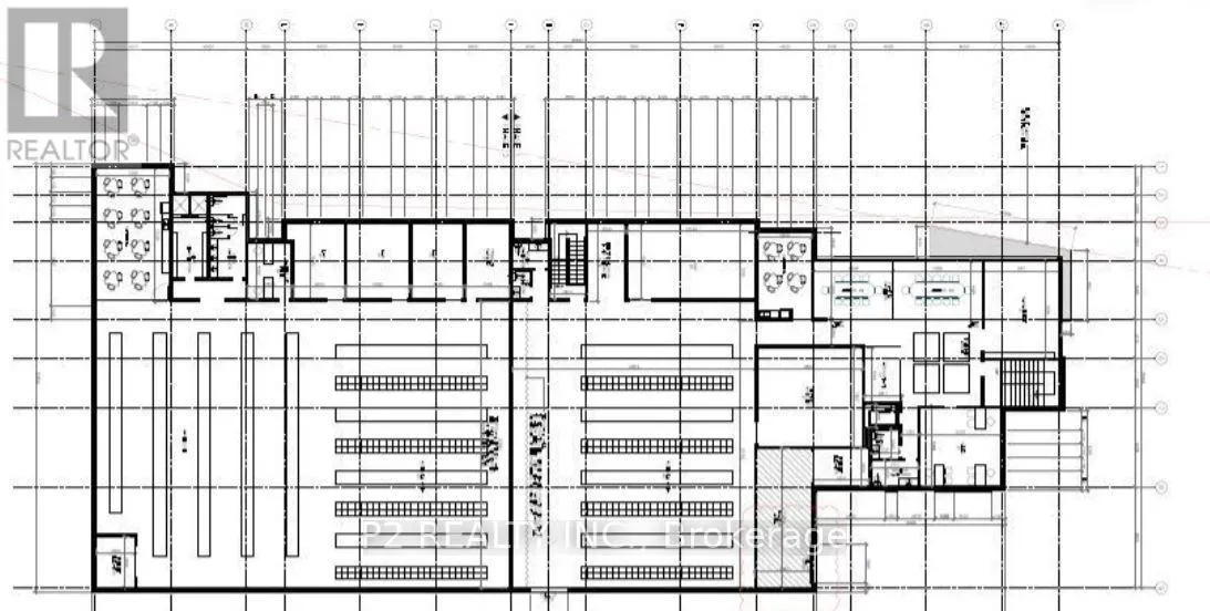
Cross Streets: Westney Rd S and Bayly St E. ** Directions: Westney Rd S and Bayly. 1.82 Acre property in a prime location with versatile zoning, ideal for a variety of commercial and industrial uses, providing endless opportunities for development. Excellent frontage on a main road in Ajax (Westney Road South)and ideal topography. Close proximity to the 401 Highway ensures excellent accessibility and visibility. The property has potential for a two-story building with a total area of 44,000 square feet. The current owner has already submitted all required documents and applied for site plan approval, which is currently under process. Vacant land Not developed. This expansive parcel has been thoroughly vetted, with both Phase 1 and Phase 2 Environmental Site Assessments confirming the land is free of contamination. **EXTRAS** * Front con, pt 1 40r10545; s/t an easement, if any, in favour of the corporation of the town of ajax, over pt lt 12 range 3 broken front con, pt 2, 40r6913; s/t lt145266,lt145267 ajax. All information to be verified by the buyer. (id:27476)

Property Highlights

MLS® Number
E12435878
Type
Industrial
Community Name
South West
Land Size
1.82 ac

Building

Square Footage
2 ac
Fireplace Present
No
Basement Type
Basement Features
Building Heating Type
Forced air
Heating Fuel
Natural gas
Building Cooling Type
Fully air conditioned

Utilities

Water
Municipal water

Location

Learn more about this property
Listing provided by:
P2 REALTY INC.
MLS® number:
E12435878
Agent:
Ali Norouzi
*Indicates required field
Name is required
Email is required
Please enter a valid phone number (e.g., 416-111-1111).

Street Spotlight - For sale