112 - 449 Island View Road, Alnwick/Haldimand, Ontario K0K 2X0

Listed for:
$149,000
2 beds
1 baths
Listed 93 days ago
Other for rent: 112 - 449 Island View Road, Alnwick/Haldimand, Ontario K0K 2X0

View all 25 photos

Learn more about this property
Listing provided by:
RE/MAX HALLMARK REALTY LTD.
MLS® number:
X12446783
Agent:
Nick James
*Indicates required field
Name is required
Email is required
Please enter a valid phone number (e.g., 416-111-1111).

About

Island View Road & 4th Line Road Charming Old Fashion Waterfront Cottage In Prime Rice Lake Resort On 21 Years Less One Day Land Lease. This Fully Furnished 2-Bedroom, 1-Bathroom Cottage Is Located On One Of The Most Desirable Lots In Alpine Resort, Offering Stunning Sunset Views And A True Old-Fashioned Cottage Feel. The Open-Concept Layout Creates A Spacious Yet Cozy Atmosphere, Perfect For Relaxing Or Entertaining. Enjoy The Outdoors On Your Large Private Deck, Ideal For BBQs And Evening Unwinding. (1) Private Boat Slip Is Included, Perfect For Fishing Trips And Boating Adventures With The Family. Amenities Include, Clubhouse, Swimming Pool, Playground, Volleyball Court, Game Room, Laundry Facilities, And Much More!! An Affordable And Low-Maintenance Way To Enjoy Waterfront Living, This Seasonal-Cottage Is From (May 1st - October 31st) , Monthly Fee Is $583.33, Includes Property Taxes, Heat, Hydro, Electricity. Cottage Living Is Ideal For Families, Retirees, Or Anyone Seeking A Tranquil Escape On Beautiful Rice Lake. AIRBNB MANAGEMENT RENTAL PROGRAM AVAILABLE. GREAT CASH FLOW!! (id:27476)

Property Highlights

MLS® Number
X12446783
Type
Single Family
Community Name
Rural Alnwick/Haldimand
Land Size
30 x 70 FT
Parking Space Total
1

Building

Building Type
Other
Storeys
1.00
Square Footage
0 - 699 sqft
Bathrooms Total
1
Bedrooms Above Ground
2
Bedrooms Total
2
Exterior Finish
Vinyl siding
Fireplace Present
No
Basement Type
Basement Features
Building Heating Type
Baseboard heaters
Heating Fuel
Electric
Building Cooling Type

Utilities

Utility Sewer
Septic System

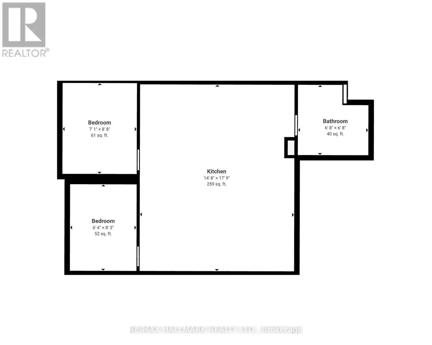
Room Layout

Kitchen
Main level
4.48 m x 5.41 m
Living room
Main level
4.48 m x 5.41 m
Primary Bedroom
Main level
2.16 m x 2.64 m
Bedroom 2
Main level
1.93 m x 1.93 m

Location