Lot 8 Ridgeline Drive, Alnwick/Haldimand, Ontario K0K 2G0

Listed for:
$1,235,000
3 beds
3 baths
Listed 12 days ago
House for rent: Lot 8 Ridgeline Drive, Alnwick/Haldimand, Ontario K0K 2G0

View all 7 photos

About

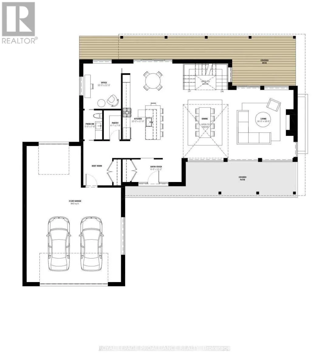
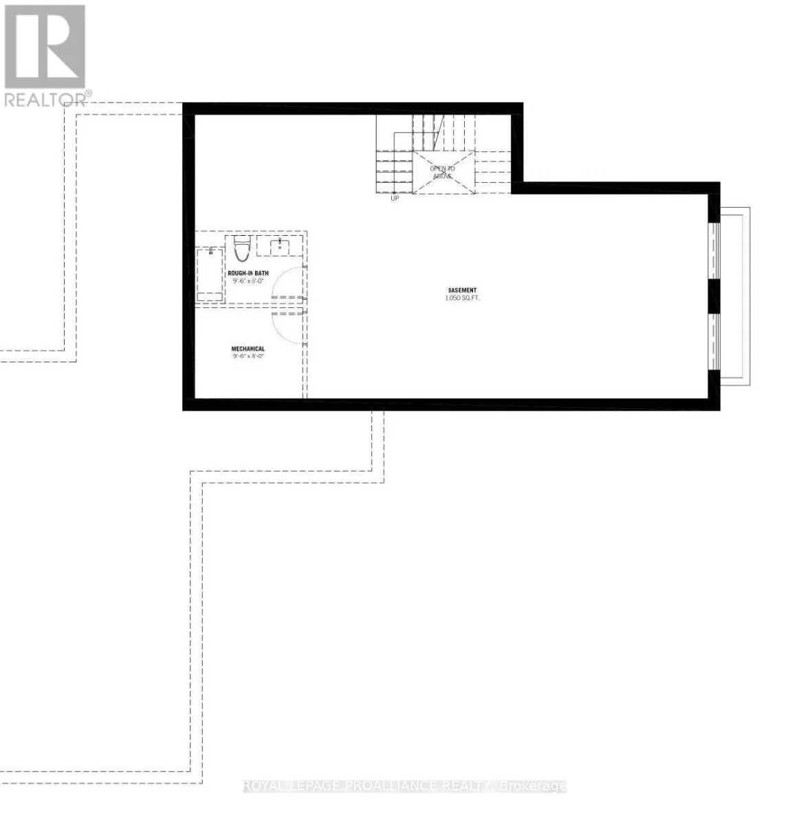
Ridgeline Dr & Vista View Dr The Ridgeview is a thoughtfully designed two-storey home offering 2,860 sqft of refined living space, ideal for those looking for room to grow without compromising on style or function. A striking front elevation and welcoming covered porch set the tone from the moment you arrive. The main floor is built for both everyday living and entertaining, featuring a spacious kitchen with generous island, separate dining room, and an expansive living room with open-to-above detail that adds light and architectural interest. A main floor powder room and dedicated laundry room add convenience, while the 2-car garage offers ample storage and practicality. Upstairs, the primary suite is a true retreat with a large walk-in closet and beautifully sized ensuite. Two additional bedrooms and a full bath complete the second level, providing comfort and privacy for family or guests. The unfinished basement offers over 2,300 sqft of additional potential, ready to be customized to suit your lifestyle. Situated in the sought-after Grafton Heights community, this home blends modern design with small-town charm. It offers town services, streetlights, and beautiful views of Lake Ontario just minutes away. (id:27476)

Property Highlights

MLS® Number
X12799468
Type
Single Family
Community Name
Grafton
Ownership Type
Freehold
Land Size
112 x 235 FT
Parking Space Total
6

Building

Building Type
House
Storeys
2.00
Square Footage
2500 - 3000 sqft
Bathrooms Total
3
Bedrooms Above Ground
3
Bedrooms Total
3
Amenities
Fireplace(s)
Fireplace Present
Yes
Basement Type
Full, N/A (Unfinished)
Basement Features
Building Heating Type
Forced air
Heating Fuel
Natural gas
Building Cooling Type
Central air conditioning

Utilities

Water
Municipal water
Utility Sewer
Septic System

Location

Learn more about this property
Listing provided by:
ROYAL LEPAGE PROALLIANCE REALTY
MLS® number:
X12799468
Agent:
Ryan Friedrich
*Indicates required field
Name is required
Email is required
Please enter a valid phone number (e.g., 416-111-1111).

Street Spotlight - For sale