42 Mulberry Court, Amherstburg, Ontario N9V 1N3

Listed for:
$659,444
2 beds
2 baths
Listed 197 days ago
Row / Townhouse for rent: 42 Mulberry Court, Amherstburg, Ontario N9V 1N3

View all 34 photos

About

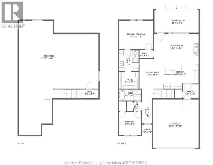
Simcoe St. to Mulberry WINTER SALE - LIMITED TIME ONLY! Welcome to Mulberry Court, a small, quiet, private development on its own with no through traffic, conveniently located for all that Amherstburg has to offer. 1320 sq. ft. Stone and stucco Ranch, freehold townhome. Quality construction by Sunset Luxury Homes Inc. Features include, 9 'ceilings with step up boxes, quartz countertops, generous allowances, large covered rear porch, concrete drive, HRV, Ensuite walk-in, finished double garage, full basement, and much more. Contact LBO for all the additional info, other lots available, other sizes and plans, more options etc. (id:27476)

Property Highlights

MLS® Number
25019775
Type
Single Family
Ownership Type
Freehold
Land Size
40 X 106

Building

Building Type
Row / Townhouse
Storeys
1.00
Square Footage
1315 sqft
Bathrooms Total
2
Bedrooms Above Ground
2
Bedrooms Total
2
Exterior Finish
Stone, Concrete/Stucco
Fireplace Present
No
Basement Type
Basement Features
Building Heating Type
Forced air
Heating Fuel
Natural gas
Building Cooling Type
Central air conditioning

Location

Learn more about this property
Listing provided by:
BOB PEDLER REAL ESTATE LIMITED
MLS® number:
25019775
Agent:
Joe Shaw
*Indicates required field
Name is required
Email is required
Please enter a valid phone number (e.g., 416-111-1111).

Street Spotlight - For sale