131 Park Street, Amherstburg, Ontario N9V 1N9

Listed for:
$699,900
2 beds
3 baths
Listed 16 days ago
House for rent: 131 Park Street, Amherstburg, Ontario N9V 1N9

View all 8 photos

Learn more about this property
Listing provided by:
REMAX PREFERRED REALTY LTD. - 586
MLS® number:
25020674
Agent:
John D'alimonte
*Indicates required field
Name is required
Email is required
Please enter a valid phone number (e.g., 416-111-1111).

About

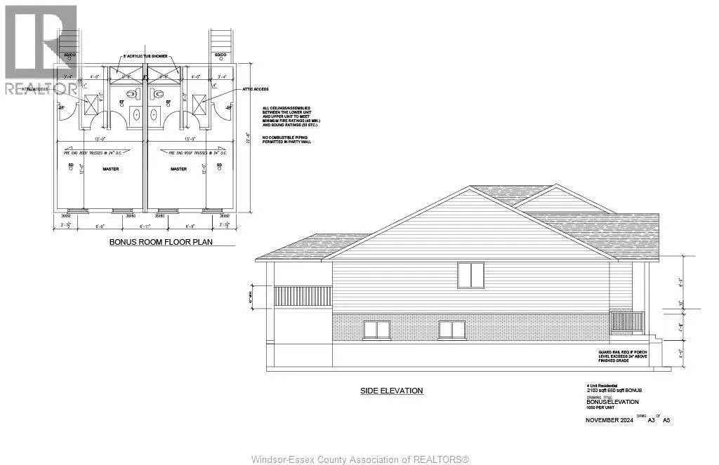
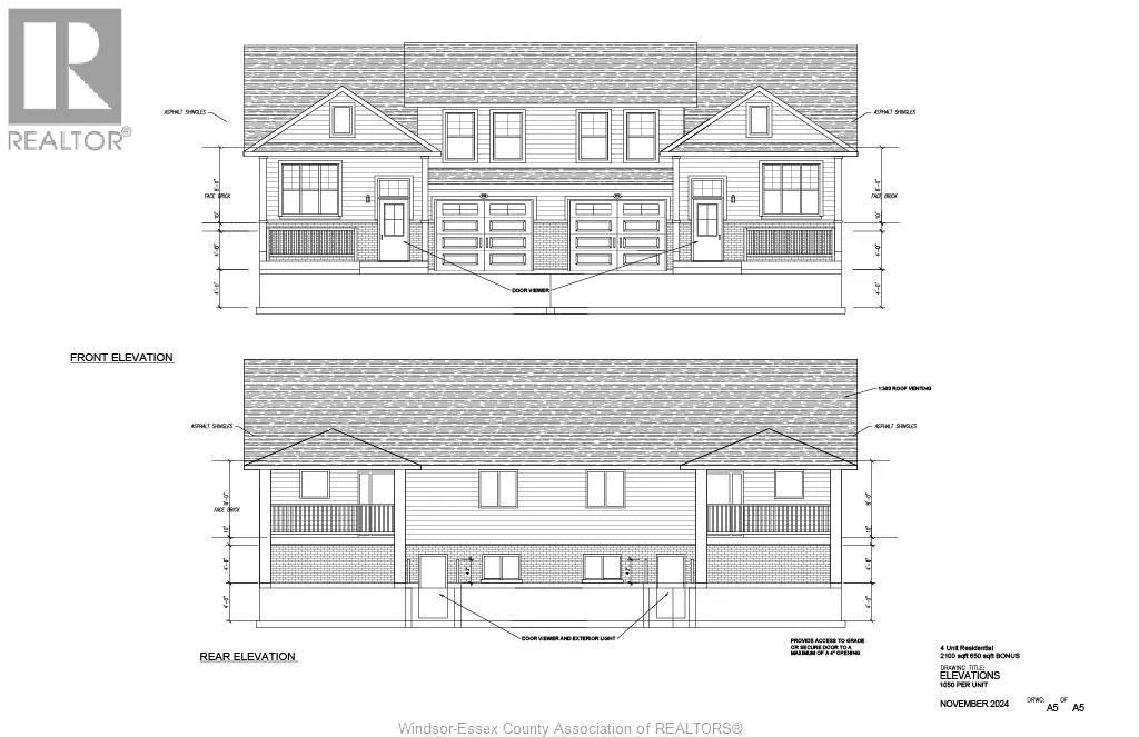
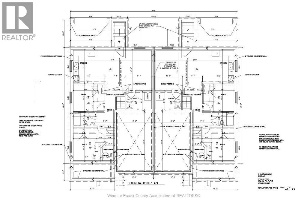
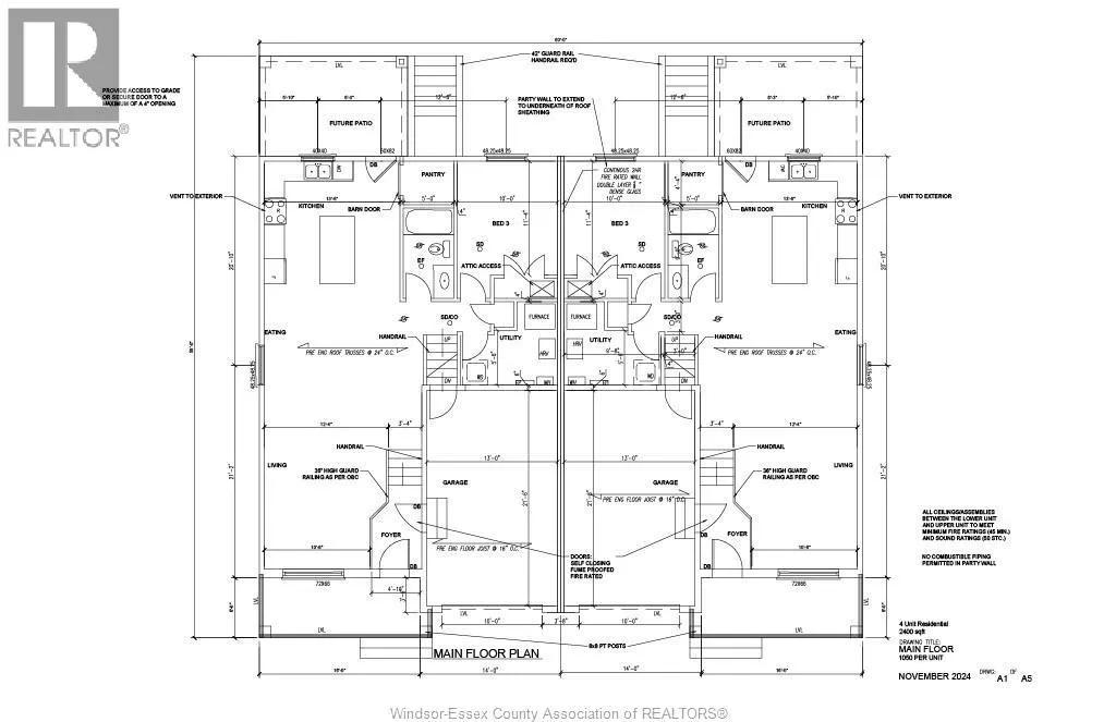
LOCATED ON THE SOUTH SIDE OF PARK STREET BETWEEN DALHOUSIE AND SANDWICH Brand new to be built raised ranch semi with master bedroom bonus suite in the heart of the downtown core. Main floor consists of approx. 1700 sq ft with 2nd floor master bedroom suite, ensuite bath and walk in closet, open concept living and kitchen areas and patio doors leading to sundeck. Full Basement with full sized windows ideal for additional and bright living space. TWO (2) Grade entrances (one from the garage and one leading to the back yard) . Ideal location within walking distance to Navy Yard Park, stores and shopping and the downtown core of Amherstburg. Call for more information and for detailed floor plans. (id:27476)

Property Highlights

MLS® Number
25020674
Type
Single Family
Ownership Type
Freehold
Land Size
35 X 100 FT

Building

Building Type
House
Square Footage
1700 sqft
Bathrooms Total
3
Bedrooms Above Ground
2
Bedrooms Total
2
Exterior Finish
Aluminum/Vinyl, Brick
Fireplace Present
No
Basement Type
Basement Features
Building Heating Type
Forced air
Heating Fuel
Natural gas
Building Cooling Type
Central air conditioning

Location