3811 County Road 18, Amherstburg, Ontario N9V 2Y8

Listed for:
$1,024,900
3 beds
2 baths
Listed 3 days ago
House for rent: 3811 County Road 18, Amherstburg, Ontario N9V 2Y8

View all 44 photos

About

AMHERSTBURG Country living at its finest. This 26 acre property is just outside of all that Amherstburg has to offer! This 3 bdrm 2 bth home with detached garage and well treed lot is the perfect place to raise your family, close to Libro Center and just down the road from North Star High School and several big box stores along with a huge selection of restaurants, parks and the waterfront. This property also has the potential to be a fantastic hobby Farm including over 20 acres of workable land that has room to build stables and fence In potential pasture land for horses, cattle, or any other animals. Don't miss out on this fantastic opportunity to own such a very unique and beautiful Property close to all amenities. (id:27476)

Property Highlights

MLS® Number
26006855
Type
Agriculture
Ownership Type
Freehold
Land Size
664.32 X 2065.89 FT / 25.962 AC

Building

Building Type
House
Storeys
1.00
Bathrooms Total
2
Bedrooms Above Ground
3
Bedrooms Total
3
Exterior Finish
Aluminum/Vinyl
Fireplace Present
Yes
Basement Type
Basement Features
Building Heating Type
Forced air, Furnace
Heating Fuel
Natural gas
Building Cooling Type
Central air conditioning

Utilities

Utility Sewer
Septic System

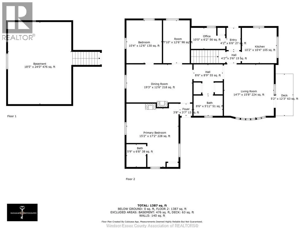
Room Layout

Storage
Basement
19 x 24
Utility room
Basement
19 x 24
Laundry room
Basement
19 x 24
4pc Ensuite bath
Basement
6 x 7
Office
Main level
10 x 6
Kitchen
Main level
10 x 10
Primary Bedroom
Main level
15 x 17
Storage
Main level
9 x 9
Bedroom
Main level
8 x 13
Family room/Fireplace
Main level
19 x 13
4pc Bathroom
Main level
9 x 6
Bedroom
Main level
10 x 13
Foyer
Main level
4 x 4

Location

Learn more about this property
Listing provided by:
BOB PEDLER REAL ESTATE LIMITED
MLS® number:
26006855
Agent:
Peter Crump
*Indicates required field
Name is required
Email is required
Please enter a valid phone number (e.g., 416-111-1111).