48 Garner Road W, Ancaster, Ontario L9G 3K9

Listed for:
$1,399,900
3 beds
2 baths
Listed 21 days ago
House for rent: 48 Garner Road W, Ancaster, Ontario L9G 3K9

View all 34 photos

About

Closest intersection: Fiddlers Green Rd and Garner Rd Intersection LOCATION, LOCATION, LOCATION! Nestled on 3 acres, this enchanting property offers the best of both worlds: country living with all the convenience of city amenities just minutes away. Surrounded by towering mature trees, you'll feel a world apart—yet you're only 5 minutes from schools, grocery stores, parks, and highway access. At the heart of the property stands a charming 3-bedroom, 1.5-bath home full of warmth and potential. With solid bones and timeless character, this home is ready for your personal touches. Whether you're looking to modernize or embrace its cozy charm, it's the perfect canvas to create your dream retreat. Out back, you'll find a storybook red barn that’s as practical as it is picturesque. With 3 garage bays and a full workshop, there's room for all your tools, toys, and weekend projects. Hobbyists, collectors, or those dreaming of a creative studio—this space has endless potential. Whether you're sipping coffee on the porch, or planning your next renovation project, this property offers the rare chance to live immersed in nature without sacrificing everyday convenience. Don't miss this opportunity to own a truly special piece of Ancaster—where peaceful living meets modern accessibility. Book your private showing today! (id:27476)

Property Highlights

MLS® Number
40811186
Type
Single Family
Ownership Type
Freehold
Land Size
2.99 ac|2 - 4.99 acres
Parking Space Total
6

Building

Building Type
House
Storeys
2.00
Square Footage
1948 sqft
Bathrooms Total
2
Bedrooms Above Ground
3
Bedrooms Total
3
Amenities
Park, Public Transit, Schools
Exterior Finish
Aluminum siding
Fireplace Present
Yes
Basement Type
Full (Unfinished)
Basement Features
Building Heating Type
Hot water radiator heat
Heating Fuel
Building Cooling Type
None, Window air conditioner

Utilities

Water
Municipal water
Utility Sewer
Septic System

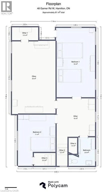
Room Layout

3pc Bathroom
Second level
8' x 7'
Primary Bedroom
Second level
20'0'' x 11'6''
Bedroom
Second level
14'0'' x 10'0''
Bedroom
Second level
19'0'' x 10'8''
2pc Bathroom
Main level
5'6'' x 4'6''
Family room
Main level
11'6'' x 11'6''
Dining room
Main level
15'6'' x 11'6''
Living room
Main level
23'0'' x 12'0''
Eat in kitchen
Main level
17' x 11'6''

Location

Learn more about this property
Listing provided by:
eXp Realty
MLS® number:
40811186
Agent:
Nathan Beere
*Indicates required field
Name is required
Email is required
Please enter a valid phone number (e.g., 416-111-1111).