190 Centre Street, Angus, Ontario L0M 1B0

Listed for:
$999,900
5 beds
4 baths
Listed 28 days ago
House for rent: 190 Centre Street, Angus, Ontario L0M 1B0

View all 38 photos

Learn more about this property
Listing provided by:
Keller Williams Experience Realty Brokerage
MLS® number:
40778684
Agent:
Linda Knight
*Indicates required field
Name is required
Email is required
Please enter a valid phone number (e.g., 416-111-1111).

About

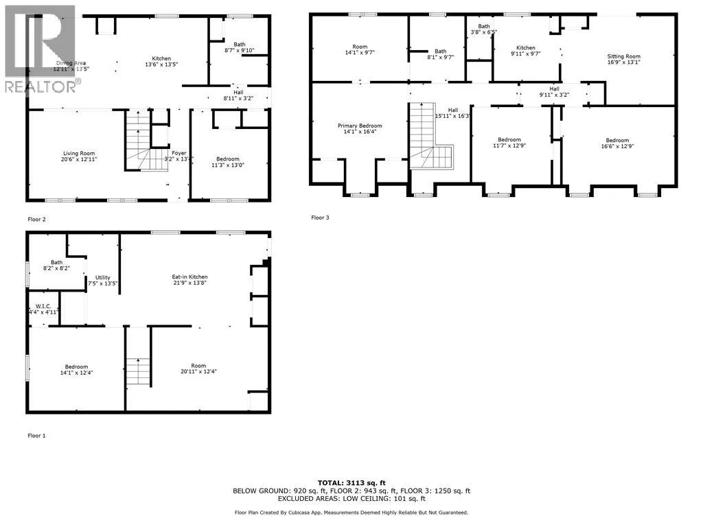
5th Line/Centre St This unique family home is set on a rare, expansive in-town Angus property beside the picturesque Nottawasaga River, offering the perfect blend of space, comfort, and natural beauty. With over 3,400 square feet of finished living space, this two-storey residence is ideal for multigenerational living, providing a flexible layout across three fully equipped levels. The main floor welcomes you with a bright and airy living room that flows seamlessly into an open-concept space, featuring a large dining area and a spacious kitchen with a walkout to the patio and generous backyard. A good-sized bedroom and full bathroom complete this level, making it ideal for guests or family members seeking single-level convenience. Upper level includes primary bedroom with his and hers closets, a walk-through leads to a cozy den, perfect for a home office or private retreat and a full bathroom. 2 additional spacious bedrooms are found on this level, along with a second kitchen and living room with a walkout to an upper deck that overlooks the yard and provides access down to the outdoor space. The finished basement adds even more value, featuring a third eat-in kitchen, a full bathroom, a large bedroom with a walk-in closet, and a massive living room - ideal for an in-law suite or independent living space. Direct inside entry from the double car garage enhances everyday convenience. Recent updates include: Shingles (2015), Windows with transferable lifetime warranty (2019-2020), Patio doors (2020-2021). Step outside and enjoy the peace and beauty of your private backyard oasis, with the river right at your doorstep - perfect for nature lovers and fishing enthusiasts. Located just minutes from schools, parks, and shopping, and a quick drive to Base Borden, Alliston, and Barrie, this home truly offers the best of both worlds: serene living with urban amenities close by. (id:27476)

Property Highlights

MLS® Number
40778684
Type
Single Family
Ownership Type
Freehold
Land Size
0.548 ac|1/2 - 1.99 acres
Parking Space Total
8

Building

Building Type
House
Storeys
2.00
Square Footage
3406 sqft
Bathrooms Total
4
Bedrooms Above Ground
4
Bedrooms Total
5
Amenities
Golf Nearby, Park, Schools
Exterior Finish
Brick Veneer, Concrete, Vinyl siding, Shingles
Fireplace Present
No
Basement Type
Full (Finished)
Basement Features
Building Heating Type
Forced air
Heating Fuel
Natural gas
Building Cooling Type
Central air conditioning

Utilities

Water
Municipal water
Utility Sewer
Municipal sewage system

Room Layout

Bedroom
Second level
11'3'' x 13'0''
4pc Bathroom
Second level
Measurements not available
Living room
Second level
20'6'' x 12'11''
Dining room
Second level
12'11'' x 13'5''
Kitchen
Second level
13'6'' x 13'5''
Utility room
Basement
7'5'' x 13'5''
Bedroom
Basement
14'1'' x 12'4''
4pc Bathroom
Basement
Measurements not available
Living room
Basement
20'11'' x 12'4''
Eat in kitchen
Basement
21'9'' x 13'8''
Bedroom
Main level
11'7'' x 12'9''
Bedroom
Main level
16'6'' x 12'9''
4pc Bathroom
Main level
Measurements not available
Den
Main level
14'1'' x 9'7''
Primary Bedroom
Main level
14'1'' x 16'4''
2pc Bathroom
Main level
Measurements not available
Living room
Main level
16'9'' x 13'1''
Kitchen
Main level
9'11'' x 9'7''

Location