879 Relative Road N, Armour, Ontario P0A 1C0

Listed for:
$599,000
3 beds
1 baths
Listed 48 days ago
House for rent: 879 Relative Road N, Armour, Ontario P0A 1C0

View all 42 photos

About

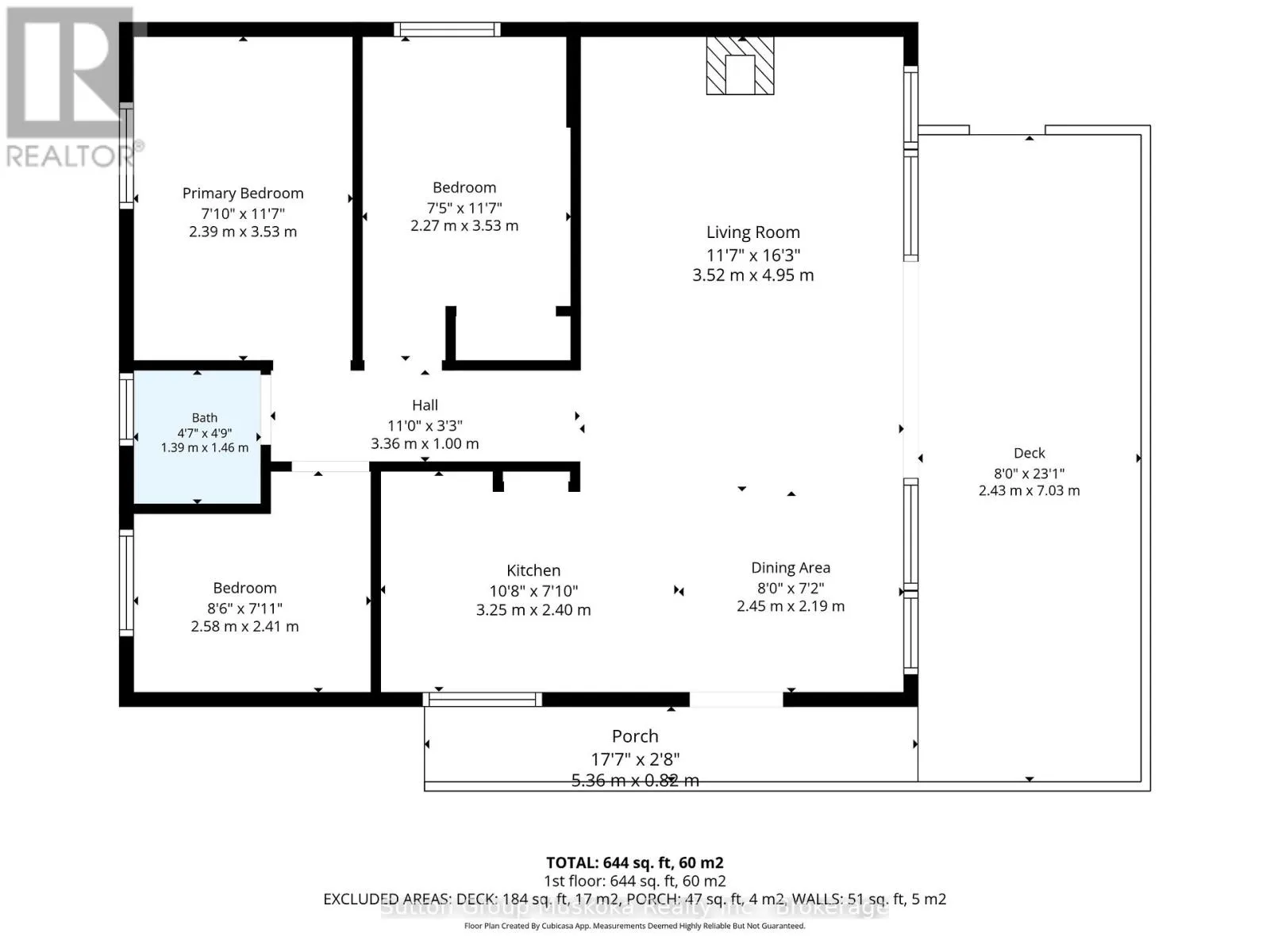
Cross Streets: Chetwynd Rd. and Relative Rd. ** Directions: Chetwynd Road to Relative Road to #879. Welcome to 879 Relative Road. This beautiful 4-season cottage or home on Three Mile Lake in Katrine is move in ready! Located just 20 min NORTH of HUNTSVILLE in the Almaguin Highlands. Enjoy all your boating and water sport activities on this sparsely populated lake. The cottage sits on an elevated gentle sloping lot that boasts a beautiful unobstructed view of the lake. Hard packed sand bottom with a private dock and 107 feet of frontage, 3 bedrooms with 3pc bathroom, Kitchen, Dining and Living room area all on the main level. Imagine entertaining family and friends on the rear deck overlooking the stunning three mile lake view. Located on a year-round Town maintained road with easy access to Hwy 11, 2.5 hours to the GTA. Flexible closing and great set-up for short term rentals. Whether you love to canoe, kayak, fish or simply relax with a cold one on the water, don't miss your chance to own this great home or 4-season cottage! (id:27476)

Property Highlights

MLS® Number
X12946380
Type
Single Family
Community Name
Armour
Ownership Type
Freehold
Land Size
107 x 226 FT
Parking Space Total
6

Building

Building Type
House
Square Footage
700 - 1100 sqft
Bathrooms Total
1
Bedrooms Above Ground
3
Bedrooms Total
3
Amenities
Separate Heating Controls
Exterior Finish
Wood
Fireplace Present
Yes
Basement Type
None
Basement Features
Building Heating Type
Baseboard heaters, Other, Not known
Heating Fuel
Electric, Propane
Building Cooling Type
Wall unit

Utilities

Water
Drilled Well
Utility Sewer
Septic System

Room Layout

Primary Bedroom
Main level
1.26 m x 4.2 m
Dining room
Main level
2.84 m x 3.22 m
Living room
Main level
4.68 m x 3.22 m
Bathroom
Main level
2.73 m x 1.94 m
Kitchen
Main level
5.79 m x 3.03 m
Bedroom
Main level
2.75 m x 2.16 m
Foyer
Main level
1.39 m x 2.27 m
Bedroom
Main level
2.6 m x 4.03 m

Location

Learn more about this property
Listing provided by:
Sutton Group Muskoka Realty Inc.
MLS® number:
X12946380
Agent:
Jeff Dupuis
*Indicates required field
Name is required
Email is required
Please enter a valid phone number (e.g., 416-111-1111).

Community Spotlight: Homes For sale in Your Neighborhood