Lt 23 E Arthur Street, Ashfield-Colborne-Wawanosh, Ontario N7A 3X9

Listed for:
$95,000
0 beds
0 baths
Listed 89 days ago
Lt 23 E Arthur Street, Ashfield-Colborne-Wawanosh, Ontario N7A 3X9

View all 5 photos

Learn more about this property
Listing provided by:
Royal LePage Heartland Realty
MLS® number:
X11969528
Agent:
James Buchanan
*Indicates required field
Name is required
Email is required
Please enter a valid phone number (e.g., 416-111-1111).

About

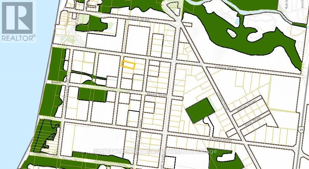
Lot is North of of Market St., west of Sydenham St.S Discover the potential of this spacious 1/2 acre lot near the sunset shores of Lake Huron, in the peaceful community of Port Albert. This untouched parcel offers the perfect canvas to bring your vision to life - whether it's your dream home, a weekend retreat, or an investment in the future. Potential to expand - see the two neighbouring vacant lots for sale, for an incredible mega property! This property is ideal for these visionary buyers seeking a long-term investment or a blank slate to build their future, no services or road access are currently developed. Don't miss this opportunity! Contact your REALTOR today to explore the possibilities and start planning your dream. (id:27476)

Property Highlights

MLS® Number
X11969528
Type
Vacant Land
Community Name
Ashfield
Land Size
104.61 x 209.22 FT|1/2 - 1.99 acres

Building

Amenities
Beach
Fireplace Present
No
Basement Type
Basement Features
Building Heating Type
Heating Fuel
Building Cooling Type

Location