41 Millpond Lane, Asphodel-Norwood, Ontario K0L 2V0

Listed for:
$610,000
5 beds
2 baths
Listed Today
House for rent: 41 Millpond Lane, Asphodel-Norwood, Ontario K0L 2V0

View all 18 photos

About

Cross Streets: Helen/ Milpond. ** Directions: HWY 7 TO NORWOOD, NORTH ON COUNTY ROAD 40 TO HELEN ST TO MILLPOND LANE TO #41. Beautifully maintained and move-in ready, this bright and inviting home offers a functional open-concept layout perfect for everyday living. The main floor features convenient laundry, three spacious bedrooms, and a primary retreat complete with a private ensuite. The lower level is full of potential and ready for your finishing touches, including a bathroom that has been prepped and is awaiting your final design selections. A fantastic opportunity to customize additional living space to suit your needs! (id:27476)

Property Highlights

MLS® Number
X12834776
Type
Single Family
Community Name
Rural Asphodel-Norwood
Ownership Type
Freehold
Land Size
50 x 123 FT|under 1/2 acre
Parking Space Total
4

Building

Building Type
House
Storeys
1.00
Square Footage
1500 - 2000 sqft
Bathrooms Total
2
Bedrooms Above Ground
3
Bedrooms Total
5
Amenities
Park, Place of Worship, Schools
Exterior Finish
Brick
Fireplace Present
No
Basement Type
Full (Partially finished)
Basement Features
Building Heating Type
Forced air
Heating Fuel
Natural gas
Building Cooling Type
Central air conditioning

Utilities

Water
Municipal water
Utility Sewer
Sanitary sewer

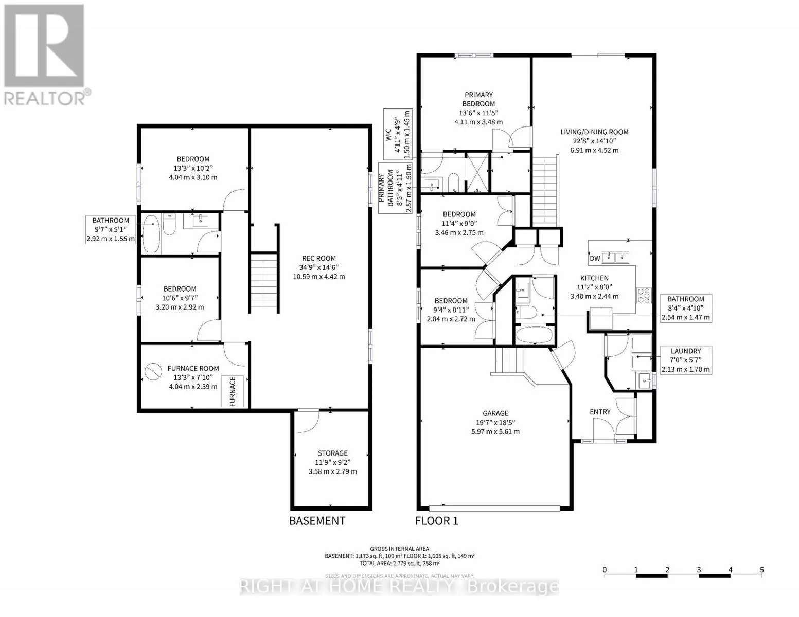
Room Layout

Other
Basement
3.58 m x 2.79 m
Bedroom
Basement
4.04 m x 3.1 m
Bedroom
Basement
3.2 m x 2.92 m
Recreational, Games room
Basement
10.59 m x 4.42 m
Living room
Main level
3.44 m x 3.54 m
Living room
Main level
3.44 m x 3.54 m
Dining room
Main level
3.44 m x 3.54 m
Primary Bedroom
Main level
2.17 m x 4.21 m
Bedroom
Main level
2.9 m x 1.19 m
Bedroom
Main level
2.9 m x 3.51 m

Location

Learn more about this property
Listing provided by:
RIGHT AT HOME REALTY
MLS® number:
X12834776
Agent:
Christina O'dea
*Indicates required field
Name is required
Email is required
Please enter a valid phone number (e.g., 416-111-1111).