255 County Road 40 Road, Athens, Ontario K0E 1B0

Listed for:
$664,900
4 beds
1 baths
Listed 63 days ago
255 County Road 40 Road, Athens, Ontario K0E 1B0

View all 25 photos

About

Cross Streets: COUNTY RD 40 AND MCAVOY RD. ** Directions: FROM ATHENS HEAD SOUTH ON COUNTY RD 40 PROPERTY IS ON LEFT PAST MCAVOY ROAD. If you're looking to step into the world of beef cattle, look no further. This property is fully set up and ready to support your operation from day one. Featuring well-designed loading and handling corrals, multiple barns equipped with power and water, and several fenced pastures with room to expand, this farm offers both functionality and flexibility.The lovingly maintained 4-bedroom, 1-bathroom farmhouse provides the perfect blend of comfort and rural charm. Enjoy two spacious decks for relaxing outdoors, along with practical upgrades including a newer septic system, and updated water pump-all adding peace of mind for years to come.Whether you're raising cattle, keeping a few horses, or simply embracing the tranquility of country living, this property delivers the space and setup you need to thrive. Opportunities like this don't come along every day. Call today to schedule your personal viewing. (id:27476)

Property Highlights

MLS® Number
X12902354
Type
Agriculture
Community Name
812 - Athens
Land Size
672 x 1686 FT|25 - 50 acres
Parking Space Total
11

Building

Storeys
2.00
Square Footage
1500 - 2000 sqft
Bathrooms Total
1
Bedrooms Above Ground
4
Bedrooms Total
4
Exterior Finish
Aluminum siding, Stone
Fireplace Present
No
Basement Type
N/A (Unfinished), N/A, Full
Basement Features
Walk out
Building Heating Type
Forced air
Heating Fuel
Oil
Building Cooling Type
None

Utilities

Power
Generator
Utility Sewer
Septic System

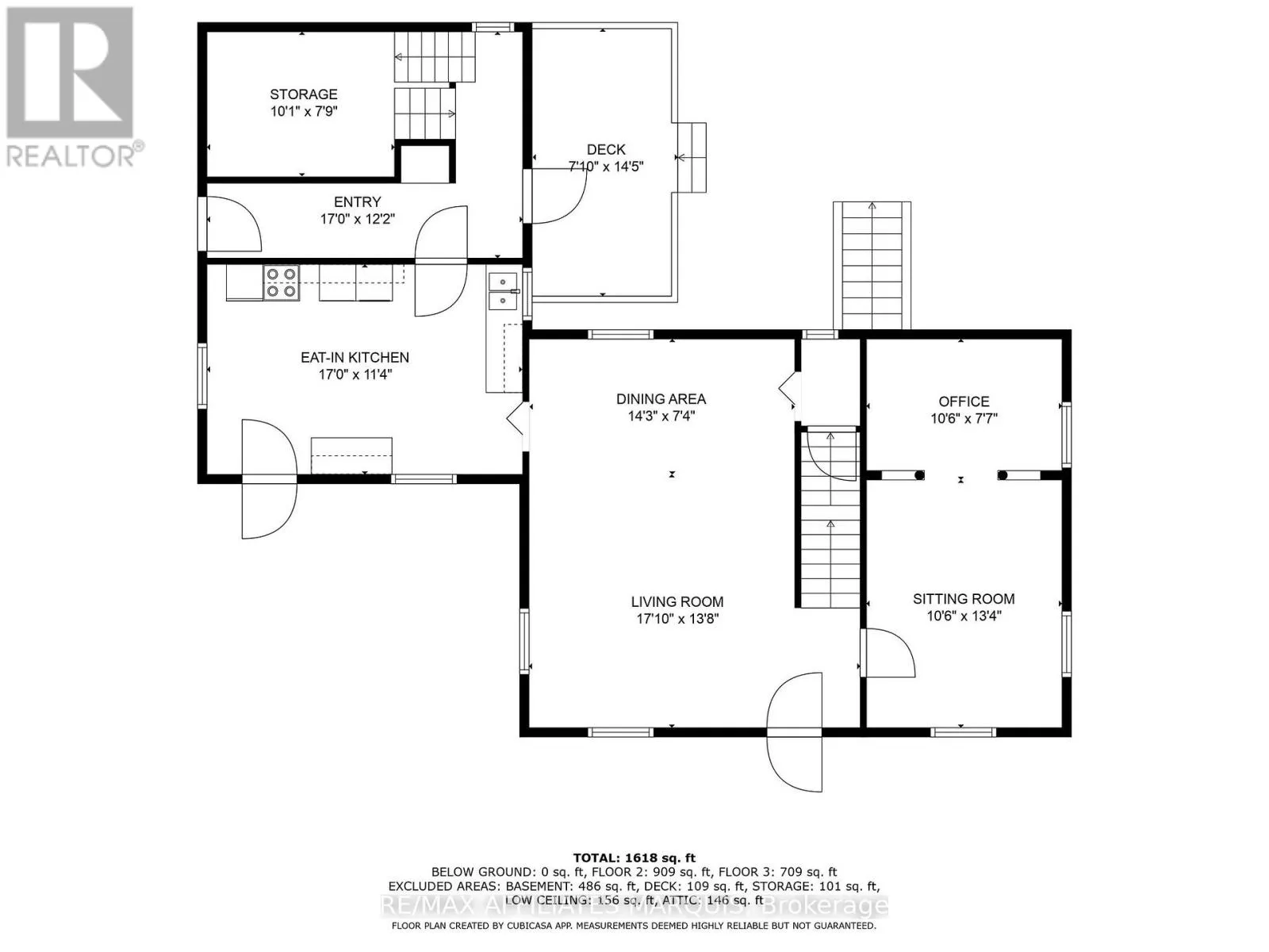
Room Layout

Primary Bedroom
Second level
5.1816 m x 3.4747 m
Bedroom 2
Second level
3.5052 m x 3.5662 m
Bedroom 3
Second level
3.2309 m x 3.3833 m
Bedroom 4
Second level
3.2309 m x 2.9261 m
Bathroom
Second level
2.1671 m x 1.4021 m
Kitchen
Main level
5.1816 m x 3.4747 m
Dining room
Main level
4.3586 m x 2.2555 m
Living room
Main level
5.2121 m x 4.2062 m
Office
Main level
3.2309 m x 3.347 m
Family room
Main level
3.2309 m x 4.0843 m

Location

Learn more about this property
Listing provided by:
RE/MAX AFFILIATES MARQUIS
MLS® number:
X12902354
Agent:
Stuart Nesbitt
*Indicates required field
Name is required
Email is required
Please enter a valid phone number (e.g., 416-111-1111).