111 - 600 Alex Gardner Circle, Aurora, Ontario L4G 3G5

Listed for:
$2,675
2 beds
3 baths
Listed 28 days ago
Row / Townhouse for rent: 111 - 600 Alex Gardner Circle, Aurora, Ontario L4G 3G5

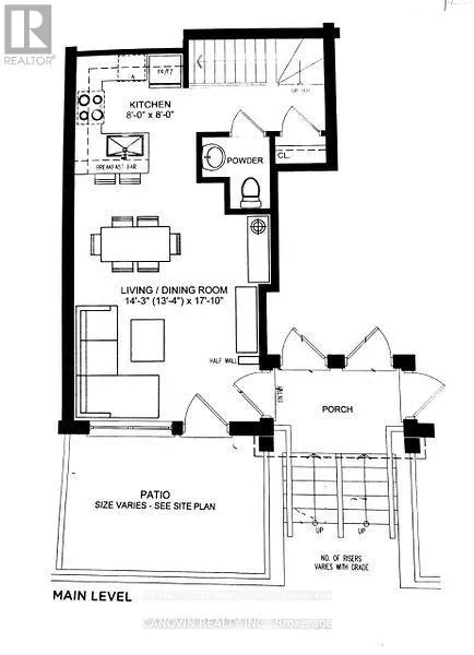
View all 20 photos

Learn more about this property
Listing provided by:
RE/MAX WEST REALTY INC.
MLS® number:
N12473248
Agent:
Niloufar Rastegar
*Indicates required field
Name is required
Email is required
Please enter a valid phone number (e.g., 416-111-1111).

About

Yonge St & Wellington Ave Welcome To Your New Modern Two-Bedroom Townhouse In The Heart Of Aurora. Stunning View, Ss Appliances, White Chef's Kitchen, Quartz Countertops, Tiled Backsplash, Laminate Floors, Large Balcony With Gas Bbq Line And Water Tap, Beautiful Lighting Fixtures, Blinds, Upgraded Faucets, Three Upgraded Washrooms With Cabinets, One Underground Parking Plus Outside Visitor Parking, One Large Locker, Steps To Viva And Yrt Bus Stop, Steps To Yonge/Wellington. (id:27476)

Property Highlights

MLS® Number
N12473248
Type
Single Family
Community Name
Aurora Village
Ownership Type
Condominium/Strata
Parking Space Total
1

Building

Building Type
Row / Townhouse
Storeys
2.00
Square Footage
1200 - 1399 sqft
Bathrooms Total
3
Bedrooms Above Ground
2
Bedrooms Total
2
Amenities
Separate Electricity Meters, Storage - Locker
Exterior Finish
Brick
Fireplace Present
No
Basement Type
None
Basement Features
Building Heating Type
Forced air
Heating Fuel
Natural gas
Building Cooling Type
Central air conditioning

Location