178 Foundry Street, Baden, Ontario N3A 2P7

Listed for:
$5,006
0 beds
0 baths
Listed 41 days ago
178 Foundry Street, Baden, Ontario N3A 2P7

View all 8 photos

Learn more about this property
Listing provided by:
Re/Max Icon Realty
MLS® number:
40767092
Agent:
Scott Storey
*Indicates required field
Name is required
Email is required
Please enter a valid phone number (e.g., 416-111-1111).

About

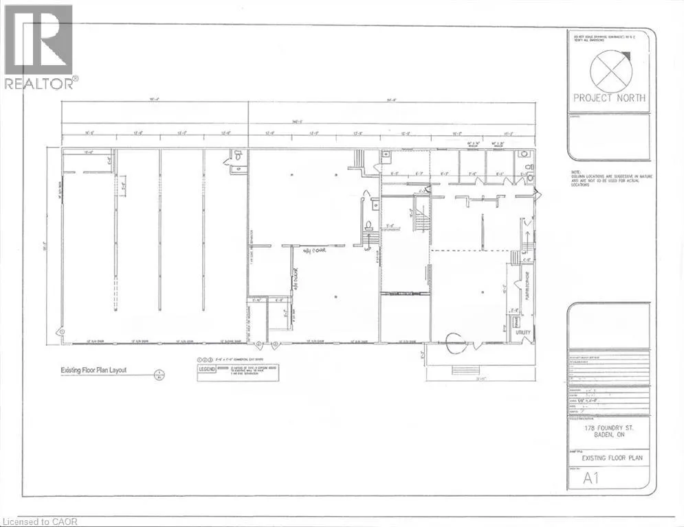
Take Hwy 7 & 8 to Baden cutoff (Foundry Street) property is on the left past the traffic lights. PRIME VISIBILITY | EXCELLENT HIGHWAY ACCESS Seize this rare opportunity in a high-traffic, high-exposure location. Ideally situated within a growing and dynamic business community, this versatile unit is perfect for a wide range of commercial and industrial uses. Zoned Z10, the space is well-suited for light manufacturing, contractor services, storage, or workshop operations. Single or multi-tenant configurations are welcome, with the flexibility to open or customize the layout to suit specific needs. The units feature high ceilings, secure overhead bay doors, interior dividing walls, and bright, well-lit workspaces with durable concrete flooring. Ample on-site parking and secure entry with surveillance provide convenience and peace of mind. Just minutes from major highway corridors, this location offers outstanding logistical access for trucks, trades, and service vehicles. With professional curb appeal and proximity to key transportation routes and business amenities, this property is an ideal fit for contractors, tradespeople, and small business operators. Flexible lease terms are available, making this a strong and strategic location for regional service providers and collaborative business ventures. (id:27476)

Property Highlights

MLS® Number
40767092
Type
Other
Ownership Type
Freehold
Land Size
1/2 - 1.99 acres

Building

Storeys
1.00
Square Footage
4450 sqft
Amenities
Airport, Hospital
Exterior Finish
Metal, Steel
Fireplace Present
No
Basement Type
None
Basement Features
Building Heating Type
Heating Fuel
Building Cooling Type

Utilities

Water
Municipal water
Utility Sewer
Municipal sewage system

Location