183 Hastings Street N, Bancroft, Ontario K0L 1C0

Listed for:
$430,000
0 beds
3 baths
Listed 28 days ago
183 Hastings Street N, Bancroft, Ontario K0L 1C0

View all 33 photos

Learn more about this property
Listing provided by:
CENTURY 21 GRANITE REALTY GROUP INC.
MLS® number:
X12471926
Agent:
Zoe Crossing
*Indicates required field
Name is required
Email is required
Please enter a valid phone number (e.g., 416-111-1111).

About

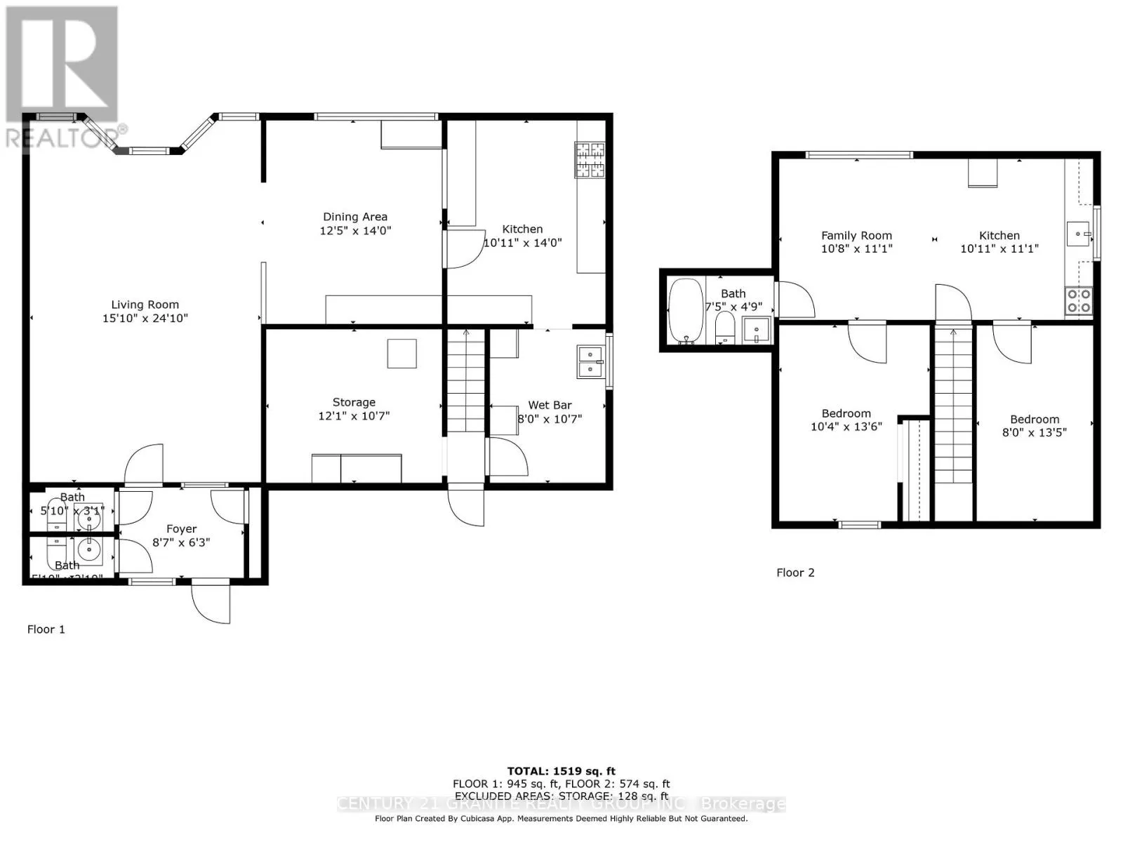
Cross Streets: Hastings St N. ** Directions: From Bancroft take Hastings St N towards Birds Creek. See signs beside Loyalist College. Ready to bring your business dreams to life? This turn-key restaurant comes with a bright and spacious 2-bedroom apartment (574 sq ft) above-perfect for living where you work or generating rental income. The main floor offers a fully equipped restaurant setup with Main Street commercial zoning, giving you the freedom to run a cafe, retail shop, takeover the very successful established restaurant or any venture you've been dreaming of. Enjoy the convenience of municipal water and the affordability of a private septic, plus a private parking lot for 8+ vehicles-a rare find in town! The restaurant is equipped with owned commercial appliances, male and female washrooms, foyer, 15x24 ft dining area with an additional 12.5x14ft flex space to accommodate more diners. Located just steps from downtown Bancroft, you'll benefit from high visibility and steady local traffic, surrounded by other established businesses in one of Ontario's fastest-growing small towns. Whether you're an entrepreneur ready to serve the community or an investor looking for a smart mixed-use opportunity. Live upstairs. Work downstairs. Grow your future-all right here in Bancroft. The restaurant is sold fully equipped. (id:27476)

Property Highlights

MLS® Number
X12471926
Type
Business
Community Name
Bancroft Ward
Land Size
0.13 ac
Parking Space Total
8

Building

Bathrooms Total
3
Fireplace Present
No
Basement Type
Basement Features
Building Heating Type
Forced air
Heating Fuel
Oil
Building Cooling Type
Partially air conditioned

Utilities

Water
Municipal water

Location