71 Cleak Avenue, Bancroft, Ontario K0L 2S0

Listed for:
$279,900
2 beds
1 baths
Listed 8 days ago
House for rent: 71 Cleak Avenue, Bancroft, Ontario K0L 2S0

View all 20 photos

Learn more about this property
Listing provided by:
ONE PERCENT REALTY LTD.
MLS® number:
X12649134
Agent:
Mike Carstensen
*Indicates required field
Name is required
Email is required
Please enter a valid phone number (e.g., 416-111-1111).

About

Cross Streets: Snow Rd. ** Directions: Station St & Hastings. Rare Double-Corner Commercial / Residential Opportunity in the Heart of Bancroft Welcome to 71 Cleak Avenue, a rare double-corner lot located in the heart of Bancroft with highly desirable Commercial Main Street zoning and dual frontage on Cleak Avenue and Snow Road. This versatile property offers exceptional flexibility for residential living, business use, or a live-work setup. The freshly painted interior features a two-bedroom, single-level layout with impressive 9'10" ceilings, creating a bright and open feel throughout. Set on an approximately 17,600 sq ft lot, the property provides excellent exposure, access, and future potential, all while maintaining incredibly low annual property taxes of just $876. Immediate closing is available, making this an excellent option for buyers looking to act quickly. This property is strategically positioned below typical Bancroft market values, offering exceptional upside relative to comparable sales and nearby properties. Whether you are a homeowner, investor, or small business operator, this is a rare opportunity to secure commercial zoning at an accessible price point in a growing community. A unique offering with flexibility, visibility, and value, 71 Cleak Avenue stands out as one of Bancroft's most compelling opportunities. (id:27476)

Property Highlights

MLS® Number
X12649134
Type
Single Family
Community Name
Bancroft Ward
Ownership Type
Freehold
Land Size
102.9 x 165 FT|under 1/2 acre
Parking Space Total
4

Building

Building Type
House
Storeys
1.00
Square Footage
700 - 1100 sqft
Bathrooms Total
1
Bedrooms Above Ground
2
Bedrooms Total
2
Amenities
Golf Nearby, Hospital, Park, Schools
Exterior Finish
Vinyl siding
Fireplace Present
No
Basement Type
None
Basement Features
Building Heating Type
Baseboard heaters
Heating Fuel
Electric
Building Cooling Type
None

Utilities

Water
Municipal water
Utility Sewer
Sanitary sewer

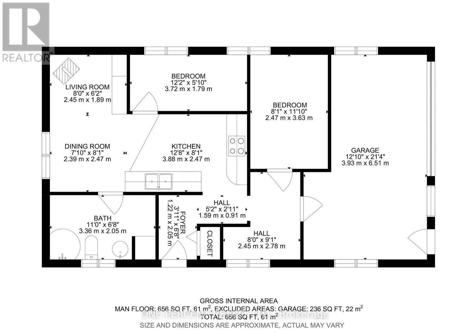
Room Layout

Living room
Main level
2.16 m x 4.19 m
Bathroom
Main level
2.97 m x 1.8 m
Foyer
Main level
2.87 m x 1.8 m
Kitchen
Main level
3.81 m x 2.59 m
Bedroom
Main level
3.66 m x 1.6 m
Bedroom
Main level
2.31 m x 3.12 m
Laundry room
Main level
2.21 m x 6.3 m
Other
Main level
1.45 m x 2.06 m

Location

Community Spotlight: Homes For sale in Your Neighborhood